EasyManua.ls Logo

Boss MX1-3HL - Mini MX-HL Clearance and Connection Requirements

Boss MX1-3HL
28 pages
Print Icon
To Next Page IconTo Next Page
To Next Page IconTo Next Page
To Previous Page IconTo Previous Page
To Previous Page IconTo Previous Page
Loading...
www.bssindustrial.co.uk
We reserve the right to change designs and technical specifications of our products.
Rev 2.1 Oct-15 Page 11 / 28
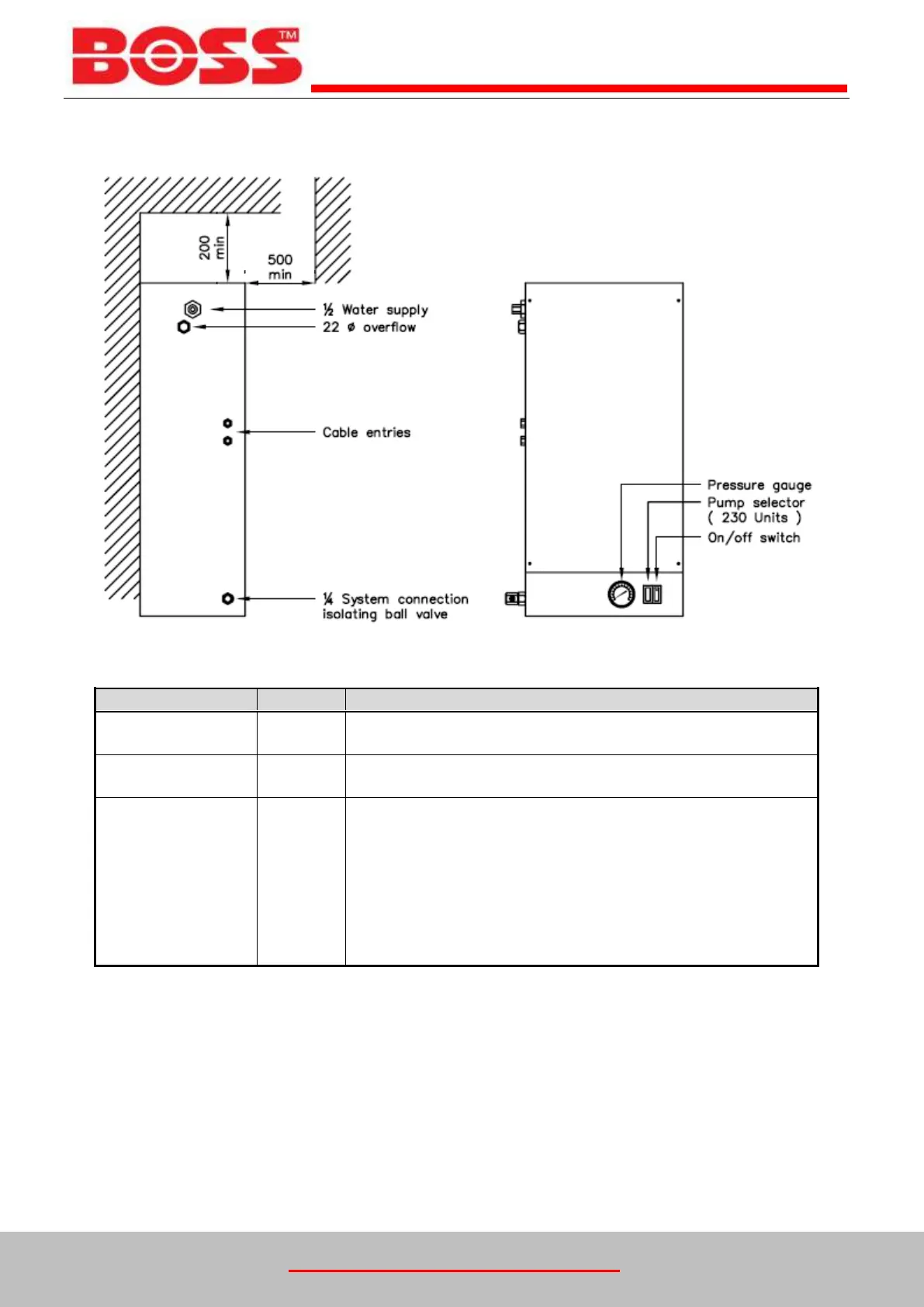
Mini MX-HL Clearance and Connection Requirements
Connection
Size
Notes
Mains Water Feed
½” BSP M
An isolation valve must be installed on the mains water feed for
servicing.
Break Tank Overflow
22 mm
Guidance on drainage requirements should be obtained from the
local water authority.
System Connection
¼” BSP F
The pressurisation unit and expansion vessel should be
connected to the system at the same point.
The point of connection should be in the system return, on the
suction side of the circulation pump.
Non-return valves, pressure reducing valves and RPZ valves must
not be used.

Related product manuals