EasyManua.ls Logo

BÖWE P18 - Maintenance Points

Default Icon
106 pages
Print Icon
To Next Page IconTo Next Page
To Next Page IconTo Next Page
To Previous Page IconTo Previous Page
To Previous Page IconTo Previous Page
Loading...
76
P12 /P15 /P18
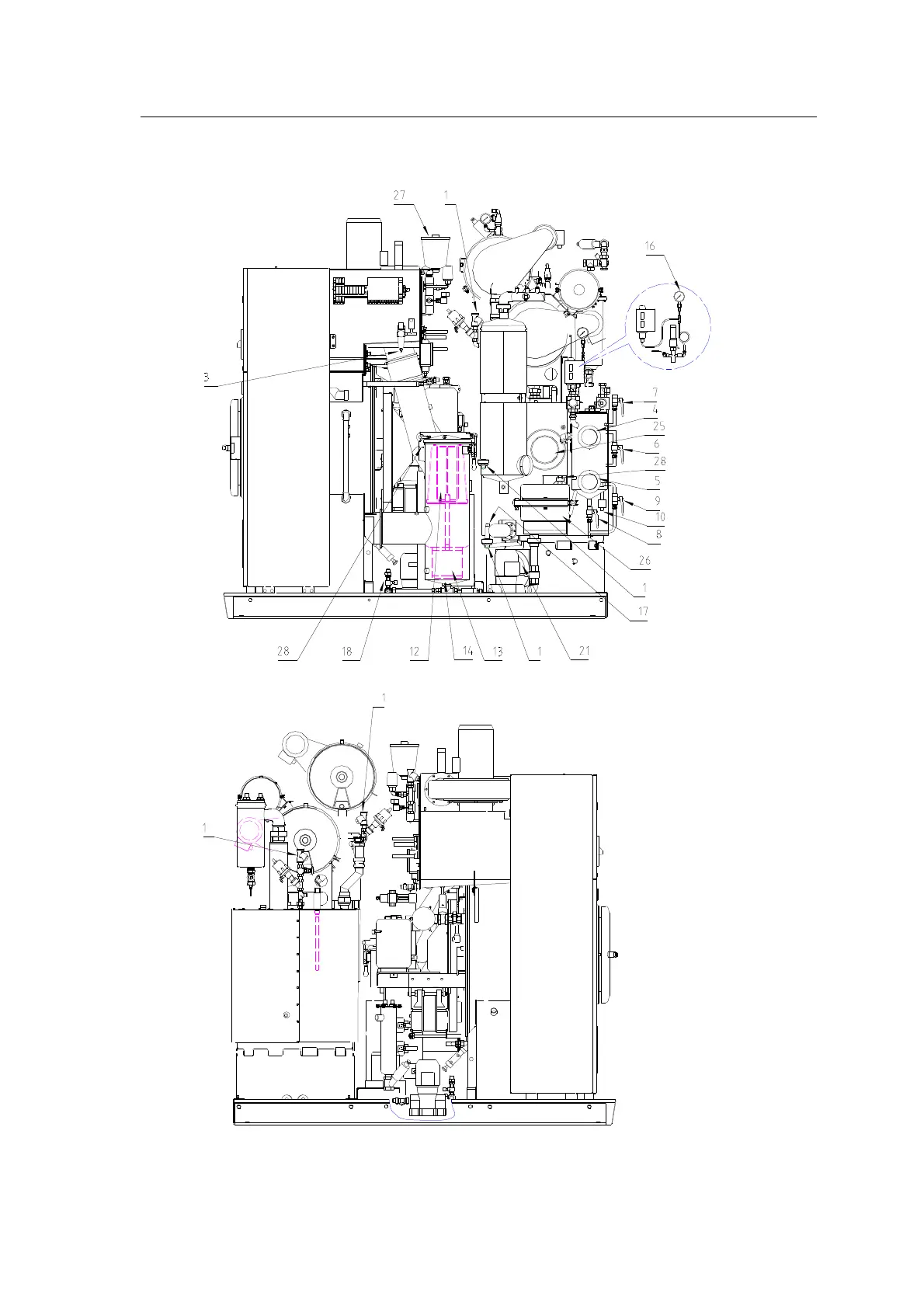
11. Maintenance 11.
11.2. Maintenance Points
11.2
Slimline
707769-21-A
707769-22-A

Table of Contents

Other manuals for BÖWE P18

Related product manuals