EasyManua.ls Logo

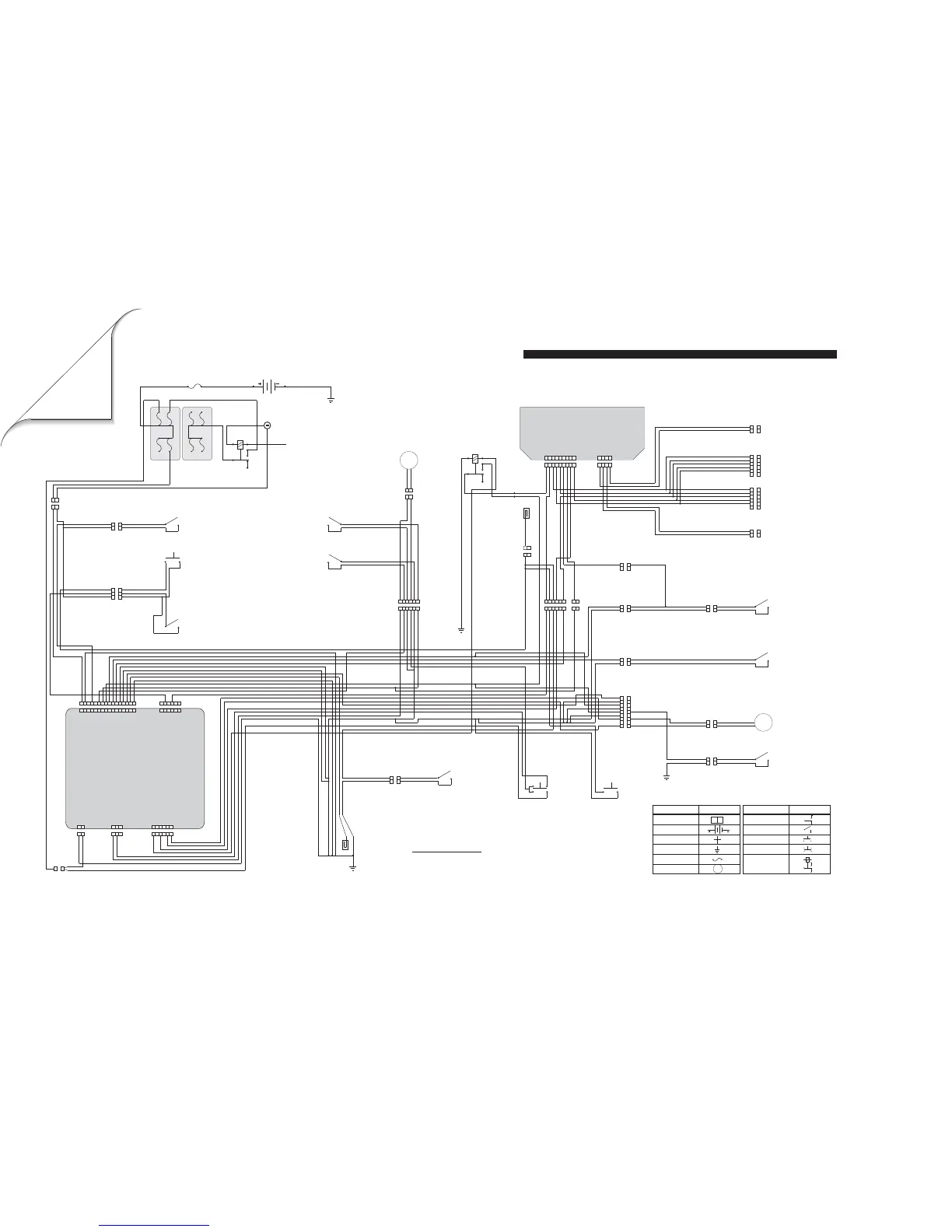
BraunAbility Rampvan - Power Door, Infloor Ramp and Kneel Electrical Schematic (Pre-2007)

BraunAbility Rampvan
46 pages
Print Icon
To Next Page IconTo Next Page
To Next Page IconTo Next Page
To Previous Page IconTo Previous Page
To Previous Page IconTo Previous Page
Loading...
Page 17B Page 18B
Unfold for:
Pre-2007 Power Door,
Infloor
Ramp and Kneel
Wiring Diagram
Pre-2007 Power Door, Infloor Ramp and Kneel Electrical Schematic
M
RAMP
IN
SWITCH
RAMP
MOTOR
WH - 10G
LT GN - 14G
BK - 14G
LT BL - 14G
LT BN - 14G
DK BN - 14G DK BN - 14G
BN/BL - 20GBN/BL - 20G
WH/GY - 20G
WH/BN - 20G WH/BN - 20G
GY/YL - 20G
WH - 18G
YL - 20G
GY/BK - 20G
BK - 20G
BK - 20G
BN/GN - 20G BN/GN - 20G
BK - 18G
WH/OR - 20G
WH/YL - 20G
WH/GY - 20G
WH/BN - 20G
GY/YL - 20G
WH - 18G
YL - 20G
LT GN - 14G
WH - 10G
RD - 12G
RD - 12G
BK - 14G
YL - 14G
LT BL - 14G
LT BN - 14G
DK BN - 14G
GY/BK - 20G
BK - 20G
BK - 20G
BN/GN - 20G
BK - 18G
WH/OR - 20G
WH/OR - 20G
WH - 18G
BL/WH - 18G
BL - 18GRD - 6G
WH - 22G
BK - 18G
BL - 18G
BL (Switch 2)
BL (Switch 1)
BK (Switch 2)
BK (Switch 1)
BK - 18G
WH/OR - 20G
WH/YL - 20G
WH/RD - 20G
BK - 20G
BK - 20G
RD - 16G
WH/RD - 20G
WH/OR - 20G
RD - 10G
WH/RD - 20G
WH/OR - 20G
RD - 16G
WH/YL - 20G
RD - 10G
WH/RD - 20G
BK - 20G
RD - 16G
RD - 10G
RD - 10G
30 AMP
25 AMP3 AMP
RD - 12G
BK - 14G
RD - 12G
BK - 14G
YL - 14G
BK - 14G
LT GN - 14G
WH - 10G
RD - 12G
WH - 10G
BK - 20G
BK - 20G
BK - 14G
WH - 18G
BK - 18G
YL - 20G
WH/RD - 18G
WH - 10G
BK - 14G
WH - 18G
BK - 18G
YL - 20G
RD - 18G
LT BL - 14G
LT BN - 14G
DK BN - 14G
WH - 12G
BK - 14G
RD - 12G
YL - 14GYL - 14G
BK - 16G
WH/BK - 18G
BK - 18G
RD - 12G
YL - 14G
BK - 14G
LT GN - 14G
BK - 14G
LT BL - 14G
LT BN - 14G
GY/BK - 20G
BN/BL - 20G
GY/YL - 20G
WH/GY - 20G
WH/OR - 20G
RD - 12G
WH/RD - 18G
YL - 14G YL - 14G
WH/RD - 18G
RD - 18G
WH - 22G
WH - 22G
DK BN - 14G
BN/GN - 20G
WH - 12G
BK - 14G
BK - 14G
LT BL - 14G
LT BN - 14G
GY/BK - 20G
BN/BL - 20G
WH/BN - 20G
WH - 18G
BK/GY - 18G
WH - 18G
BK (Switch)
BL (Switch)
RD - 14G
BK - 14G BK - 14G
RD - 14G
BK - 14G
RD - 14G
GY/YL - 20G
WH/PU - 20G
WH - 20G
WH/PU - 20G
WH - 20G
WH/PU - 20G
WH - 20G
WH/PU - 20G
WH - 20G
WH/OR - 20G
BK - 16G
WH - 16G
BK - 20G
WH/PU - 20G
BN - 20G
BK - 16G
GN - 16G
DK BL - 20G
LT GN - 20G
YL - 20G
BK - 14G
RD - 14G
DK BL - 20G
GN - 16G
BK - 16G
LT GN - 20G
YL - 20G
BK - 14G
GY/YL - 20G
TN/WH - 20G
BN - 16G
BN - 16G
PK - 20G
WH - 16G
GY - 16G
BL (Switch 1)
BK - 16G
BL (Switch 2)
BK (Switch 1)
BK (Switch 2)
RD - 16 G
BL (Switch 1)
BK - 16G
BK (Switch 1)
RD - 16 G
WH/BN - 18G
BK - 18G
WH - 12G
BK - 18G
WH/GY - 20G
LT GN - 14G
WH - 20GBN/BL - 20G
GY/YL - 20GGY/YL - 20G
WH/OR - 20GWH/OR - 20G
WH/OR - 20GWH/BK - 18G
WH/OR - 20GWH/RD - 18G
OR - 20GLT BL - 14G
YL - 20GBN/GN - 20G
PU - 20G
BN - 20G
WH/BR - 20G
WH - 20G
BK - 20G
WH - 16G
GY - 16G
DK BL - 20G
LT GN - 20G
YL - 20G
BK - 14G
RD - 14G
RD - 12G
WH/RD - 18G
BK - 18G
DK BN - 14G
BN/GN - 20G
WH - 12G
BK - 20G
BK - 14G
BK - 14G
LT BL - 14G
LT BN - 14G
GY/BK - 20G
BN/BL - 20G
WH/BN - 20G
GY/YL - 20G
GY/YL - 20G
WH/PU - 20G
WH - 20G
WH - 20G
WH/OR - 20G
RD - 12G
WH/RD - 18G
BN - 20G
M
M
_
IGN.
50 AMP
BAT.
BK - 20G
BN - 20G
BK - 20G
BN - 20G
BK (Switch)
BL (Switch)
RAMP
OUT
SWITCH
COM
NO
TRANSMISSION
INTERLOCK
SWITCH
FUSE BLOCK
TO OEM
IGNITION
DASH
DOOR
SWITCH
KNEEL
ON/OFF
SWITCH
COM
NO
COM
NO
C-PILLAR
DOOR
SWITCH
KNEEL
OVERRIDE
SWITCH
DOOR
OPEN
SWITCH
TO OEM DOOR
(MODULE
HARNESS SIDE)
TO OEM DOOR
(MODULE
HARNESS SIDE)
TO OEM DOOR
(MODULE
CONNECTOR SIDE)
TO OEM DOOR
(MODULE
CONNECTOR SIDE)
COM
NO
COM
NO
85
86
30
87
87A
85
86
30
87
87A
KNEEL
RAISED
SWITCH
COM
NO
KNEEL
LOWERED
SWITCH
KNEEL
ACTUATOR
PMM CONTROLLER
35-4086-0
OEM DOOR RELAY BOARD
RELAY 1
COM
NO
MAGNETIC
ENTRY SWITCH
GRD
GRD
GRD
COM
NO
DRAWING NOTES
Junctions only occur at intersections with junctions symbol.
All other intersections are wire crossings with out junctions!
BATTERY
JUNCTION
CHASSIS GROUND
FUSE
MOTOR
DESCRIPTION SYMBOL
CONNECTOR
COM
NO
NC
COM
NO
85
86
30
87
87A
NC SWITCH
NO SWITCH
MOMENTARY SWITCH
MOMENTARY SWITCH
RELAY
DESCRIPTION SYMBOL
GRD
12
12
12
1
3456789
10111213141516
2
21
21
11
23
2
1
13
54
5
6
64
21
2
3
31
3456
65
6
4321
5432178910111213141516
21
21
12
12
21
2
3
31
65
6
4321
543
12
12
21
12
1
3456
2
12
12
12
12
3456
98
9
7654
876
12
1
34
23454
321
321
65
6
4321
54321
65
6
4321
54321
21
21
21
21
21
21
21
21
21
21
21
21
21
21
21
2
3
3
4
4
5
5
6
6
7
7
8
8
9
91
21
21

Table of Contents

Related product manuals