EasyManua.ls Logo

BraunAbility Rampvan - REPLACEMENT PARTS - Infloor Ramp; Infloor Ramp Parts List

BraunAbility Rampvan
46 pages
Print Icon
To Next Page IconTo Next Page
To Next Page IconTo Next Page
To Previous Page IconTo Previous Page
To Previous Page IconTo Previous Page
Loading...
Page 29B Page 30B
Unfold for:
2008 - 2010
Power
Door,
Infloor
Ramp and
Kneel
Wiring Diagram
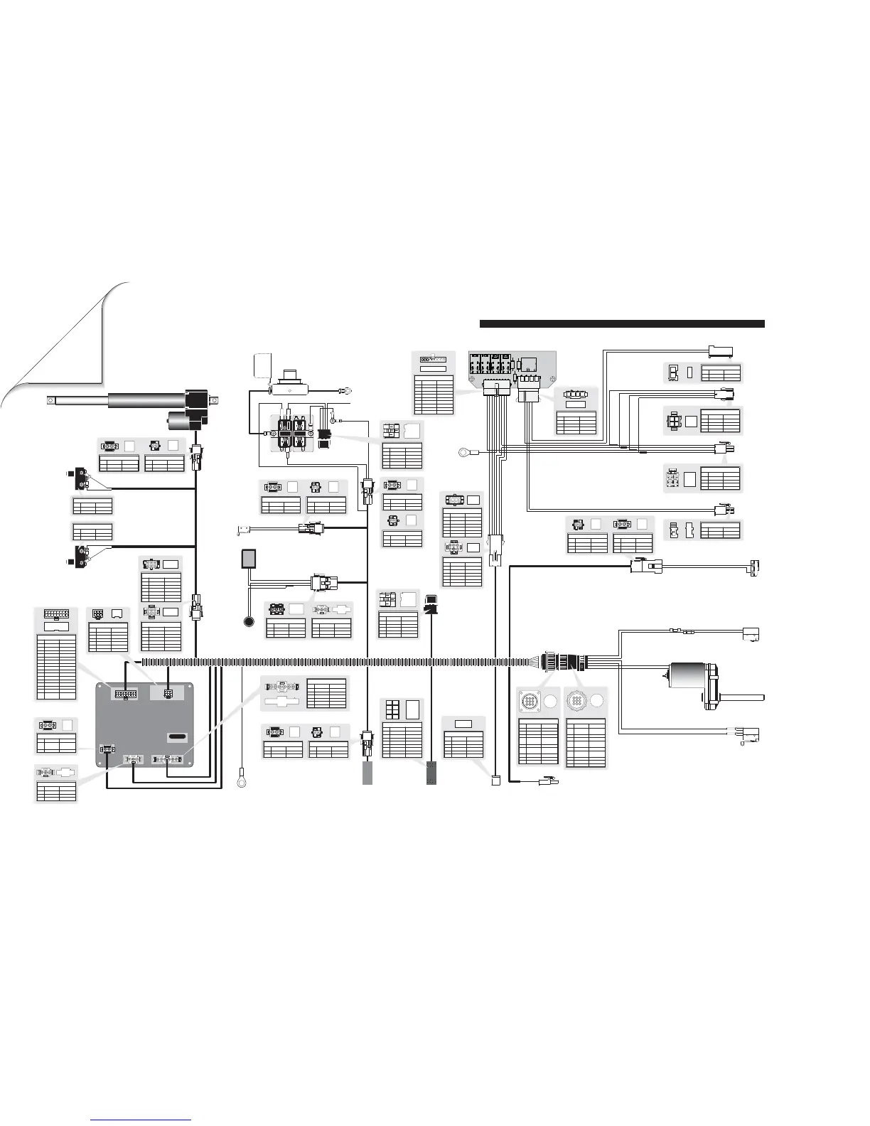
2008 - 2010 Power Door, Foldout Ramp and Kneel Wiring Diagram
To: OEM
Door (Module
Connector Side)
To: OEM
Door (Module
Connector Side)
To: OEM
Door (Module
Harness Side)
To: OEM
Door (Module
Harness Side)
Transmission
Interlock
Switch
Fuse Block S-7105-2
50 AMP
E40142A
E90158A
S-7102-1
S-7116-1
36-1012-3
TO Battery (+)
TO OEM
Ingnition
Kneel Actuator 33440A
OEM Door Relay Board 100380-001
Body
Ground
Ground
Stud
PMM Controller 35-4086-0
Magnetic Entry
Switch (Optional)
RW-7704-1
Kneel Override
Switch
35-8536-0
Yazaki
Connector
(N/A)
TO: HARNESS
E90180A
6
13
42
15
16
1
-
-
+
+
K3
11
J1
9
9
8
6
13
42
15
16
1
-
-
8
+
+
K4
6
13
4
16
D3
100380-
Assy
11
Rev
J2
9
8
Omron
G8NW-
K5
1
12VDC
2
XXXXXX
JAPAN
1
11
K1
9
86
13
4
16
1
11
K2
D2
D1
IGN.
BAT.
25
30
F-3 F-3
F-4
F-2
F-4
F-1F-1
F-2
3
ON
OFF
PWR
DOOR
6
5
4
3
2
1
COLOR FUNCTIONNO.
16-COND WIRE CODE
7
8
9
10
11
12
13
14
15
16
TN/WH - 20G
NOT USED
BL - 20G
NOT USED
NOT USED
RD -16G
VT - 20G
WH/BK - 20G
BN - 20G
WHVT - 20G
YL/RD - 20G
BK - 18G
BK - 18G
NOT USED
NOT USED
BK - 18G
Kneel Raised
N/A
Park Switch
N/A
N/A
Logic Power
Kneel Lowered
Ramp Stowed
Ramp Deployed
Door Full Open
Door Closed
Latch Out - Gnd
Latch In - Gnd
N/A
N/A
Ramp Delay
Enable - Gnd
9 10111213141516
12345678
2
1
COLOR FUNCTIONNO.
2-COND WIRE CODE
BK - 12G
RD - 12G
Ground
High Current
Power
12
2
1
COLOR FUNCTIONNO.
2-COND WIRE CODE
BK - 20G
WH/RD - 20G
Ground
Park
2
1
COLOR FUNCTIONNO.
2-COND WIRE CODE
BK - 18G
BL - 18G
Ground
Park
12
2
1
COLOR FUNCTIONNO.
2-COND WIRE CODE
WH - 22G
WH - 22G
Mag Entry
Mag Ground
2
1
COLOR FUNCTIONNO.
2-COND WIRE CODE
WH/OR - 20G
BK - 20G
Mag Entry
Mag Ground
2
1
COLOR FUNCTIONNO.
2-COND WIRE CODE
BK/WH - 16G
GN/BK - 16G
Door Motor
Latch Solenoid
2
1
COLOR FUNCTIONNO.
3-COND WIRE CODE
BL/WH - 18G
WH - 18G
Kneel ON/OFF
3 BK - 18G Ground
Dash Operate
2
1
COLOR FUNCTIONNO.
3-COND WIRE CODE
WH/RD - 12G
BL/BK - 12G
Kneel Override
3 NOT USED N/A
Kneel Motor 1
12
2
1
COLOR FUNCTIONNO.
2-COND WIRE CODE
BK - 20G
RD - 16G
Ground
Logic Power
21
2
1
COLOR FUNCTIONNO.
2-COND WIRE CODE
BK - 14G
RD - 14G
Ground
Logic Power
6
5
4
3
2
1 NOT USED
FRONT VIEW SHOWN
COLOR FUNCTIONNO.
9-COND WIRE CODE
7
8
9
BK - 20G
WH/BK - 20G
BK - 20G
BN - 20G
NOT USED
OR/BK - 14G
NOT USED
WH/OR/BK 14G
Ramp Stowed
Ground
Ramp Stowed
Ramp Deployed
Ground
Ramp Deployed
N/A
N/A
Ramp Motor 1
N/A
Ramp Motor 2
123
123
12
2
1
COLOR FUNCTIONNO.
6-COND WIRE CODE
WH/RD/OR - 14G
OR/BK - 14G
Ramp Motor 2
3 NOT USED N/A
4 OR - 20G PMM Door close
5 NOT USED N/A
6 YL/BL - 20G Sleep Harness
Ramp Motor 1
2
1
COLOR FUNCTIONNO.
5-COND WIRE CODE
NOT USED
WH/OR - 18G
N/A
3 NOT USED N/A
4 NOT USED N/A
C-Pillar Ground
5 BK - 18G
C-Pillar Operate
WH - 18G
BL/WH - 18G
BL - 18G
RD - 12G
RD - 12G
RD - 14G
BK - 14G
BK - 14G
RD - 12G
RD - 12G
WH - 16G
RD - 12G WH - 16G
BK - 18G
BK - 18GBK - 18G
BK - 18G
BK - 12G
WH/OR - 20G
BK - 16G
GN - 16G
DK BL - 20G
WH/OR - 20G
YL/RD - 20G
BK - 16G
DK BL - 20G
WH/OR - 20G
YL/RD - 20G
BK - 16G
GN - 16G
BK - 16G
BK/WH - 16G
GN/BK - 16G
BK/WH - 16G
GN/BK - 16G
DK BL - 20G
WH/OR - 20G
YL/RD - 20G
BK - 16G
213
2
1
COLOR FUNCTIONNO.
3-COND WIRE CODE
WH/YL - 20G
WH/OR - 20G
Kneel ON/OFF
3 BK - 20G Ground
Dash Operate
21
2
1
COLOR FUNCTIONNO.
2-COND WIRE CODE
BK - 12G
RD - 12G
Kneel Motor 2
Kneel Motor 1
21
12
Door
Open
Switch
E90183A
BK - 16G
WH - 16G
2
1
COLOR FUNCTIONNO.
6-COND WIRE CODE
WH - 20G
TN/WH - 20G
3 YL/RD - 20G
4 BN - 20G
5 VT - 20G
6 OR - 20G
Mag Operate
PMM Door Close
??
Door Closed
PMM Trigger
C-Pillar Operate
2
1
COLOR FUNCTIONNO.
6-COND WIRE CODE
WH - 20G
TN/WH - 20G
3 YL/RD - 20G
4 BN - 20G
5 VT - 20G
6 OR - 20G
Mag Operate
PMM Door Close
??
Door Closed
PMM Trigger
C-Pillar Operate
654
321
321
654
12345
2
1
COLOR FUNCTIONNO.
8-COND WIRE CODE
WH - 12G
RD - 12G
Kneel Motor 2
3 WH/RD - 12G Kneel Override
4 NOT USED N/A
N/A
5 NOT USED
N/A
6 NOT USED
N/A
7 NOT USED
N/A
8 NOT USED
Battery
123
456
789
6
5
4
3
2
1 WH/OR - 20G
COLOR FUNCTIONNO.
9-COND WIRE CODE
7
8
9
DK BL - 20G
WH/BK - 20G
BN - 20G
VT - 20G
OR - 20G
BK - 20G
WH - 20G
TN/WH - 20G
Handle Switch
Door Operate
Ground
Ramp Deploy
Kneel Lower
PMM Door Close
Battery
PMM Operate
Ramp Stow
123456789
4
3
2
1 BK/WH - 16G
COLOR FUNCTIONNO.
4-COND WIRE CODE
GN/BK - 16G
GN - 16G
BK - 16G
Latch Solenoid
Door Motor
Door Motor
Latch Solenoid
1234
123456
36
25
14
87
36
25
14
87
2
1
COLOR FUNCTIONNO.
4-COND WIRE CODE
YL/RD - 20G
BK - 16G
3 WH/OR - 20G
4 DK BL - 20G
Door Closed
Handle Switch
Battery
Ground
2
1
COLOR FUNCTIONNO.
4-COND WIRE CODE
YL/RD - 20G
BK - 16G
3 WH/OR - 20G
4 DK BL - 20G
Door Closed
Handle Switch
Battery
Ground
Kneel
ON/OFF
Switch
31022
Dash
Door
Switch
20-0022-0
Kneel
RAISED
Switch
31784WP
Kneel
LOWERED
Switch
31784WP
2
1
COLOR FUNCTIONNO.
6-COND WIRE CODE
BK - 20G
BK - 20G
3 WH - 12G Kneel Motor 2
4 VT - 20G Ground
5 TN/WH - 20G Kneel Raise
6 BL/BK - 12G Kneel Motor 1
Kneel Lower
Ground
2
1
COLOR FUNCTIONNO.
6-COND WIRE CODE
WH/BK - 20G
WH/BK - 20G
3 RD - 12G
4 BN/WH - 20G
5 TN/WH - 20G
6 BK - 12G
Kneel Motor 2
Ground
Kneel Raise
Kneel Motor 1
Kneel Lower
Ground
123
456
123
456
85
30
COLOR FUNCTIONNO.
RELAY WIRE CODE
BK - 20G
TN/WH - 20G
??
86 YL/BL - 20G ??
87 WH/BK - 20G ??
??
87A NOT USED
??
30
87A
87
86
85
85
30
COLOR FUNCTIONNO.
RELAY WIRE CODE
BK - 14G
RD - 12G
??
86 WH - 16G ??
87 RD - 12G ??
??
87A NOT USED
??
30
87A
87
86
85
2
1
COLOR FUNCTIONNO.
2-COND WIRE CODE
BK - 16G
GN - 16G
Door Motor
Latch Solenoid
1
2
21
43
12
34
1
2
456
123
2
1
COLOR FUNCTIONNO.
6-COND WIRE CODE
NOT USED
NOT USED
3 WH - 20G
4 NOT USED N/A
5 LT BL - 20G Kneel ON/OFF
6 NOT USED N/A
N/A
N/A
PMM Operate
NO
COM
COLOR FUNCTION-
MICROSWITCH CONN
WH/BK - 20G
TN/WH - 20G
??
??
NO
COM
COLOR FUNCTION-
MICROSWITCH CONN
WH/BK - 20G
BN/WH - 20G
??
??
2
1
COLORNO.
3-COND WIRE CODE
WH/VT - 20G
NOT USED
2
1
COLOR FUNCTIONNO.
3-COND WIRE CODE
WH/VT - 20G
RD - 18G
Ground
Door Full Open
FUNCTION
Ground
3
BK - 20G3 BK - 20G Ground Ground
N/A
12
12
Ramp
STOWED
Switch
36-2016-1
RF50081A
Ramp
DEPLOYED
Switch
35-8425-0
Ramp Motor
RW-5191
REAR VIEW SHOWN
6
5
4
3
2
1NONE
COLOR FUNCTIONNO.
9-COND WIRE CODE
7
8
9
BK/GN - 18G
WH/BK - 18G
BK - 18G
WH - 18G
NONE
RD - 14G
NONE
BK - 14G
Ramp Stowed
Ground
Ramp Stowed
Ramp Deployed
Ground
Ramp Deployed
N/A
N/A
Ramp Motor 1
N/A
Ramp Motor 2
WH - 18G
BK - 18G
WH - 18G
BK - 18G
WH - 18G
BK - 18G
WH/BK - 18G
BK/GN - 18G
N.C.
COM
WH/BK - 18G
BK/GN - 18G
RD - 14G
BK - 14G
RD - 14G
BK - 14G
123
456
789
12
2
1
COLOR FUNCTIONNO.
2-COND WIRE CODE
BK - 14G
RD - 14G
Kneel Motor 2
Kneel Motor 1

Table of Contents

Related product manuals