EasyManua.ls Logo

Breckwell SP24 - Chimney and Fireplace Installations; Vertical Installation with New Chimney; Vertical Installation into Existing Chimney

Breckwell SP24
30 pages
Print Icon
To Next Page IconTo Next Page
To Next Page IconTo Next Page
To Previous Page IconTo Previous Page
To Previous Page IconTo Previous Page
Loading...
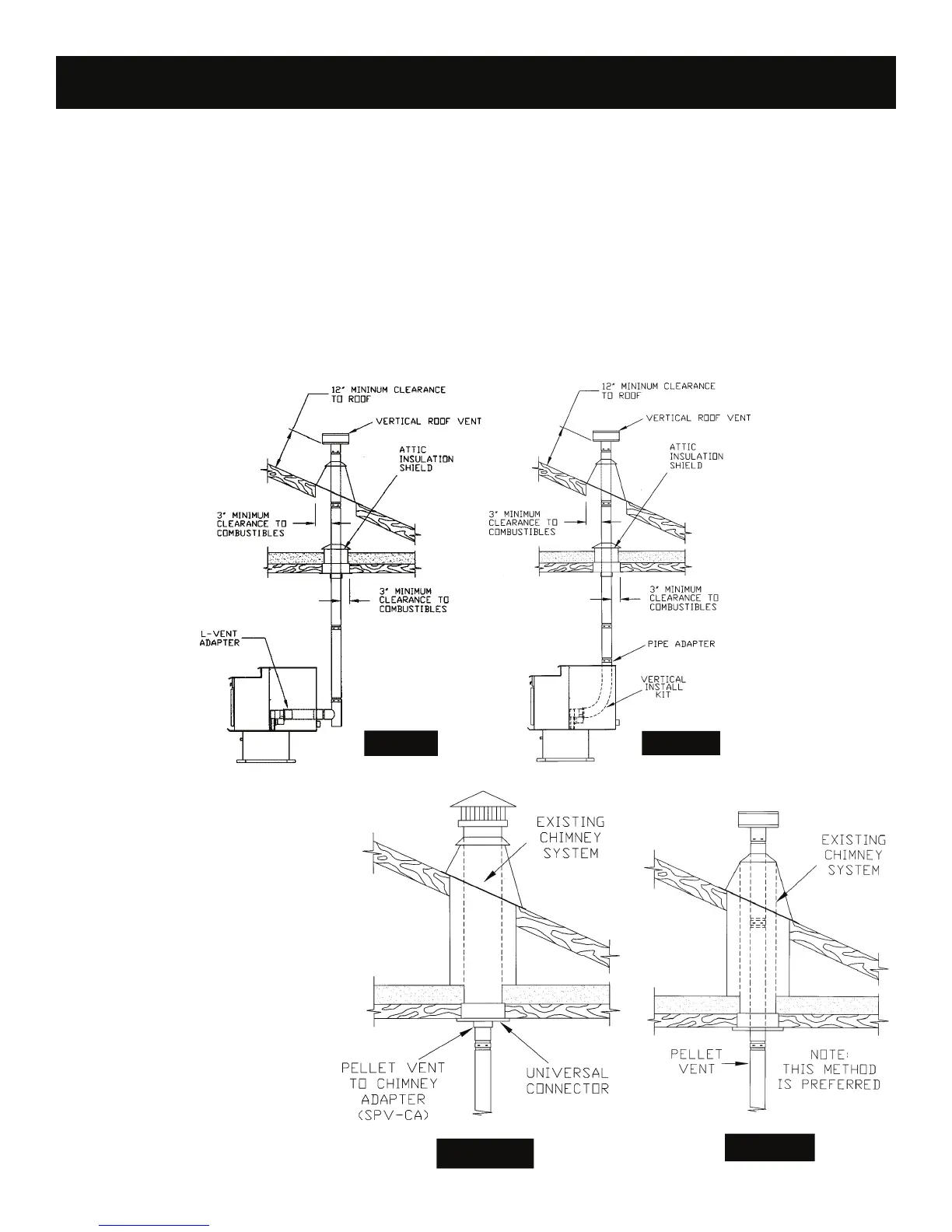
9
FIGURE 9a
FIGURE 9b
B. VERTICALLY WITH NEW CHIMNEY SYSTEM (Refer to Figure 9a & 9b)
NOTE: Follow L-Vent chimney manufacturer’s instructions.
OPTION: To achieve a center vertical installation a 45º elbow and a clean-out tee can be used to o set the pipe from the exhaust outlet
to the rear center of the stove (see  gure 9a). You can also use the P24FS Vertical Install Kit (part # A-VIK) (see  gure 9b).
OPTION: Install L-Vent elbow in place of clean-out tee. Locate stove. Drop plumb bob to center of tee outlet, mark point on ceiling.
Install ceiling support and L-Vent pipe per L-Vent manufacturer’s instructions.
1. Always maintain 3” clearance from combustible materials. When passing through additional  oors or ceilings, always install  re-
stop spacer.
2. A er lining up for hole in roof, cut either around or square hole in roof, always 3” larger all the way around pipe. Install upper edge
and sides of  ashing under roo ng materials, nail to the roof along upper edge. Do not nail lower edge. Seal nail heads with non-
hardening waterproof mastic.
3. Apply non-hardening, waterproof mastic where the storm collar will meet the vent and  ashing. Slide storm collar down until it
sits on the  ashing. Seal and install cap. Mobile home installations must use a spark arrester.
INSTALLATION
INSTALLATION
FIGURE 10b
FIGURE 10a
C. VERTICALLY INTO EXISTING
CHIMNEY SYSTEM
Adapters are available to adapt from 3” L-
Vent to 6” or 8” Class-A chimney. (Figure
10a)
As an alternative, 3” or 4” L-Vent can be
run inside existing chimney to termina-
tion. (Figure 10b)
is is the preferred method.
Follow guidelines for equivalent vent
length.

Related product manuals