EasyManua.ls Logo

Broan SPE136SS - Page 48

Broan SPE136SS
50 pages
Print Icon
To Next Page IconTo Next Page
To Next Page IconTo Next Page
To Previous Page IconTo Previous Page
To Previous Page IconTo Previous Page
Loading...
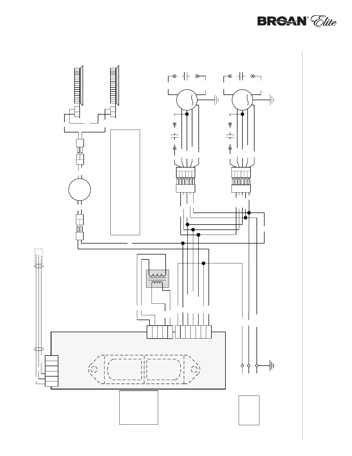
MANUAL DE INSTALACIÓN
DIAGRAMA DE CABLEADOS
232323
NE
NE
NE
B
Placa electrónica
J2
Potencia, Motor
J6
Interruptor de
anulación ADA
42 31 6
J1
Transformador
NE (Alta)
NA (Media)
R (Baja)
V/AM
R
AZ
5
4
3
2
1
5
4
3
2
1
7
6
Interfaz de
usuario
montada
en la parte
trasera de la
placa
electrónica
.
24 V
Clase 2
NE (A)
NA (M)
R (B)
V/AM
B
B
B
R
NE
Manga termo-retráctil
Línea
Neutro
Tierra
Fuente de
energía
120 VCA
B
NE
NA
V/AM
1
2
3
5
4
6
C
R AM
NE
NE
Condensador
baja velocidad
C
C/B
1
2
3
5
4
6
R
C
Condensador
baja velocidad
B
R
NE
Activador
LED
B
NE
R
NE
1
2
1
2
LED
2 1
LED
2 1
B
B
AZ
CÓDIGO DE COLORES
REF: 990729737_REV-A
5
R
AZ
NE (A)
NA (M)
R (B)
V/AM
B
B
NE
NA
V/AM
R
AM
NE
NE
M
M
R
C
C/B
R
R
AM
AZ
B
C
C/B
AMARILLO
AZUL
BLANCO
CAFÉ
CAFÉ/BLANCO
NA
NE
R
V/AM
NARANJA
NEGRO
ROJO
VERDE/AMARILLO

Related product manuals