EasyManua.ls Logo

Bromic Heating Tungsten 2000w - Heater Installation; Installation Clearances

Bromic Heating Tungsten 2000w
16 pages
Print Icon
To Next Page IconTo Next Page
To Next Page IconTo Next Page
To Previous Page IconTo Previous Page
To Previous Page IconTo Previous Page
Loading...
6
www.bromicheating.com
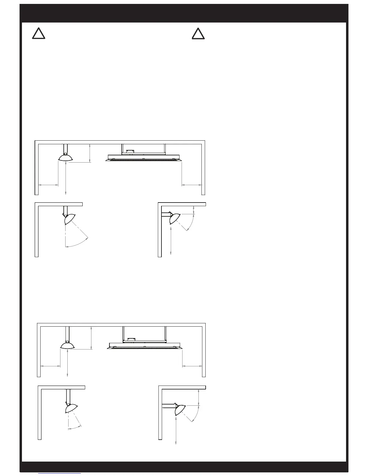
HEATER INSTALLATION
INSTALLATION CLEARANCES
FOR 2000W & 3000W MODELS
2000W & 3000w models must be installed with the minimum installation clearances shown in below diagrams. 2000W &
3000W models are supplied with short mounting brackets to be used for both ceiling & wall mounting.
INSTALLATION CLEARANCES
FOR 4000W & 6000W MODELS
4000W & 6000W models must be installed with the minimum installation clearances shown in below diagrams. 4000W
& 6000W models are supplied with long mounting brackets to be used for both ceiling & wall mounting.
Alternatively, short mounting brackets can be used for wall mounting of the 4000W & 6000W models to position the
heater closer to the wall. Short mounting brackets must be purchased separately.
10”
12”
45°
5”
45°
30°
30
°
96”(8’)
CEILING MOUNTING MINIMUM
CLEARANCE TO FLOOR
71”(6’)
WALL MOUNTING MINIMUM
CLEARANCE TO FLOOR
12”
18” 12”
13”
12”
96”(8’)
CEILING MOUNTING MINIMUM
CLEARANCE TO FLOOR
71”(6’)
WALL MOUNTING MINIMUM
CLEARANCE TO FLOOR
10”
12”
45°
5”
45°
30°
30
°
96”(8’)
CEILING MOUNTING MINIMUM
CLEARANCE TO FLOOR
71”(6’)
WALL MOUNTING MINIMUM
CLEARANCE TO FLOOR
12”
18” 12”
13”
12”
96”(8’)
CEILING MOUNTING MINIMUM
CLEARANCE TO FLOOR
71”(6’)
WALL MOUNTING MINIMUM
CLEARANCE TO FLOOR
WARNING
DO NOT MOUNT THE HEATER VERTICALLY!
Heater MUST be installed so that the tube elements
are horizontal. Failure to do this will cause the heating
element within the tube to sag and cause premature
burnout. Installing vertically will void the manufacturers
warranty.
!
!
WARNING
DO NOT MOUNT THE HEATER VERTICALLY!
For outdoor installation heater must be mounted with
face of heater angled down.
For longest product life & to maintain product
appearance mount heater under cover & protect from
rain & weather whenever possible.
FOR CANADA (CETL) APPROVAL DO
NOT INSTALL LESS THAN 96” (8’)
FROM THE FLOOR.
FOR CANADA (CETL) APPROVAL DO
NOT INSTALL LESS THAN 96” (8’)
FROM THE FLOOR.

Related product manuals