EasyManua.ls Logo

Bryant 310AAV - Safety Considerations

Bryant 310AAV
45 pages
Print Icon
To Next Page IconTo Next Page
To Next Page IconTo Next Page
To Previous Page IconTo Previous Page
To Previous Page IconTo Previous Page
Loading...
SAFETY CONSIDERATIONS
Improper installation, adjustment, alteration, service, mainte-
nance, or use can cause carbon monoxide poisoning, explo-
sion, fire, electrical shock, or other conditions which may
cause personal injury or property damage. Consult a qualified
installer, service agency, local gas supplier, or your distribu-
tor or branch for information or assistance. The qualified
installer or agency must use only factory-authorized and
listed kits or accessories when modifying this product. Failure
to follow this warning could result in electrical shock, fire,
personal injury, or death.
Application of this furnace should be indoors with special
attention given to vent sizing and material, gas input rate, air
temperature rise, unit leveling, and unit sizing. Improper
installation or misapplication of furnace can require excessive
servicing or cause premature component failure.
Installing and servicing heating equipment can be hazardous due to
gas and electrical components. Only trained and qualified
personnel should install, repair, or service heating equipment.
Untrained personnel can perform basic maintenance functions
such as cleaning and replacing air filters. All other operations must
be performed by trained service personnel. When working on
heating equipment, observe precautions in literature, on tags, and
on labels attached to or shipped with unit and other safety
precautions that may apply.
These instructions cover minimum requirements and conform to
existing national standards and safety codes. In some instances,
these instructions exceed certain local codes and ordinances,
especially those that may not have kept up with changing residen-
tial construction practices. We require these instructions as a
minimum for a safe installation.
Sheet metal parts may have sharp edges or burrs. Use care and
wear appropriate protective clothing and gloves when han-
dling parts. Failure to follow this caution could result in
personal injury.
Wear safety glasses and work gloves. Have fire extinguisher
available during start-up and adjustment procedures and service
calls.
This is the safety-alert symbol
. When you see this symbol on
the furnace and in instructions or manuals, be alert to the potential
for personal injury.
Understand the signal words DANGER, WARNING, CAUTION,
and NOTE. These words are used with the safety-alert symbol.
DANGER identifies the most serious hazards which will result in
severe personal injury or death. WARNING signifies a hazard
which could result in personal injury or death. CAUTION is used
to identify unsafe practices which would result in minor personal
injury or product and property damage. NOTE is used to highlight
suggestions which will result in enhanced installation, reliability,
or operation.
1. Use only with type of gas approved for this furnace. Refer to
the furnace rating plate.
2. Install this furnace only in a location and position as specified
in the “Location” section of these instructions.
3. Provide adequate combustion and ventilation air to the furnace
space as specified in “Air for Combustion and Ventilation”
section.
4. Combustion products must be discharged outdoors. Connect
this furnace to an approved vent system only, as specified in
the “Venting” section of these instructions.
5. Never test for gas leaks with an open flame. Use a commer-
cially available soap solution made specifically for the detec-
tion of leaks to check all connections, as specified in the “Gas
Piping” section.
NOTES:
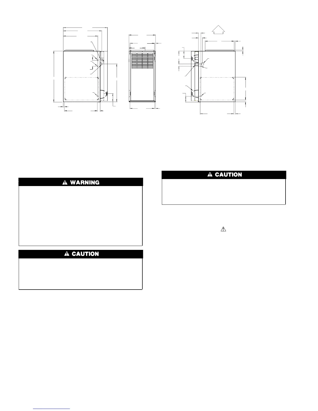
1. Two additional 7/8-in. diameter holes are located in the top plate.
2. Minimum return-air openings ar furnace, based on metal duct. If flex duct is used, see flex duct manufacturers recommendations for equivalent diameters.
a. For 800 CFM-16-in. round or 14 1/2 x 12-in. rectangle.
b. For 1200 CFM-20-in. round or 14 1/2 x 19 1/2-in. rectangle.
c. For 1600 CFM-22-in. round or 14 1/2 x 22-in. rectangle.
d. For airflow requirements above 1800 CFM, see Air Delivery table in Product Data literature for specific
use of single side inlets. The use of both side inlets, a combination of 1 side and the bottom, or the
bottom only will ensure adequate return air openings for airflow requirements above 1800 CFM.
Fig. 1—Dimensional Drawing
A02304
28-7/8"
25-1/4"
22-9/16"
JUNCTION BOX
LOCATION
7/8" DIA
ACCESSORY
1/2" DIA THERMOSTAT
WIRE ENTRY
3-15/16"
LEFT HAND GAS
ENTRY
33-5/16"
24-7/8"
5-1/2"
7/8" DIA. ACCESSORY
11/16"
21-5/8"
BOTTOM INLET
1-11/16"
13/16"
11/16"
1-9/16"
2-9/16"
4-13/16"
AIRFLOW
19"
OUTLET
13/16"
11/16"
8-7/16"
1-7/16"
ALTERNATE
JUNCTION BOX
LOCATION (TYP)
VENT OUTLET
5 PLACES (TYP)
3-3/4"
1-1/2" DIA.
RIGHT HAND
GAS ENTRY
1/2" DIA. THERMOSTAT
WIRE ENTRY
SIDE INLET
14-7/8"
7/8" DIA. ACCESSORY
1-1/4"
1"
22-1/16"
A
D
F
E
2

Table of Contents

Other manuals for Bryant 310AAV

Related product manuals