EasyManua.ls Logo

Bryant 350AAV - Page 30

Bryant 350AAV
60 pages
Print Icon
To Next Page IconTo Next Page
To Next Page IconTo Next Page
To Previous Page IconTo Previous Page
To Previous Page IconTo Previous Page
Loading...
An abandoned masonry chimney may be used as a raceway for
properly insulated and supported combustion-air (when appli-
cable) and vent pipes. Each furnace must have its own set of
combustion-air and vent pipes and be terminated individually, as
shown in Fig. 42 for Direct Vent (2-Pipe) system and Fig. 43 for
Non-Direct Vent (1-Pipe) system.
A furnace shall not be connected to a chimney flue serving a
separate appliance designed to burn solid fuel.
Other gas appliances with their own venting system may also use
the abandoned chimney as a raceway providing it is permitted by
local code, the current edition of the National Fuel Gas Code and
the vent or liner manufacturer’s installation instructions. Care must
be taken to prevent the exhaust gases from one appliance from
contaminating the combustion air of other gas appliances.
CAUTION: UNIT MAY NOT OPERATE
Failure to follow this caution may result in intermittent
unit operation.
When vent pipe is exposed to temperatures below freez-
ing, such as when it passes through an unheated space or
when a chimney is used as a raceway, pipe must be
insulated as shown in Table 10 with Armaflex-type
insulation.
Furnace combustion air and vent pipe connections are sized for
2-in. pipe. Any pipe size change should be made outside furnace
casing in vertical pipe. The transition has to be made as close to the
furnace as reasonably possible.
E. Combustion Air Pipe
GENERAL
Furnace combustion-air connection must be attached as shown in
Fig. 37. Combustion-air intake housing plug may need to be
relocated in some applications.
For Non-Direct Vent (1-Pipe) system, combustion-air must termi-
nate outside of furnace casing with 1 elbow. Orient elbow so that
its opening faces down for upflow or downflow applications.
Orient elbow so that its opening faces sideways (left or right) for
horizontal left or horizontal right applications (See Fig. 37.)
Maintain a 3-in minimum clearance between the opening of the
combustion-air inlet pipe and any object.
CAUTION: UNIT CORROSION HAZARD
Excessive exposure to contaminated combustion air may
result in safety and performance related problems.
Combustion air must not be taken from inside structure
because inside air is frequently contaminated by halo-
gens, which include fluorides, chlorides, bromides, and
iodides. These elements are found in aerosols, detergents,
bleaches, cleaning solvents, salts, air fresheners, adhe-
sives, paint, and other household products. Locate
combustion-air inlet as far as possible from swimming
pool and swimming pool pump house.
NOTE: All pipe joints must have cemented attachment of
combustion-air inlet pipe to inlet housing connection, since it may
be necessary to remove pipe for servicing.
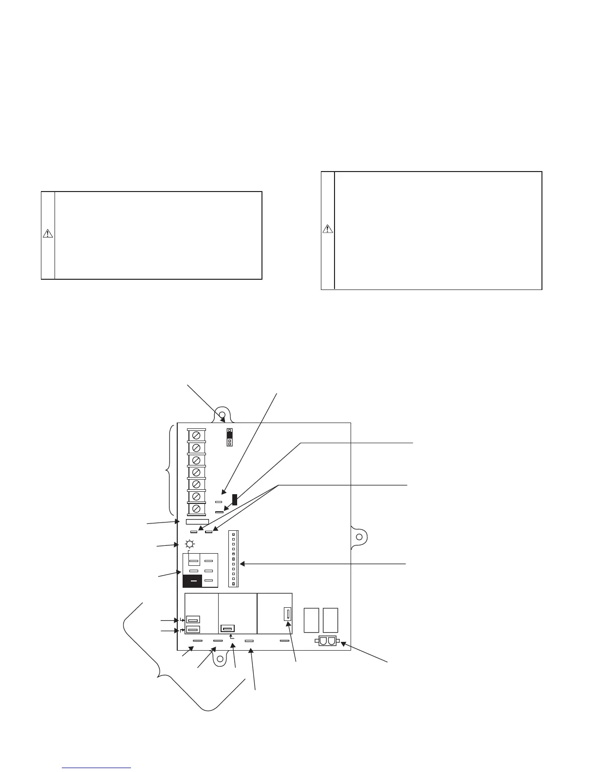
Fig. 36—Furnace Control
A02142
BLW
NUETRAL
STATUS CODE LED
SEC-2 SEC-1
EAC-2 L2
FUSE 3-AMP
0.5 AMP@24VAC
HUM
TEST/TWIN
Y1 DHUM G COM W/W1 Y/Y2 R
24V
PLT
120 180
90 150
BLOWER OFF-DELAY
PLT 1
COOL HEAT
SPARE-1 SPARE-2
FAN
EAC-1
1-AMP@
115VAC
PR-1
L1
PL2 1
24-V THERMOSTAT
TERMINALS
3-AMP FUSE
LED OPERATION &
DIAGNOSTIC LIGHT
115-VAC(L2)NEUTRAL
CONNECTIONS
COOL
HEAT
SPARE-1
SPARE-2 FAN
BLOWER SPEED
SELECTION TERMINALS
EAC-1 TERMINAL
(115-VAC 1.0 AMP MAX.)
115 VAC (L1) LINE
VOLTAGE CONNECTION
PL2-HOT SURFACE
IGNITER & INDUCER
MOTOR CONNECTOR
PL1-LOW VOLTAGE MAIN
HARNESS CONNECTOR
TRANSFORMER 24-VAC
CONNECTIONS
HUMIDIFIER TERMINAL
(24-VAC 0.5 AMP MAX.)
TWINNING AND/OR
COMPONENT TEST
TERMINAL
BLOWER OFF-DELAY
—30—

Other manuals for Bryant 350AAV

Related product manuals