EasyManua.ls Logo

Bryant 355AAV - Page 27

Bryant 355AAV
60 pages
Print Icon
To Next Page IconTo Next Page
To Next Page IconTo Next Page
To Previous Page IconTo Previous Page
To Previous Page IconTo Previous Page
Loading...
27
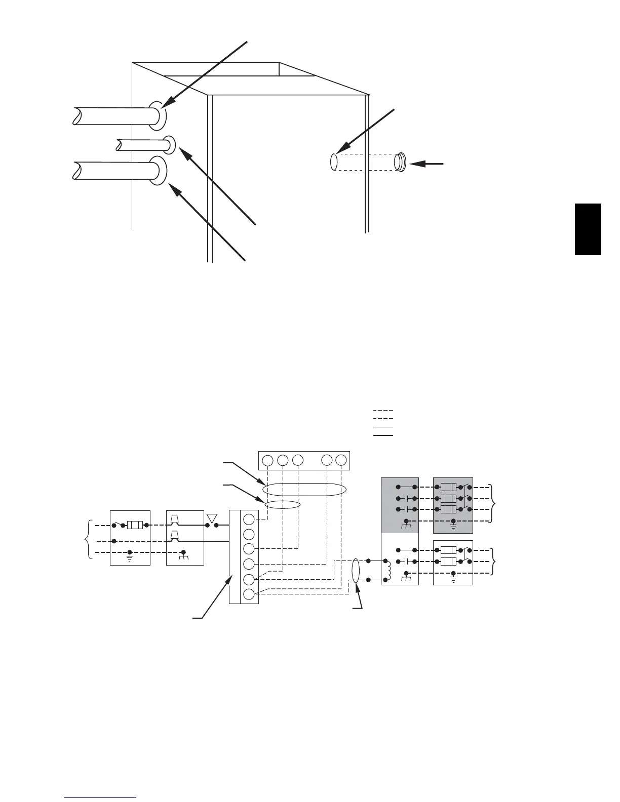
COMBUSTION-AIR PIPE GROMMET
GAS LINE GROMMET
GAS LINE
COMBUSTION
-AIR PIPE
VENT PIPE
VENT PIPE GROMMET
UNUSED 1-3/4 -IN. (44 mm)
DIAMETER GAS
CONN. HOLE
GAS LINE ENTRY
HOLE FILLER PLUG
NOTE: PIPE GROMMETS AND ENTRY HOLE FILLER
PLUGS ARE INCLUDED IN FACTORY-SUPPLIED
LOOSE PARTS BAG
A05057
Fig. 31 -- Casing Pipe Grommets
115-V
FIELD-SUPPLIED
DISCONNECT
SWITCH
115-V
SINGLE
PHASE
AUXILIARY
J-BOX
FURNACE
CONTROL
CENTER
TWO WIRE
24-V
TERMINAL
BLOCK
THREE-WIRE
HEATING
ONLY
FIVE
WIRE
NOTE 5
NOTE 1
NOTE
3
THERMOSTAT
TERMINALS
FIELD-SUPPLIED
DISCONNECT
CONDENSING
UNIT
R
W2
WCR GY
GND
GND
GND
GND
FIELD 24-V WIRING
FIELD 115-, 208/230-, 460-V WIRING
FACTORY 24-V WIRING
FACTORY 115-, 208/230-, 460-V WIRING
208/230- OR
460-V
THREE PHASE
208/230-V
SINGLE
PHASE
W/W1
Y/Y2
G
C
NOTES:
1.
2.
3.
4.
5.
Connect Y or Y/Y2 terminal as shown for proper cooling operation.
Proper polarity must be maintained for 115-v wiring.
Use W2 with 2-stage thermostat when zoning.
If any of the original wire, as supplied, must be replaced, use
same type or equivalent wire.
Some thermostats require a "C" terminal connection as shown.
A98325
Fig. 32 -- Heating and Cooling Application Wiring Diagram
355A

Related product manuals