EasyManua.ls Logo

Bryant 355AAV - Page 35

Bryant 355AAV
60 pages
Print Icon
To Next Page IconTo Next Page
To Next Page IconTo Next Page
To Previous Page IconTo Previous Page
To Previous Page IconTo Previous Page
Loading...
35
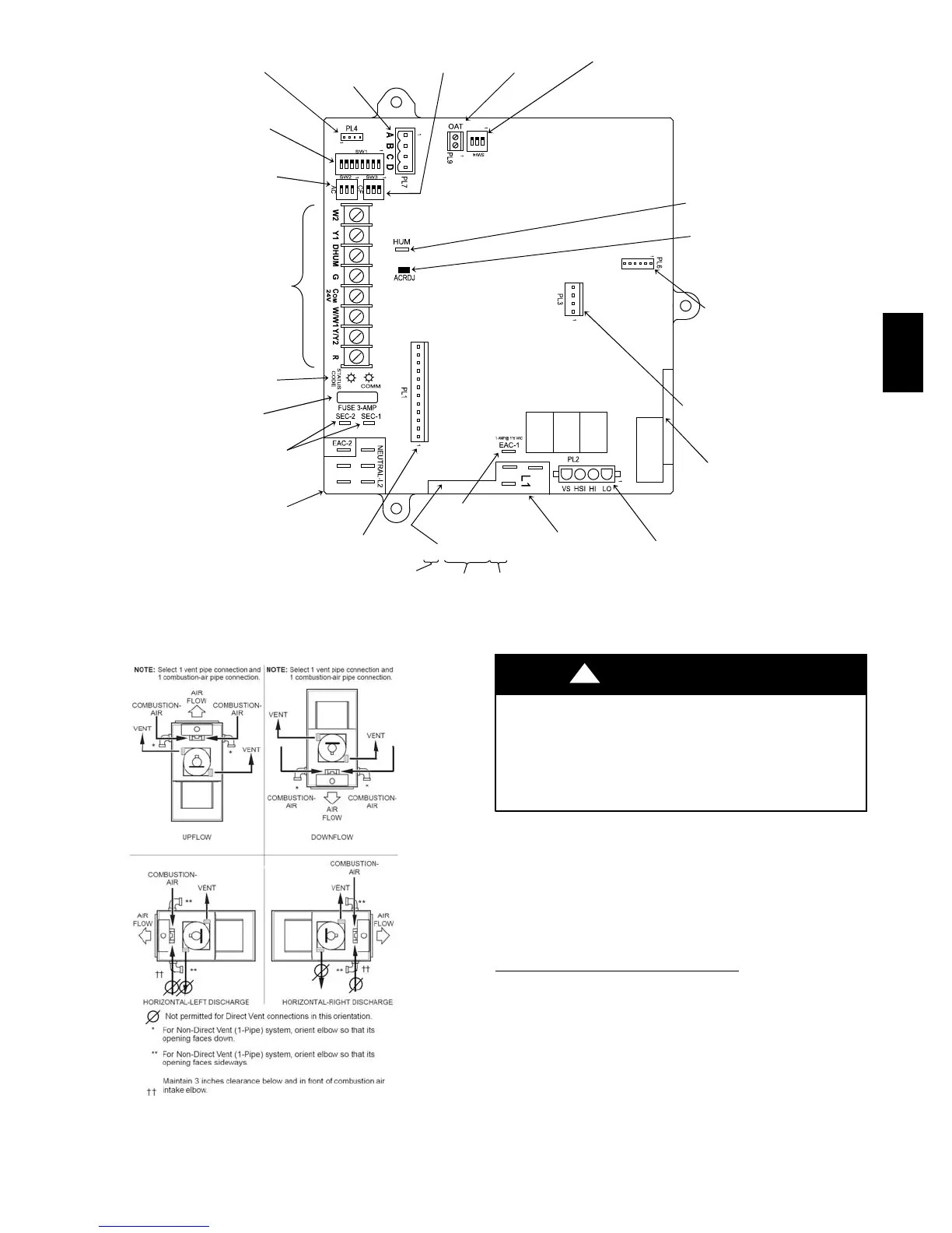
24-V THERMOSTAT
TERMINALS
PL2 – HOT SURFACE
IGNITER & INDUCER
MOTOR CONNECTOR
115-VAC (L2) NEUTRAL
CONNECTIONS
115-VAC (L1) LINE
VOLTAGE CONNECTIONS
EAC-1 TERMINAL
(115 -VAC 1.0 AMP MAX.)
PL1 – LOW VOLTAGE MAIN
HARNESS CONNECTOR
PL3 – ECM BLOWER
HARNESS
CONNECTOR
T
RANSFORMER 24-VAC
CONNECTIONS
3-AMP FUSE
STATUS AND COMM
LED LIGHTS
SW1 SETUP
SWITCHES AND
BLOWER OFF-
DELAY
MODEL PLUG
CONNECTOR
AIR CONDITIONING
(A/C) AIRFLOW
SETUP SWITCHES
USER INTERFACE
OR ADVANCED
PRODUCT
MONITOR
CONNECTOR
CONTINUOUS FAN
(CF) AIRFLOW
SETUP SWITCHES
OAT
CONNECTOR
HUMIDIFIER
TERMINAL (24-VAC
0.5 AMP MAX.
ACRDJ – AIR
CONDITIONING
RELAY DISABLE
JUMPER
FLASH
UPGRADE
CONNECTOR
(FACTORY
ONLY)
SW4 SETUP
SWITCHES
BOARD SERIAL
NUMBER
EXAMPLE:
V12 HK42FZ022 3407
SOFTWARE
VERSION
NUMBER
DATE
CODE
PART
NUMBER
A07422
Fig. 37 -- Control Center
A07898
Fig. 38 -- Combustion-- Air and Vent Pipe Connections
UNIT MAY NOT OPERATE
Failure to follow this caution may result in incomplete
combustion, flame disturbance, or flame sense lockout.
When installing combustion air and vent system of short pipe
length, the smallest allowable pipe diameter must be used.
CAUTION
!
NOTE: A 2--in. (51 mm) diameter pipe must be used within
furnace casing. Make all pipe diameter transitions outside furnace
casing per Fig. 40.
2. Unless noted in Table 11, insert perforated disk assembly
(factory-- supplied in loose parts bag) in intake housing
where combustion air pipe will be connected. If half disk set
is required, install only shouldered disk half.
Attachment of Combustion Air Pipe
1. Determine location of combustion air intake pipe
connection to combustion air intake housing as shown in
Fig. 38 for application.
2. Reposition combustion air intake housing plug fitting in
appropriate unused intake housing connection.
3. Install combustion --air pipe grommet (factory --supplied in
loose parts bag) into selected furnace casing combustion--air
pipe hole.
355A

Related product manuals