EasyManua.ls Logo

Bryant 355MAV - Page 28

Bryant 355MAV
60 pages
Print Icon
To Next Page IconTo Next Page
To Next Page IconTo Next Page
To Previous Page IconTo Previous Page
To Previous Page IconTo Previous Page
Loading...
FRS LS
ALS
FSE
GV
C
M
P
HI
NOTE #3
3
PL1
PL7
12104 6
12
ORN
BRN
YEL
GRN
YEL
3
PL9
HSI
12
1.5 AMP
EAC1
EAC2
2
1
PL4
1
2
3
7
8
4
5
6
YEL
ORN
BRN
GRN
BLU
BRN
RED
10 11
B2
RED
9
5
PL3
5BLU
4YEL
3VIO
2ORN
1RED
RED
ORN
VIO
YEL
WHT
BLK
RED
ORN
VIO
YEL
9876 4321
PL10
1
PL11
5
IND.
NOTE
#7
PL11
PL12
12543
3
16
8
14
1
RED
ORN
VIO
YEL
GRN/YEL
YEL
BLU
MTR2
6
PL13
POS.
A/C AND CF
SELECT. CHART
SWITCH
POS.
A/C AND CF
A/C CF
A/C CF
DEFAULT DEFAULT
1-1/2
TON
2
TON
2-1/2
TON
1000
CFM
800
CFM
3
TON
1200
CFM
3-1/2
TON
1400
CFM
4
TON
1600
CFM
5
TON
2000
CFM
PCB
PL6
FU1
LEDS
(1-4)
SW
(1-8)
FUSE
24VAC-3A
1
234
CF A/C
123
123
12
3
45
6
7
8
FLT
LOW HEAT
BPH
EMER. HEAT
MZ
COMP. TEST
BLOWER
OFF-DELAY
PL5
32 1
654
BLOWER
OFF-DELAY
SELECTION CHART
90
SEC.
135
SEC.
180
SEC.
225
SEC.
78
OFF
NOTE
#6
78
OFF
78
OFF
7
8
OFF
SEC-2
SEC-1
DEHUM
HUM
G
R
Y/Y2
W/W1
C
W2
12 34
PL2
L2
L1
P2
P1
YEL
NO
C
LPS
TRAN
HPS
C
NO
ILK
BLK
WHT
FU2
FUSED DISCONNECT SWITCH
(WHEN REQ’D)
NOTE #2
MTR1
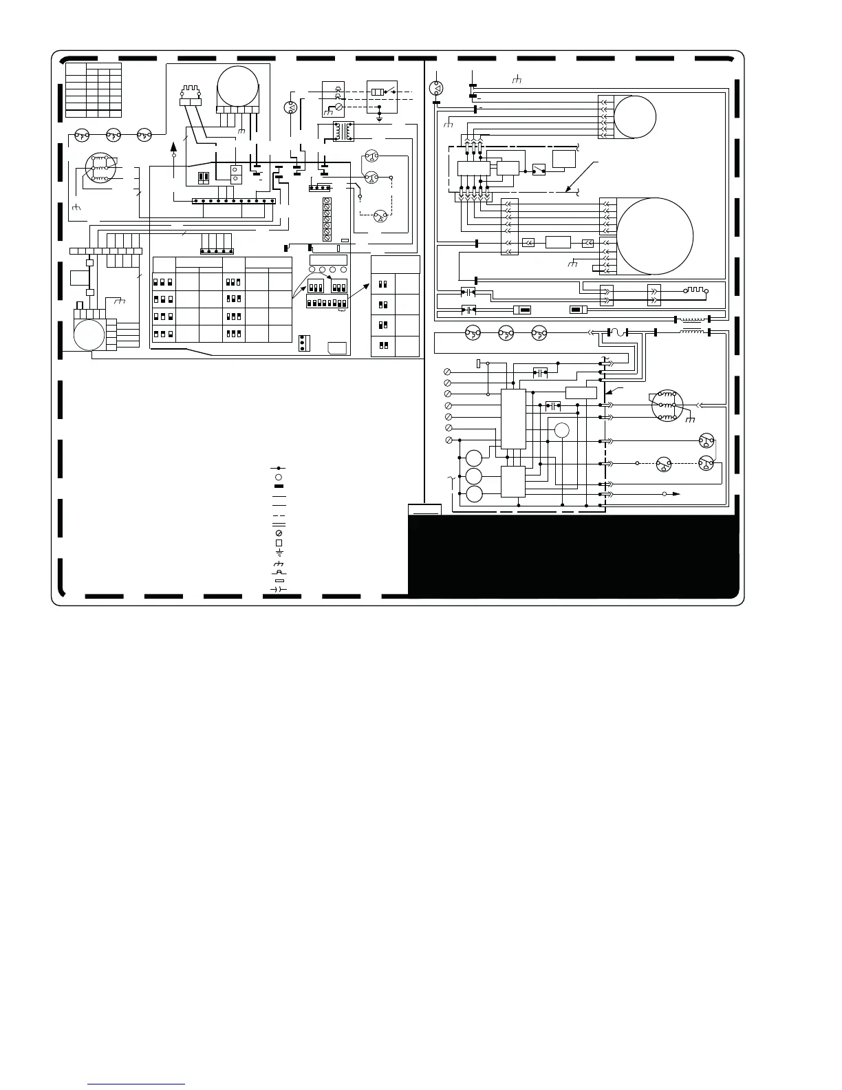
A/C AIR CONDITIONING (ADJUSTABLE TONNAGE)
ALS AUXILIARY LIMIT SWTICH OVERTEMP - MANUAL RESET SPST-(N.C)
CF CONTINUOUS FAN (ADJUSTABLE CFM)
CPU1 MAIN MICROPROCESSOR & CIRCUITRY
CPU2 IGNITION MICROPROCESSOR & CIRCUITRY
DE DEHUMIDIFY ENABLE - IF DE CONNECTION PROVIDED REMOVE
JUMPER TO ENABLE DEHUM INPUT
DEHUM DEHUMIDIFICATION CONNECTION (24VAC .02 AMPS)
EAC-1 ELECTRONIC AIR CLEANER CONNECTION (115 VAC 1.5 AMP MAX.)
EAC-2 ELECTRONIC AIR CLEANER CONNECTION (COMMON)
FRS FLAME ROLLOUT SWITCH - MANUAL RESET, SPST-(N.C.)
FSE FLAME PROVING SENSOR ELECTRODE
FU1 FUSE, 3 AMP, AUTOMOTIVE BLADE TYPE, FACTORY INSTALLED
FU2 FUSE OR CIRCUIT BREAKER CURRENT INTERRUPT DEVICE
(FIELD INSTALLED & SUPPLIED)
GND EQUIPMENT GROUND
GV GAS VALVE
GVR GAS VALVE RELAY, DPST-(N.O.)
HI GAS VALVE HIGH STAGE OPERATOR
HPS HIGH HEAT PRESSURE SWITCH, SPST-(N.O.)
HSI HOT SURFACE IGNITOR (115 VAC)
HSIR HOT SURFACE IGNITOR RELAY, SPST-(N.O.)
HUM 24VAC HUMIDIFIER CONNECTION (.5 AMP. MAX.)
HUMR HUMIDIFIER RELAY, SPST-(N.O.)
ILK BLOWER ACCESS PANEL INTERLOCK SWITCH, SPST-(N.O.)
IND INDUCTOR (NOTE #7)
JB JUNCTION BOX
LEDS LIGHT EMITTING DIOES FOR STATUS CODES
LGPS LOW GAS PRESSURE SWITCH, SPST (N.O.)
LPS LOW HEAT PRESSSURE SWITCH, SPST-(N.O.)
LS LIMIT SWITCH, AUTO RESET, (N.C.)
MTR1 MOTOR (ICM) INDUCER
MTR2 MOTOR (ICM) BLOWER
PCB PRINTED CIRCUIT BOARD
PL1 11-CIRCUIT CONNECTOR
PL2 4-CIRCUIT PRESSURE SWITCH CONNECTOR
PL3 5-CIRCUIT BLOWER MTR CONNECTOR
PL4 2-CIRCUIT HSI CONNECTOR
PL5 6-CIRCUIT MODEL PLUG
PL6 3-CIRCUIT COMM. CONNECTOR
PL7 12-CIRCUIT INDUCER MTR CONNECTOR
PL9 2-CIRCUIT HSI CONNECTOR
PL10 9-CIRCUIT BLOWER ADAPTER CONNECTOR
PL11 1-CIRCUIT INDUCTOR SPLICE CONNECTOR
PL12 5-CIRCUIT BLOWER POWER CONNECTOR
PL13 16-CIRCUIT BLOWER CTRL. CONNECTOR
SW1 MANUAL SWITCH, FAULT DISPLAY, SPST-(N.O.)
SW2 MANUAL SWITCH, LOW HEAT, SPST-(N.O.)
SW3 MANUAL SWITCH, BYPASS HUMIDIFIER, SPST-(N.O.)
SW4 MANUAL SWITCH, EMERGENCY HEAT, SPST-(N.O.)
SW5 MANUAL SWITCH, MULTIPLE ZONE, SPST-(N.O.)
SW6 COMPONENT TEST, SPST-(N.O.)
SW7-8 MANUAL SWITCH, BLOWER OFF-DELAY, SPST-(N.O.)
TRAN TRANSFORMER - 115VAC/24VAC
JUNCTION
UNMARKED TERMINAL
PCB TERMINAL (FACTORY CONNECTED)
FACTORY WIRING (115 VAC)
FACTORY WIRING (24 VAC)
FIELD WIRING (115 VAC)
CONDUCTOR ON PCB
FIELD WIRING SCREW TERMINAL
TERMINAL BLOCK - MARKED TERMINAL
FIELD EARTH GROUND
EQUIPMENT GROUND
FIELD SPLICE
PCB TERMINAL (FIELD CONNECTION)
PLUG RECEPTACLE
NOTE #2
L1
L2
L2
L1
EQUIPMENT GROUND
PL1
654
PL7
MTR1
12
6
4
1
2
10
D. C.
POWER
SUPPLY
PCB
NOTE #5
SW - 4
EMER. HEAT
SCHEMATIC DIAGRAM
(NATURAL GAS & PROPANE)
PL13
CPU1
CPU2
PL3
12345
B1 7
6
1
2
3
4
5
PL11
PL10
IND
NOTE #7
B2
PL11
PL12
6
14
8
16
3
5
4
3
2
1
MTR2
HSIR
EAC
FRS
LS
ALS
PL1-9
EAC-1 EAC-2
PL4
PL9
HSI
NOTE #6
FU1
SEC-1
24VAC
SEC-2
TRAN
P1
115VAC
P2
PL1-11
PCB
NOTE #5
HUMR
D.C. POWER
SUPPLY
DEHUM
HUM
R
G
Y/Y2
W2
W/W1
C
PL1-1
PL2-1
PL2-2
PL2-4
PL1-10
PL1-2
EAC
GVR
GV
P
C
M
HI
NOTE #3
HPS
NO
C
PL1-7
FSE
LPS
CPU2
CPU1
NOTES:
HUMR
HSIR
GVR
OM
T 2
T 1
T 2
T 1
213
OFF
213
OFF
213
OFF
213
OFF
213
OFF
213
OFF
213
OFF
213
OFF
1
C
NO
2
1
2
1
TO 115 VAC FIELD DISCONNECT
B1
ILK
MODEL
JUMPERS
1-4 2-5 3-6
X
X
XX
X
042040
042060
042080
060100
SIZE
060080
060120
XX
XX
ORN
BRN
LGPS
(WHEN
USED)
ORN
NOTE #11
NOTE #11
LGPS
NOTE #11
(WHEN USED)
NOTE #11
BLK
WHT
RED
BLU
DE
BLK
WHT
SELECT. CHART
CFM
600
WHT
OM
DE
(WHEN USED)
BLK
WHT
WHT
BLK
WHT
BLK
BLU
RED
WHT
BLK
RED
BLK
WHT
YEL
ORN
BRN
SWITCH
WHT
BLK
RED
RED
GRN / YEL
GRN/YEL
BRN
BLU
LEGEND
1. If any of the original equipment wire is replaced use wire rated for 105°C.
2. Use only copper wire between the disconnect switch and the furnace junction box (JB).
3. This wire must be connected to furnace sheet metal for control to prove flame.
4. Symbols are electrical representation only.
5. Solid lines, inside circuit board PCB are printed circuit board traces and are not depicted as shown in the legend.
6. Replace only with a 3 AMP fuse.
7. Inductor used on all 060 or -20 airflow units.
8. Blower-on delay, gas heating 60 seconds low heat, 35 seconds high heat, cooling or heat pump 2 seconds..
9. Blower-off delay, gas heating 90, 135, 180 or 225 seconds, cooling or heat pump 90 seconds.
10. Ignition-lockout will occur after four consecutive unsuccessful trials-for-ignition. Control will auto-reset after three hours.
11. Factory connected when LGPS not used.
322296-101 REV. E
YEL
GND
5
BLU
BLU
A00350
Fig. 30-Unit Wiring Diagram
—28—

Table of Contents

Other manuals for Bryant 355MAV

Related product manuals