EasyManua.ls Logo

Bryant 359AAV - Page 13

Bryant 359AAV
22 pages
Print Icon
To Next Page IconTo Next Page
To Next Page IconTo Next Page
To Previous Page IconTo Previous Page
To Previous Page IconTo Previous Page
Loading...
13
OFF
ON
AIRFLOW
3
/
16
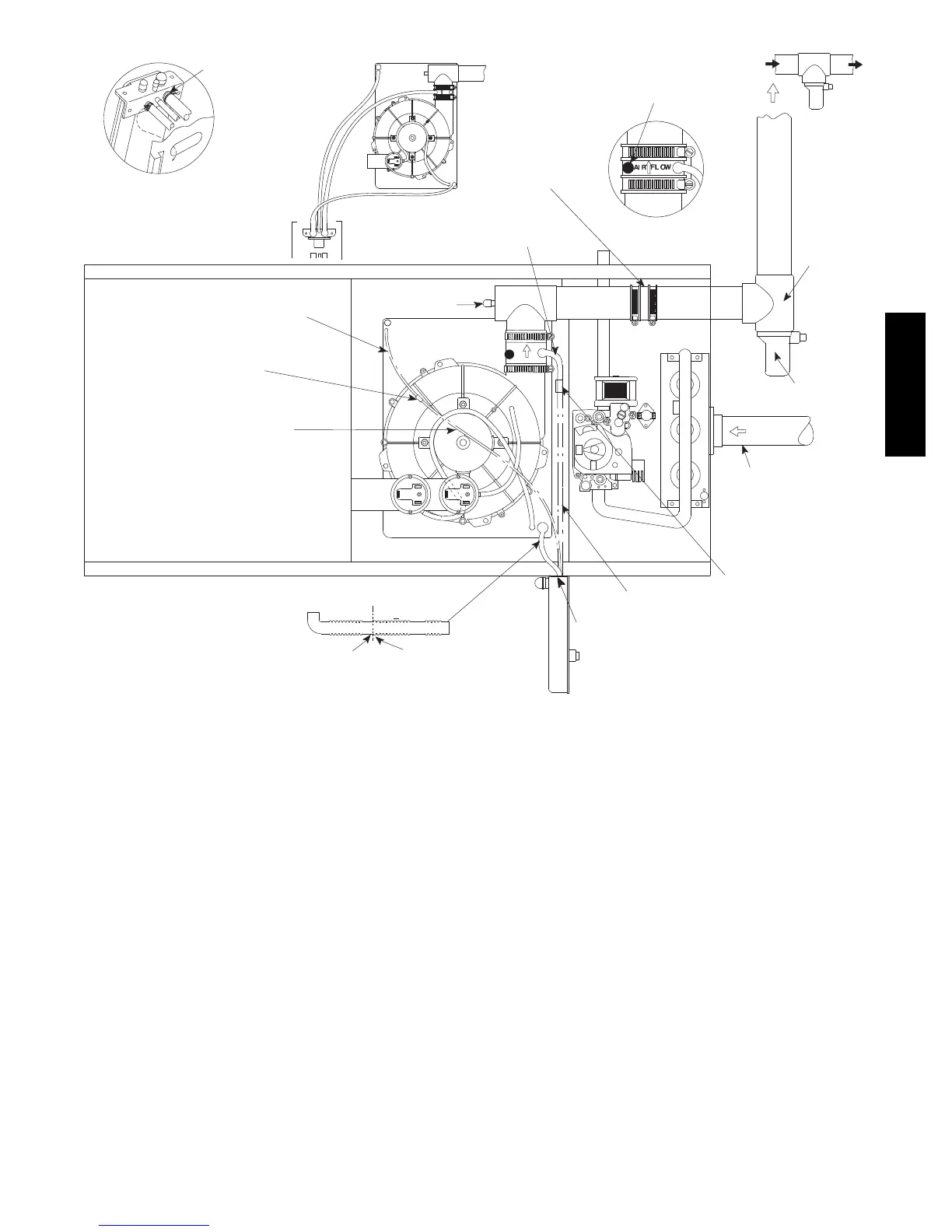
(4.8mm) ID Rub-
ber Tube
Trap Connection
“Clamp ears”
Pointed OUT
Preassemble &
insert into furnace
2 5 -- 2 4 -- 7 0 b
Single Pressure Switch Detail
Dual Pressure Switch
Tee Trap White PVC
(loose parts bag)
WARNING
AddCapandClamp
Drain Tube Black Rubber
1
/
2
(12.7mm) ID & Clamps
EXHAUST
Alternate Orientation
Field
Supplied Tee
Cut Here
Drain Tube Corrugated
5
/
8
(15.9mm) ID &
Clamps Cut at straight section
Leave room for clamp
Flexible Tubing Connector
3
/
16
(4.8mm) OD (Loose
Parts Bag)
Plastic Cap
Yellow or black
Vent Drain
&Clamps
INLET
On Some Models
ONLY
Coupling & Clamps
(Optional)
Relief Tube Black Rub-
ber
3
/
16
(4.8mm) ID
Drain Tube Black
Rubber
1
/
2
(12.7mm)
ID & Clamps
Relief Tube Extension
Black Rubber
3
/
16
(4.8mm) ID
Cut to Fit (Loose Parts Bag)
Barbed Coupling
1
/
2
(12.7mm)
OD (Loose Parts Bag)
Representative drawing only, some models may vary in appearance.
Remove KO before
mounting Trap
A07711
Fig. 13 -- Horizontal Right Through Top
359AAV

Related product manuals