EasyManua.ls Logo

Bryant 359AAV - Page 14

Bryant 359AAV
22 pages
Print Icon
To Next Page IconTo Next Page
To Next Page IconTo Next Page
To Previous Page IconTo Previous Page
To Previous Page IconTo Previous Page
Loading...
14
OFF
ON
AIR
FLOW
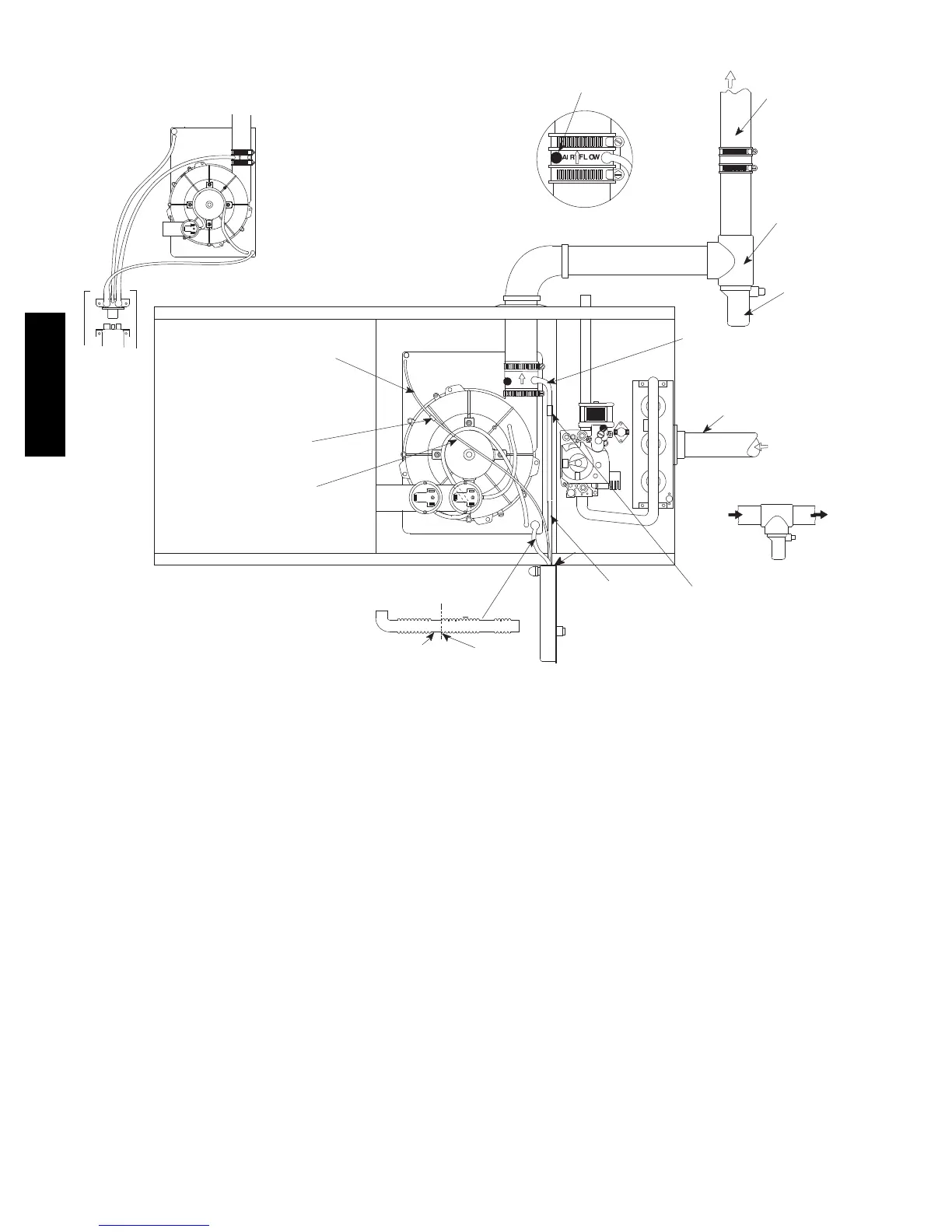
Coupling & Clamps
(Optional)
2 5 -- 2 4 -- 7 0 c
Single Pressure Switch Detail
Dual Pressure Switch
Tee Trap
White PVC
(loose parts bag)
Flexible Tubing Connector
3
/
16
(4.8mm) OD (Loose Parts Bag)
Barbed Coupling
1
/
2
(12.7mm)
OD (Loose Parts Bag)
EXHAUST
Alternate Orientation
Field
Supplied Tee
Cut Here
Drain Tube Black,
5
/
8
(15.9mm) ID & Clamps
Corrugated Cut at straight section
Leave room for clamp
Relief Tube Extension
Black Rubber
3
/
16
(4.8mm) ID
Cut to Fit (Loose Parts Bag)
Plastic Cap
Yellow or black
Vent Drain
&Clamps
Level or Sloped
towards Tee
INLET
On Some Models
ONLY
Elbow Tube Black Rubber
1
/
2
(12.7mm) ID & Clamps
(Loose Parts Bag)
Relief Tube
Black Rubber
3
/
16
(4.8mm) ID
Drain Tube
Black Rubber
1
/
2
(12.7mm) ID
& Clamps
Representative drawing only, some models may vary in appearance.
Remove KO before
mounting Trap
A07712
Fig. 14 -- Horizontal Right Side Vent
359AAV

Related product manuals