EasyManua.ls Logo

Bryant 548C Series - Condensate Disposal; Electrical Connections

Bryant 548C Series
32 pages
Print Icon
To Next Page IconTo Next Page
To Next Page IconTo Next Page
To Previous Page IconTo Previous Page
To Previous Page IconTo Previous Page
Loading...
IV. FIELD CONNECTIONS
A. Condensate Disposal
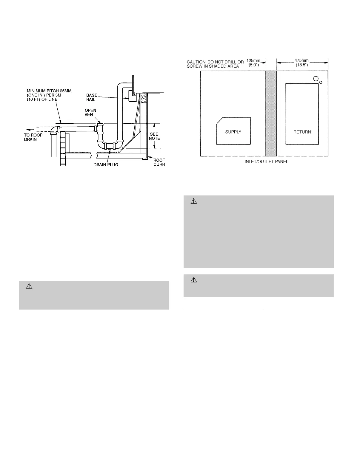
Units must have an external trap added. See Fig. 7. A
3
4
-in.
FPT connection is located on the side of the unit. Use a trap
at least 100 mm (4-in.) deep, and protect against freeze-up.
If drain line is run to a drain, pitch line away from unit at
25 mm (one in.) per 3 m (10 ft) of run. Do not use a pipe size
smaller than the unit connection.
B. Field Duct Connections
NOTE: The design and installation of the duct system must
be in accordance with local codes and ordinances.
Adhere to the following criteria when selecting, sizing, and
installing the duct system:
1. Remove appropriate panels from unit to obtain either
horizontal or vertical discharge. If units are installed in
horizontal discharge applications, remove vertical dis-
charge duct covers, save screws, and install covers on
vertical duct openings.
2. Select and size ductwork, supply-air registers, and return-
air grilles according to local codes and practices.
CAUTION:
When drilling the duct system fastening
holes into the side of the unit for duct flanges, use ex-
treme care not to puncture the coil or coil tubes. See
Fig. 8.
3. Use flexible transition between rigid ductwork and unit
to prevent transmission of vibration. The transition may
be screwed or bolted to duct flanges. Use suitable gas-
kets to ensure weather- and airtight seal.
4. When horizontal return is used, install external, field-
supplied air filters in return-air ductwork where they
are easily accessible for service. Recommended filter sizes
are shown in Tables 1a and 1b.
5. Size all ductwork for maximum required airflow (either
heating or cooling) for unit being installed. Avoid abrupt
duct size increase or decreases.
6. Adequately insulate and weatherproof all ductwork lo-
cated outdoors. Insulate ducts passing through uncon-
ditioned space, and use vapor barrier in accordance with
local minimum installation standards for heating and
air conditioning systems. Secure all ducts to building
structure.
A minimum clearance to combustibles is not required
around ductwork on vertical discharge units. On hori-
zontal discharge units, a minimum clearance of 25 mm
(1 in.) is required for the first 300 mm (12 in.) of
ductwork.
7. Flash, weatherproof, and vibration isolate all openings
in building structure in accordance with local codes and
good building practices.
C. Electrical Connections
WARNING:
The unit cabinet must have an uninter-
rupted, unbroken, electrical ground to minimize the pos-
sibility of personal injury if an electrical fault should
occur. This ground may consist of electrical wire con-
nected to the unit ground lug in the control compart-
ment, or conduit approved for electrical ground when
installed in accordance with U.S.A. National Electrical
Code (Ref:ANSI/NFPA70-1987) or equivalent local elec-
trical codes. Do not use gas piping as an electrical ground.
Failure to adhere to this warning could result in per-
sonal injury.
CAUTION:
Failure to obey the following pre-
cautions could result in damage to the unit being
installed:
Field Power Supply (Fig.9-11)
1. Make all electrical connections in accordance with local
electrical codes governing such wiring. Refer to unit wir-
ing diagram.
2. A unit disconnect switch is required within sight from
the unit. The disconnect switch may be mounted on
the unit corner post (see Fig. 2). When mounting dis-
connect switch, be sure the unit rating plate is not
obstructed.
3. Use only copper or copper clad conductor for connec-
tions between field-supplied electrical disconnect switch
and unit. Use of aluminum wire is not recommended.
Maximum wire size is number 2 AWG (American Wire
Gage, U.S.A.) on units without heat, and 350 kcmils on
units with electric heater and single point box. See
Table 2 for wire conversions.
4. Voltage to compressor terminals during operation must
be within voltage range indicated on unit nameplate (also
see Table 3). On 3-phase units, voltages between phases
must be balanced within 2% and the current within 10%.
Use the formula shown in Table 3, Note 3 to determine
NOTE: Trap should be deep enough to offset maximum unit static dif-
ference. A 100-mm (4-in.) trap is recommended.
Fig. 7 External Trap Condensate Drain
Fig. 8 Location of Coil Area
Not to be Drilled
—8—

Related product manuals