EasyManua.ls Logo

Bryant 581J - Page 5

Bryant 581J
40 pages
Print Icon
To Next Page IconTo Next Page
To Next Page IconTo Next Page
To Previous Page IconTo Previous Page
To Previous Page IconTo Previous Page
Loading...
5
Vertical Connections / Economizer
Horizontal Connections / Economizer
C11112
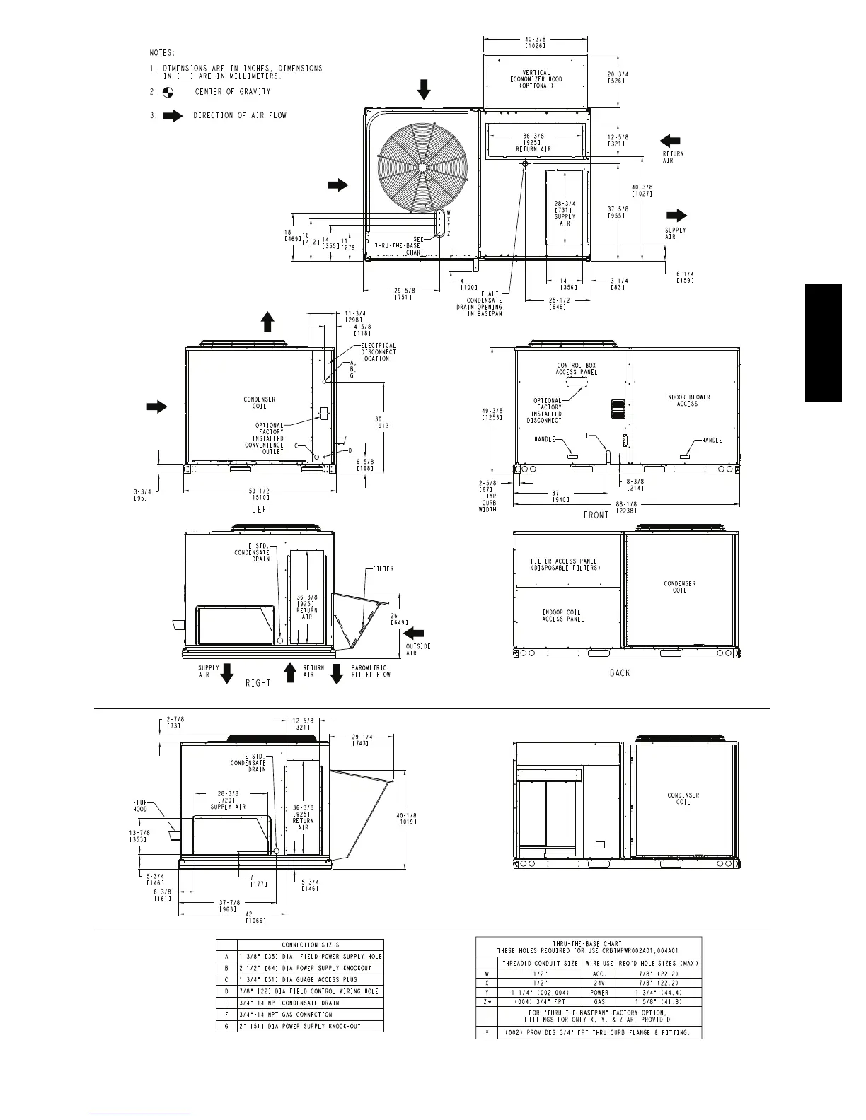
Fig. 2 -- Unit Dimensional Drawing Size 12
581J

Table of Contents

Related product manuals