EasyManua.ls Logo

Bryant 987MB - ELECTRICAL CONNECTIONS; 115-V Wiring

Bryant 987MB
76 pages
Print Icon
To Next Page IconTo Next Page
To Next Page IconTo Next Page
To Previous Page IconTo Previous Page
To Previous Page IconTo Previous Page
Loading...
987MB: Installation, Start-up, Operating and Service and Maintenance Instructions
Manufacturer reserves the right to change, at any time, specifications and designs without notice and without obligations.
26
A11035A
Fig. 31 – Typical Gas Pipe Arrangement
A 1/8-in. (3 mm) NPT plugged tapping, accessible for test gauge
connection, MUST be installed immediately upstream of gas supply
connection to furnace and downstream of manual equipment shutoff
valve.
Piping should be pressure and leak tested in accordance with the current
addition of the NFGC in the United States, local, and national plumbing
and gas codes before the furnace has been connected. Refer to current
edition of NSCNGPIC in Canada. After all connections have been made,
purge lines and check for leakage at furnace prior to operating furnace.
NOTE: The furnace gas control valve inlet pressure tap connection is
suitable to use as test gauge connection providing test pressure DOES
NOT exceed maximum 0.5 psig (14-In. W.C.) stated on gas control
valve, see Fig. 64.
If pressure exceeds 0.5 psig (14-In. W.C.), gas supply pipe must be
disconnected from furnace and capped before and during supply pipe
pressure test. If test pressure is equal to or less than 0.5 psig (14-In.
W.C.), turn off electric shutoff switch located on furnace gas control
valve and accessible manual equipment shutoff valve before and during
supply pipe pressure test. After all connections have been made, purge
lines and check for leakage at furnace prior to operating furnace.
Gas Pipe Grommet
For direct vent (2-pipe) applications, the knockout for the gas pipe must
be sealed to prevent air leakage. Remove the knockout, install the
grommet in the knockout, then insert the gas pipe. The grommet is
included in the loose parts bag, see Fig. 29.
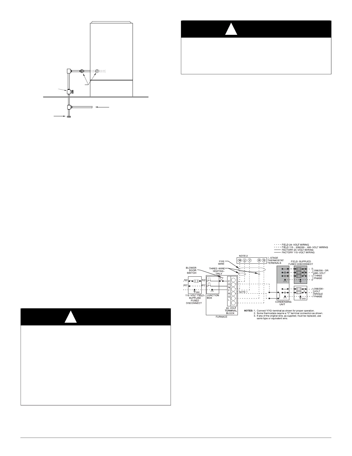
ELECTRICAL CONNECTIONS
See Fig. 32 for field wiring diagram showing typical field 115-v wiring.
Check all factory and field electrical connections for tightness.
Field-supplied wiring shall conform with the limitations of 63_F (33_C)
rise.
115-V Wiring
Furnace must have a 115-v power supply properly connected and
grounded.
NOTE: Proper polarity must be maintained for 115-v wiring. If polarity
is incorrect, control LED status indicator light will flash rapidly and
furnace will NOT operate.
Use a separate, fused branch electrical circuit with a properly sized fuse
or circuit breaker for this furnace. See Table 9 for wire size and fuse
specifications. A readily accessible means of electrical disconnect must
be located within sight of the furnace.
Verify that the voltage, frequency, and phase correspond to that specified
on unit rating plate. Also, check to be sure that service provided by
utility is sufficient to handle load imposed by this equipment. Refer to
rating plate or Table 9 for equipment electrical specifications.
U.S.A. Installations: Make all electrical connections in accordance with
the current edition of the National Electrical Code (NEC) NFPA 70 and
any local codes or ordinances that might apply.
Canada Installations: Make all electrical connections in accordance
with the current edition of the Canadian Electrical Code CSA C22.1 and
any local codes or ordinances that might apply.
A11401
Fig. 32 – Typical Field Wiring Diagram
WARNING
!
ELECTRICAL SHOCK, FIRE OR EXPLOSION HAZARD
Failure to follow safety warnings could result in dangerous operation,
serious injury, death or property damage.
Improper servicing could result in dangerous operation, serious injury,
death or property damage.
- Before servicing, disconnect all electrical power to furnace.
- When servicing controls, label all wires prior to disconnection.
Reconnect wires correctly.
- Verify proper operation after servicing.
- Always reinstall access doors after completing service and
maintenance.
MANUAL
SHUT OFF
VALVE
(REQUIRED)
NOTE: Union may be inside the
vestibule where permitted by
local codes.
UNION
GAS
SUPPLY
SEDIMENT
TRAP
WARNING
!
ELECTRICAL SHOCK HAZARD
Failure to follow this warning could result in personal injury or death.
Blower door switch opens 115-v power to control. No component
operation can occur. Do not bypass or close switch with blower door
removed.
W/W1
W2
COM
Y/Y2
R
G

Related product manuals