EasyManua.ls Logo

Bryant DURAPAC 558F - Page 19

Bryant DURAPAC 558F
40 pages
Print Icon
To Next Page IconTo Next Page
To Next Page IconTo Next Page
To Previous Page IconTo Previous Page
To Previous Page IconTo Previous Page
Loading...
19
SENSOR
LOCATION
HAIRPIN END
SENSOR
LOCATION
HAIRPIN END
SENSOR
LOCATION
HAIRPIN END
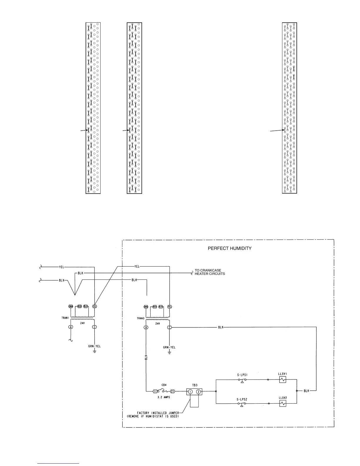
NOTE:
All sensors are located on the eighth hairpin up from the
bottom.
Fig. 27 — Motormaster® I Sensor Locations
NOTE:
All sensors are located on the eighth hairpin up from the
bottom.
Fig. 28 — Motormaster III Sensor Locations
558F180 558F210
558F240
Fig. 29 — Typical Perfect Humidify™ Dehumidification Package
Humidistat Wiring Schematic (460V Unit Shown)
LEGEND
CB
Circuit Breaker
LLSV
Liquid Line Solenoid Valve
LPS
Low Pressure Switch
TB
Terminal Block
TRAN
Transformer

Related product manuals