EasyManua.ls Logo

Bryant DURAPAC 558F - Install Humidity Control Accessory

Bryant DURAPAC 558F
40 pages
Print Icon
To Next Page IconTo Next Page
To Next Page IconTo Next Page
To Previous Page IconTo Previous Page
To Previous Page IconTo Previous Page
Loading...
18
Transformer (460-V Units Only) — On 460-volt units a trans-
former is required. The transformer is provided with the
accessory and must be field-installed.
Motormaster® I Control — Recommended mounting location
is on the inside of the panel to the left of the control box. The
control should be mounted on the inside of the panel, verti-
cally, with leads protruding from bottom of extrusion.
B. Motormaster III Control (–20 F) Installation (558F240
Only)
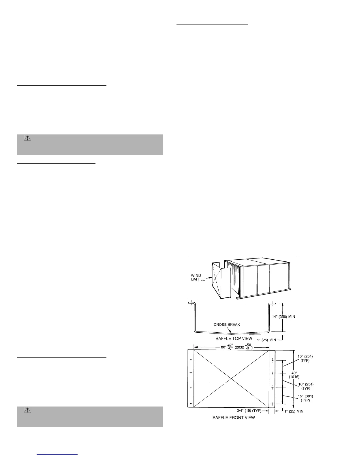
Install Field-Fabricated Wind Baffles
Wind baffles must be field-fabricated for all units to ensure
proper cooling cycle operation at low ambient temperatures.
See Fig. 26 for baffle details. Use 20-gage, galvanized sheet
metal, or similar corrosion-resistant metal for baffles. Use
field-supplied screws to attach baffles to unit. Screws should
be
1
/
4
-in. diameter and
5
/
8
-in. long. Drill required screw holes
for mounting baffles.
Install Motormaster III Controls
Only one Motormaster III control is required per unit.
The Motormaster III control must be used in conjunction
with the accessory Fan Motor Sequencing Kit and the acces-
sory Winter Start Kit (purchased separately). The device
controls outdoor fan no. 1 (motor change out required) while
outdoor fan is sequenced off by fan motor sequencing kit.
Sensor — Install the sensor for thermistor input control in the
location shown in Fig. 28. Connect sensor leads to the purple
and grey control signal leads on the Motormaster III control.
Winter Start Time Delay Relay Kit — Install the kit per the
instructions supplied with the accessory (2 required, pur-
chased separately).
Accessory Fan Motor Sequencing Kit — Install the Accessory
Fan Motor Sequencing Kit (purchased separately) per
instructions supplied with the accessory.
Signal Selection Switch — Remove the cover of the Motor-
master III control. Set the switch to accept the thermistor
sensor input signal. Set the frequency to match the unit
power supply (60 Hz).
Motormaster III Control — Recommended mounting location
is beneath the control box, mounted to the partition that sep-
arates the control box section from the indoor section.
NOTE: If unit power is supplied through the roof curb and
basepan of the unit, mount the Motormaster III control on
the corner post adjacent to the conduit running from the
basepan to the bottom of the control box.
C. Low Ambient Control (10 F) Installation (558F180, 210,
300)
Install Field-Fabricated Wind Baffles
Wind baffles must be field-fabricated for all units to ensure
proper cooling cycle operation at low ambient temperatures.
See Fig. 29 for baffle details. Use 20-gage, galvanized sheet
metal, or similar corrosion-resistant metal for baffles. Use
field-supplied screws to attach baffles to unit. Screws should
be
1
/
4
-in. diameter and
5
/
8
-in. long. Drill required screw holes
for mounting baffles.
Install Low Ambient Controls
Install the Low Ambient Control per instructions supplied
with the accessory.
Fan Motor Sequencing Kit — Only one accessory Fan Motor
Sequencing Kit is required per unit (purchased separately).
Install the Fan Motor Sequencing Kit per instructions sup-
plied with the accessory.
Winter Start Time Delay Relay Kit — Two accessory Winter
Start Time Delay Relay kits are required per unit (pur-
chased separately). Install the kits per the instructions sup-
plied with the accessory.
X. STEP 10 — INSTALL HUMIDITY CONTROL ACCESSORY
FOR OPTIONAL PERFECT HUMIDITY™ DEHUMIDIFICA-
TION PACKAGE
Perfect Humidity dehumidification package operation can be
controlled by field installation of a Bryant-approved
humidistat or light commercial thermidistat. To install the
control, perform the following procedure:
1. Locate the control on a solid interior wall in the con-
ditioned space. Location should be a well ventilated
area to sense average humidity.
2. For humidistat, route thermostat cable or equivalent
single leads of colored wire from humidistat termi-
nals through conduit in unit to the low voltage con-
nection on the 2-pole terminal strip (TB3) as shown
in Fig. 29 and 30. Remove jumper.
3. For light commercial thermidistat, install field-
supplied relay (R1, part number HN61KK324) in con-
trol box and wire the contact terminals of relay (R1)
to the low-voltage terminals 1 and 2 on the 2-pole ter-
minal strip (TB3). See Fig. 31. Route thermostat
cable from thermidistat through conduit in unit into
control box. Connect the lead from the DEHUM ter-
minal of the thermidistat to one of the coil terminals
of relay R1. Wire the other coil terminal to common
(C) of the rooftop unit terminal board (TB2).
CAUTION: To avoid damage to the refrigerant
coils and electrical components, use recommended
screw sizes only. Use care when drilling holes.
CAUTION: To avoid damage to the refrigerant
coils and electrical components, use recommended
screw sizes only. Use care when drilling holes.
NOTE:
Dimensions in ( ) are in mm.
Fig. 26 — Wind Baffle Details

Related product manuals