EasyManua.ls Logo

Bryant DURAPAC 580F - Rigging and Unit Placement; Unit Positioning Guidelines

Bryant DURAPAC 580F
52 pages
Print Icon
To Next Page IconTo Next Page
To Next Page IconTo Next Page
To Previous Page IconTo Previous Page
To Previous Page IconTo Previous Page
Loading...
4
IMPORTANT: The gasketing of the unit to the roof curb or
adapter roof curb is critical for a watertight seal. Install
gasket with the roof curb or adapter as shown in Fig. 1A and
1B. Improperly applied gasket can also result in air leaks
and poor unit performance.
B. Alternate Unit Support
When the curb or adapter cannot be used, install unit on a
noncombustible surface. Support unit with sleepers, using
unit curb support area. If sleepers cannot be used, support
long sides of unit with a minimum of 3 equally spaced 4-in. x
4-in. pads on each side.
II. STEP 2 — RIG AND PLACE UNIT
Inspect unit for transportation damage. File any claim with
transportation agency.
Do not drop unit; keep upright. Use spreader bars over unit
to prevent sling or cable damage. Rollers may be used to
move unit across a roof. Level by using unit frame as a refer-
ence; leveling tolerance is ±
1
/
16
in. per linear ft in any direc-
tion. See Fig. 3 for additional information. Unit operating
weight is shown in Table 1.
Four lifting holes are provided in ends of unit base rails as
shown in Fig. 3. Refer to rigging instructions on unit.
NOTE: On 580F300 units, the lower forklift braces must be
removed prior to setting unit on roof curb.
A. Positioning
Maintain clearance, per Fig. 4-6, around and above unit to
provide minimum distance from combustible materials,
proper airflow, and service access.
Do not install unit in an indoor location. Do not locate air
inlets near exhaust vents or other sources of contaminated air.
For proper unit operation, adequate combustion and ventila-
tion air must be provided in accordance with Section 5.3 (Air
for Combustion and Ventilation) of the National Fuel Gas
Code, ANSI Z223.1 (American National Standards Institute).
Although unit is weatherproof, guard against water from
higher level runoff and overhangs.
Locate mechanical draft system flue assembly at least 4 ft
from any opening through which combustion products could
enter the building, and at least 4 ft from any adjacent build-
ing. When unit is located adjacent to public walkways, flue
assembly must be at least 7 ft above grade.
B. Roof Mount
Check building codes for weight distribution requirements.
Unit operating weight is shown in Table 1.
Instructions continued on page 11.
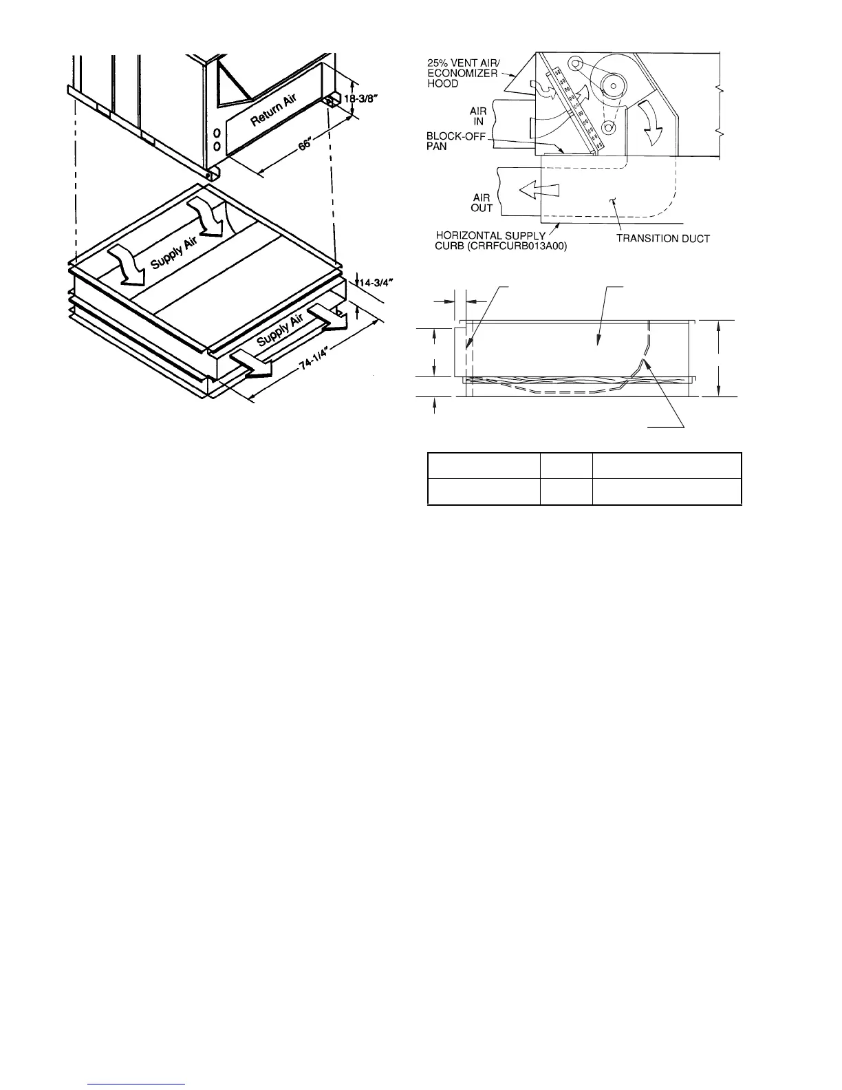
NOTE: CRRFCURB013A00 is a fully factory preassembled horizontal
adapter and includes an insulated transition duct. The pressure drop
through the adapter curb is negligible.
For horizontal return applications: The power exhaust and barometric
relief dampers must be installed in the return air duct.
23"
14 3/4"
6"
3 1/2"
FULLY INSULATED
SUPPLY PLENUM
1" INSULATION
1 1/2 # DENSITY,
STICK PINNED & GLUED
2" X 1/4
SUPPORT TYP.
STITCH WELDED
12" WIDE STANDING
SEAM PANELS
ACCESSORY
PACKAGE NO.
CURB
HEIGHT
DESCRIPTION
CRRFCURB013A00
1-11
(584)
Pre-Assembled, Roof Curb,
Horizontal Adapter
Fig. 2 — Horizontal Supply/Return Adapter Installation (580F180-240)

Related product manuals