EasyManua.ls Logo

Bryant EVOLUTION 986TA - Dimensional Drawing and Specifications; Furnace Dimensions and Shipping Weight

Bryant EVOLUTION 986TA
14 pages
Print Icon
To Next Page IconTo Next Page
To Next Page IconTo Next Page
To Previous Page IconTo Previous Page
To Previous Page IconTo Previous Page
Loading...
13
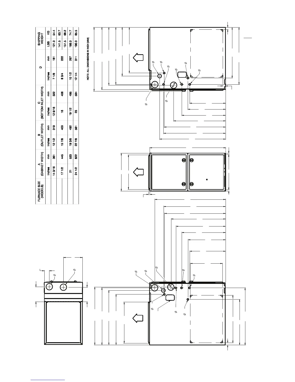
DIMENSIONAL DRAWING
6 15/16
[176.1]
3
[76.2]
3
[76.2]
6 11/16
[170.1]
23 5/16
[592.9]
25 1/8
[638.7]
26 3/8
[670.0]
26 11/16
[678.1]
21
[534.0]
26 5/16
[668.8]
17 5/16
[439.2]
16 9/16
[420.9]
20 1/4
[513.9]
25 3/16
[639.1]
28 3/16
[715.9]
28 5/8
[726.4]
32 5/8
[829.5]
28 3/4
[730.5]
26 3/8
[370.0]
26 11/16
[678.1]
22 7/16
[670.0]
21 1/16
[535.8]
26 5/16
[668.8]
3
[76.2]
AIR INTAKE
1 3/4
[44.5]
GAS CONN
7/8
[22.2]
7/8
[22.2] POWER CONN
7/8
[22.2]
7/8
[22.2]
3
[76.2]
AIR INTAKE
1 3/4
[44.5]
GAS CONN
7/8
[22.2]
7/8
[22.2]
THERMOSTAT ENTRY
3
[76.2 ]
7/8
[22.2]
7/8
[22.2]
22 15/16
[581.9]
16 9/16
[420.9]
17 7/16
[442.3]
20 1/4
[513.9]
24
[609.7]
28 3/8
[720.4]
28 5/8
[726.9]
30 7/16
[773.7]
23 3/8
[592.0]
3
[76.2]
VENT
1
[25.4]
1
[25.4]
D
2 3/10
[58.4]
C
BOTTOM RETURN
WIDTH
11/16
[17.5]
11/16
[17.5]
B
OUTLET WIDTH
A
22
[558.3]
14 13/16
[376.3]
35
[889.0]
5/8
[15.8]
1 5/16
[33.3]
29 1/2
[749.3]
19 1/8
[485.8]
VENT
AIR INTAKE
AIR FLOW
AIR FLOW
SIDE INLET
SIDE INLET
CONDENSATE DRAIN TRAP
LOCATION
THERMOSTAT ENTRY
[22.2]
7/8
PART NUMBER
SD5024-4
NEXT SHEET
NONE
7/8
[22.2] POWER CONN
AIR FLOW
NOTE: Doors may vary by model.
a. For 800 CFM--- 16--- in. (406 mm) round or 14 1/2 x 12---in. (368 x 305 mm) rectangle.
b. For 1200 CFM--- 20--- in. (508 mm) round or 14 1/2 x 19 1/2---in. (368 x 495 mm) rectangle.
c. For 1600 CFM---22 --- in. (559 mm) round or 14 1/2 x 22 1/16 --- in. (368 x 560mm) rectangle.
d. For airflow requirements above 1800 CFM, see Air Delivery table in these installation instructions for specific use of single side inlets. The use of both side inlets, a combination
of1sideandthebottom,orthebottomonlyreturnairopeningsmayberequiredforairflowrequirementsabove1800CFMat0.5in.W.C.E.S.P.
986TA
030040
042060
048080
048100
066120
A11525

Related product manuals