EasyManua.ls Logo

BT REFLEX RR B - 20.1.1 Adjustment of the steering angle sensor

BT REFLEX RR B
514 pages
Print Icon
To Next Page IconTo Next Page
To Next Page IconTo Next Page
To Previous Page IconTo Previous Page
To Previous Page IconTo Previous Page
Loading...
T-code Valid from serial number
403-414, 669-671, 716-718 713962-
Date Order number
2005-06-01 218920-040
20- 2 Service Manual REFLEX RR B/E, RR B/E CC © BT Europe AB
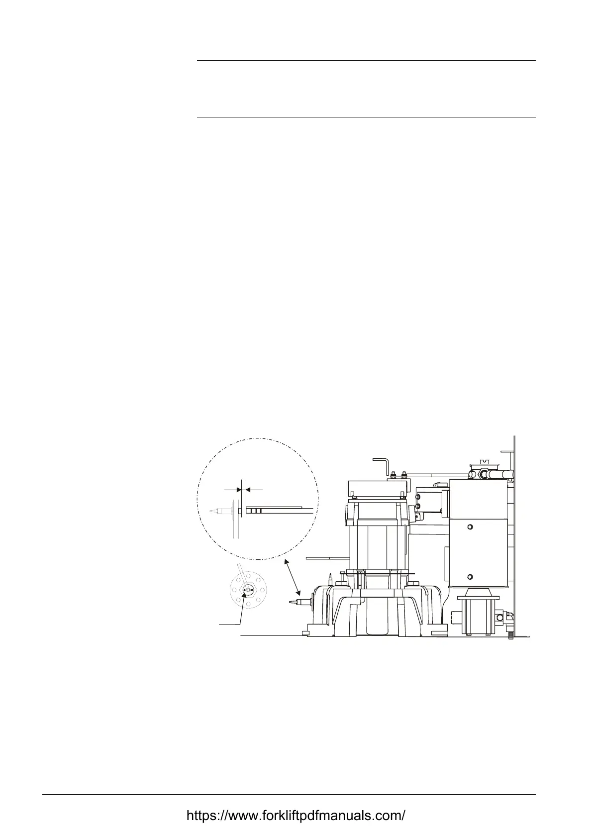
Steering angle sensor – 4350
Procedure
20.1.1 Adjustment of the steering angle
sensor
Roughly adjust the sensor to a detection range of ~1.1 mm.
Measure the supply voltage to the sensor, i.e. connector 810 on the
A5 electronic card.
Screw the sensor onto the large plate until it touches the right part of
the cog.
Then unscrew one full rotation.
Make sure the sensor is mounted with the LEDs set horizontal and
the red LED facing the fork direction.
Fine-adjust by turning the outer, large plate.
Measure the voltage on both sensor outputs while the steering
wheel is turning and the gear rotating.
To achieve a correct on/off switching pulse, the voltage on the sen-
sor outputs, or connectors 210 and 211 on the A5 electronic card,
should be half that of the supply voltage.
Finally tighten the large nut and the sensor mounting screws.
1,1 mm
1
https://www.forkliftpdfmanuals.com/

Table of Contents

Related product manuals