EasyManua.ls Logo

Bunn Dual TF DBC

Bunn Dual TF DBC
2 pages
To Previous Page IconTo Previous Page
To Previous Page IconTo Previous Page
Loading...
BUNN
®
practices continuous product research and improvement. We reserve the right to change specifications and product design without notice. Such
revisions do not entitle the buyer to corresponding changes, improvements, additions or replacements for previously purchased equipment.
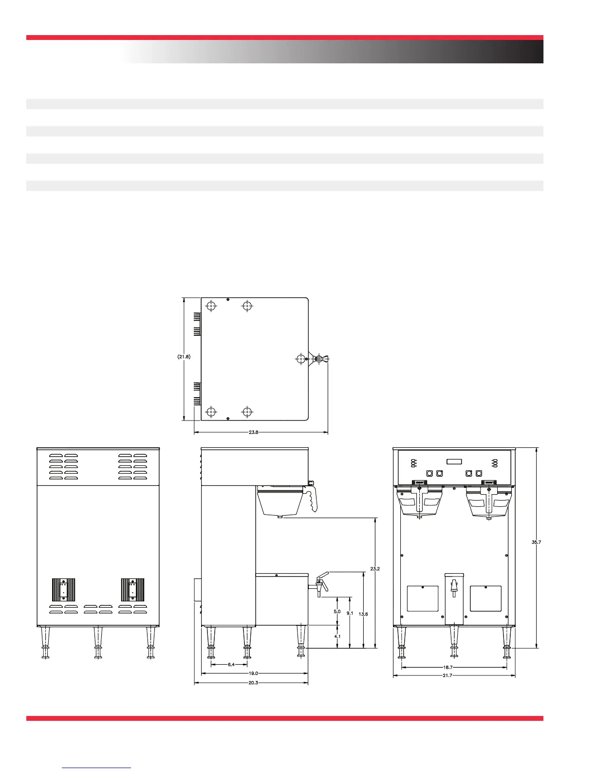
All dimensions shown in inches.
Dimensions & Specifications
Bunn-O-Matic
®
Corporation - 1400 Stevenson Drive Springfield, Illinois 62703 • 800-637-8606 • 217-529-6601 • Fax 217-529-6644 • www.bunn.com
Model Product # Volts Amps Tank Heater Total Brewing Cu. Shipping Funnel Cord
Watts Watts Capacity Ft. Weight Locks Attached
Dual TF DBC 34600.0000 120/240 27.5 2@3300 6600 18.9 gal/hr 14.6 92.5 lbs. Yes No
Dual TF DBC* 34600.0001 120/240 27.5 2@3300 6600 18.9 gal/hr 14.6 92.5 lbs. Yes No
Dual TF DBC 34600.0002 120/240 27.5 2@3300 6600 18.9 gal/hr 14.6 92.5 lbs. No No
Dual TF DBC* 34600.0003 120/240 27.5 2@3300 6600 18.9 gal/hr 14.6 92.5 lbs. No No
Dual TF DBC 34600.0004 120/208 27.4 2@2850 5700 16.3 gal/hr 14.6 92.5 lbs. No No
Dual TF DBC* 34600.0005 120/208 27.4 2@2850 5700 16.3 gal/hr 14.6 92.5 lbs. No No
Dual TF DBC 34600.0006 120/208 27.4 2@2850 5700 16.3 gal/hr 14.6 92.5 lbs. Yes No
Dual TF DBC* 34600.0007 120/208 27.4 2@2850 5700 16.3 gal/hr 14.6 92.5 lbs. Yes No
* Models have black decor.
Brewing capacity: based upon incoming water temp of 60ºF (140ºF rise).
Models listed as 120/208V or 120/240V must be connected to 208V or 240V electrical service respectively. Please refer to the installation manual.
Electrical: Brewer is 3-wires plus ground service rated 120/208V or 120/240V, single phase, 60Hz.
Plumbing: 20-90 psi (138-621 kPa). Machine supplied with
3
8
" male flare fitting. Tank capacity: 10.6 gallons (40.1 L)
3/13 © Bunn-O-Matic Corporation

Other manuals for Bunn Dual TF DBC

Related product manuals