EasyManua.ls Logo

BURNiT Pell Easy series - Page 44

BURNiT Pell Easy series
48 pages
Print Icon
To Next Page IconTo Next Page
To Next Page IconTo Next Page
To Previous Page IconTo Previous Page
To Previous Page IconTo Previous Page
Loading...
44
TECHNICAL PASSPORT. INSTALLATION and OPERATION MANUAL
TECHNICAL PASSPORT. INSTALLATION and OPERATION MANUAL
U
H
L
L
V
S
N
X
O
P
F
D L
A
B
F
C
L
P
S
R
W
L
I
K
Y
Z
D
F
A/B
D/L
L
227227
115
M
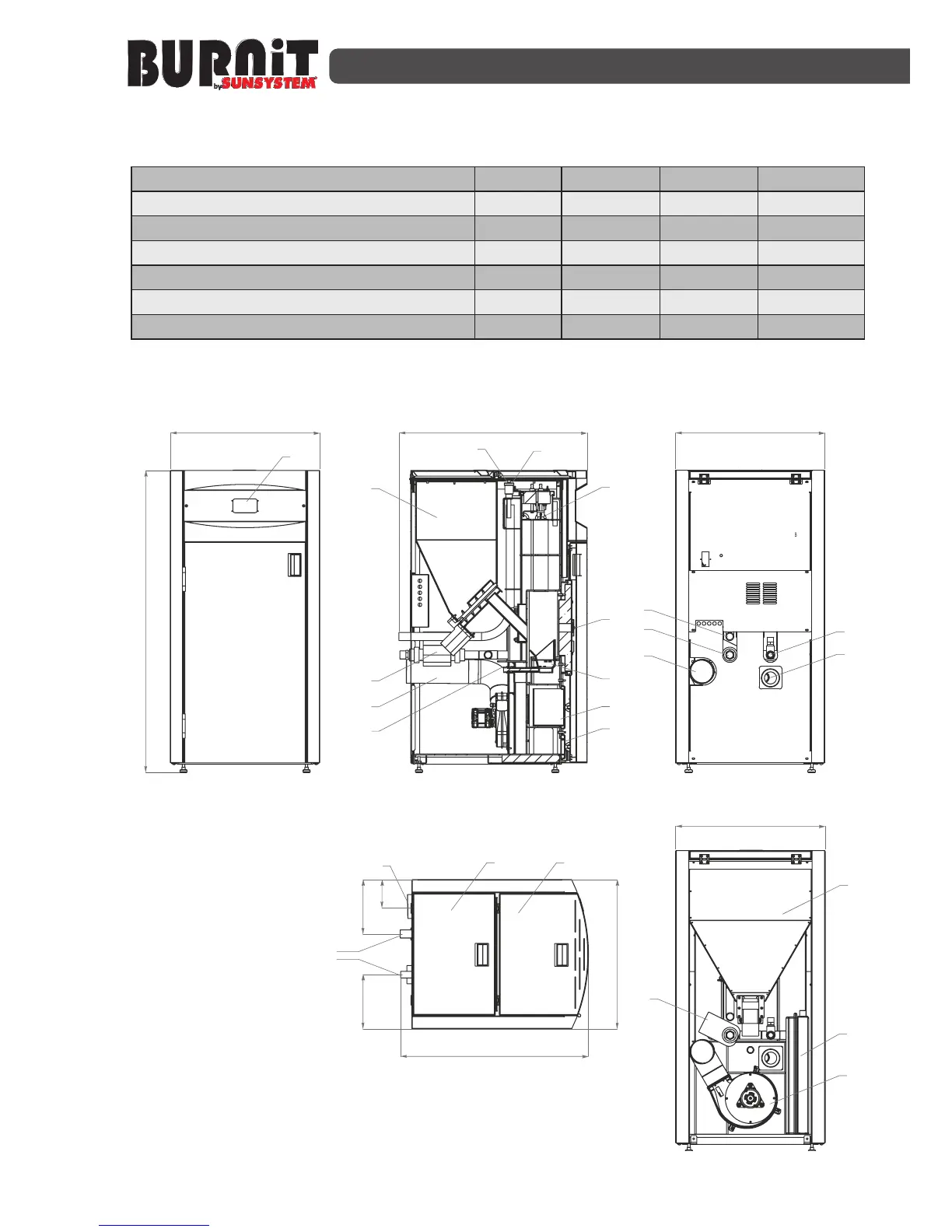
Pell Easy 20
Fume exhaust fan of the boiler
W
Ash-and-soot container
Х
Inspecon hatch
Y
Top loading hatch of fuel hopper
Z
Boiler class according to EN 303-5/2012 г.
class 5 class 5 class 5
Fuel period at nominal power - Qn
h
13 21.5 21.5
El. consumpon in mode “Stand by Power
W
3 3 3