EasyManua.ls Logo

BW Broadcast TX1000 - WIRING AND INTERNAL OVERVIEW

BW Broadcast TX1000
56 pages
Print Icon
To Next Page IconTo Next Page
To Next Page IconTo Next Page
To Previous Page IconTo Previous Page
To Previous Page IconTo Previous Page
Loading...
BW Broadcast technical manual
Page 33
Technical data
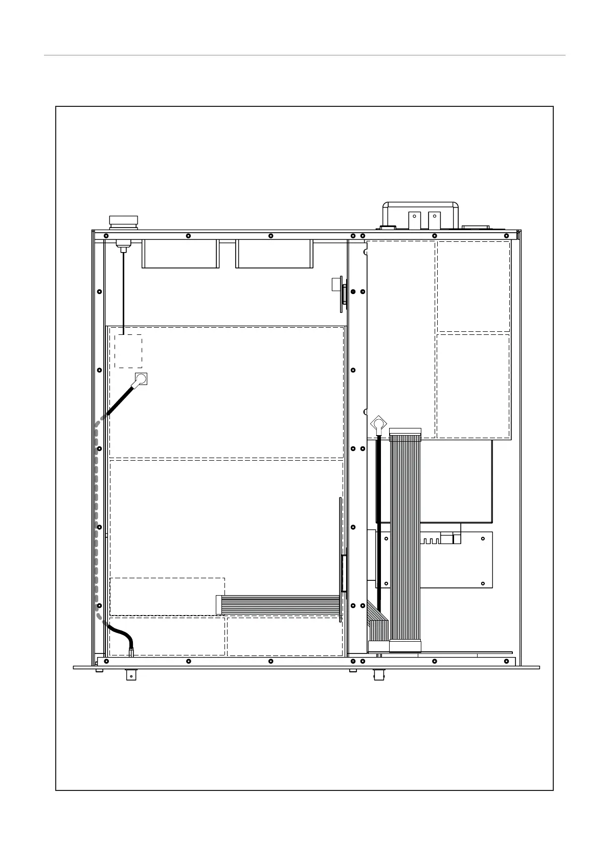
3.4 WIRING AND INTERNAL OVERVIEW
48V 1600W
POWER SUPPLY
PSU Interface board
Fan Connector PCB
Filtered Power PCB
RF Mon BNC
Mod Mon BNC
LCD Board
COMBO BOARD
FAN
FAN
7/16 Socket
IEC Socket
BNC
BNC
XLR XLR
BusBar
9-Pin D-Types
(Alarms & RS232)
DOUBLE PALLET AMP DOUBLE PALLET AMP
INPUT SPLITTER
15W DRIVER BOARD
SEMI RIGID COAX
PA Controller PCB
AUDIO INPUT/LIMITER SECTION
STEREO ENCODER SECTION
CONTROL/POWER/EXCITER SECTION
OUTPUT COMBINER & FILTER
VSWR
16
WY RIBBON
10 WAY RIBBON

Related product manuals