EasyManua.ls Logo

BW Broadcast TX300 - Internal Wiring and Connections

BW Broadcast TX300
49 pages
Print Icon
To Next Page IconTo Next Page
To Next Page IconTo Next Page
To Previous Page IconTo Previous Page
To Previous Page IconTo Previous Page
Loading...
BW Broadcast technical manual
Page 37
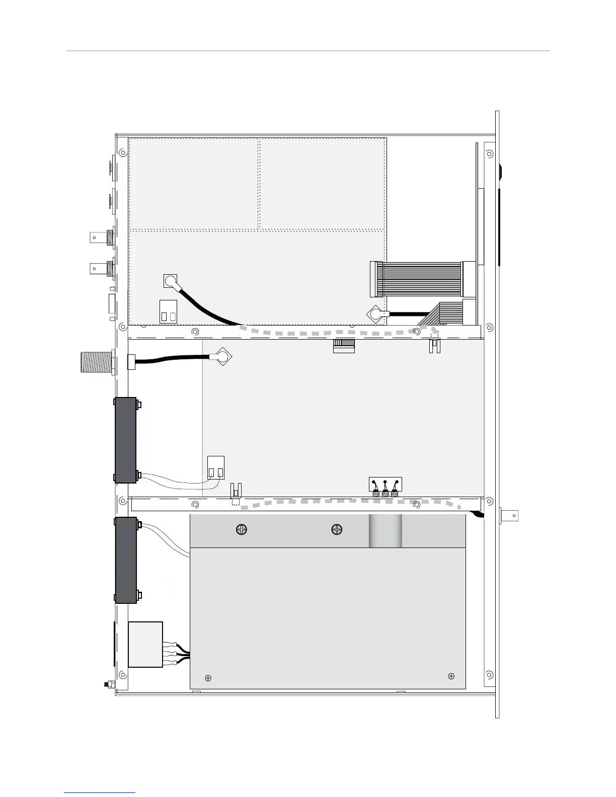
Technical data
COMBO BOARD
PA BOARD
LCD board
Filtered IEC
mains socket
10 WY RIBBON
RF & MOD
MON BNC’s
RED
BLACK
48V 800W
POWER SUPPLY
16 WY RIBBON
RG316
BNC
BNC
XLR XLR
9-pin D-Types
(Alarms & RS232)
N-type socket
EARTH
RG316
RG316
Fan
CONTROL / POWER / EXCITER SECTION
AUDIO INPUT / LIMITER SECTION
STEREO ENCODER SECTION
Fan
3.4 WIRING AND INTERNAL OVERVIEW

Related product manuals