EasyManua.ls Logo

Cabela's 46578 - Technical Specifications; Spark Plug Details; Valve Clearance Settings; FCC Compliance Statement

Cabela's 46578
32 pages
Print Icon
To Next Page IconTo Next Page
To Next Page IconTo Next Page
To Previous Page IconTo Previous Page
To Previous Page IconTo Previous Page
Loading...
REV 46578-20140521 20
46578 ENGLISH
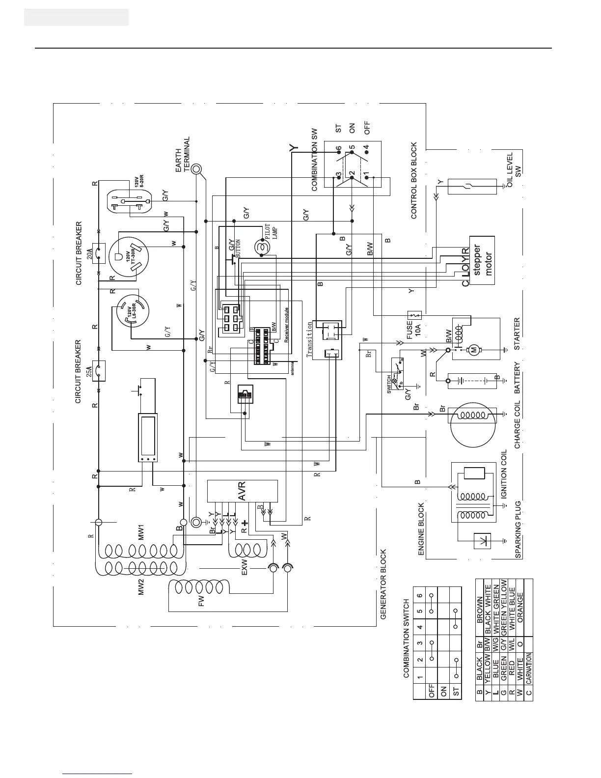
Wiring Diagram
SPECIFICATIONS
L
W
G
B
Y
R
YELLOW
BLACK
BLUE
GREEN
RED
WHITE
Br
WHITE BLUE
GREEN YELLOW
WHITE GREEN
BROWN
BLACK WHITE
B/W
W/L
G/Y
W/G
B
Y
ENGINE BLOCK
GENERATOR BLOCK
SPARKING PLUG
IGNITION COIL
OIL LEVEL
SW
CONTROL BOX BLOCK
COMBINATION SW
M
Br
W
Br
G/Y
B
CHARGE COIL
BATTERY
STARTER
Br
R
B
3
4
2
1
6
5
OFF
ON
ST
COMBINATION SWITCH
6
5
4
3
2
1
B/W
B/W
B
ST
OFF
ON
FUSE
10A
B/W
C
G/Y
G/Y
G/Y
B
Br
R
R
EAKER
EXW
FW
MW1
L
+
Y
Y
AVR
Br
25
A
G/Y
EARTH
TERMINAL
R
w
w
G/Y
G/Y
Y
Y
L
L
R
W
w
w
120V
120V
20A
CIRCUIT BREAKER
L5-30R
TT-30R
120V
5-20R
R R
R
R
R
G/Y
R
w
B
MW2
Y
B
G/Y
G/Y
R
PILOT
LAMP
BUTTON
w
Transition
Receiver module
W
W
W
C
CA
RNAT
IO
N
C
stepper
motor
L
C
O
Y
R
B
B
R
antenna
W
Y
G/Y
W
SWITCH
lb
l
la
ORANGE
O
Intelligauge

Table of Contents

Related product manuals