EasyManua.ls Logo

Calorex PPT12 - 10 Dimensions Machines

Calorex PPT12
151 pages
Print Icon
To Next Page IconTo Next Page
To Next Page IconTo Next Page
To Previous Page IconTo Previous Page
To Previous Page IconTo Previous Page
Loading...
Page 26
Manuel d’utilisation
PRO-PAC 8/12/16/22 LX/LY
SLIMLINE
Calorex Heat Pumps Ltd. The Causeway, Maldon, Essex CM9 4XD, UK
SD638150 ISSUE 11
®
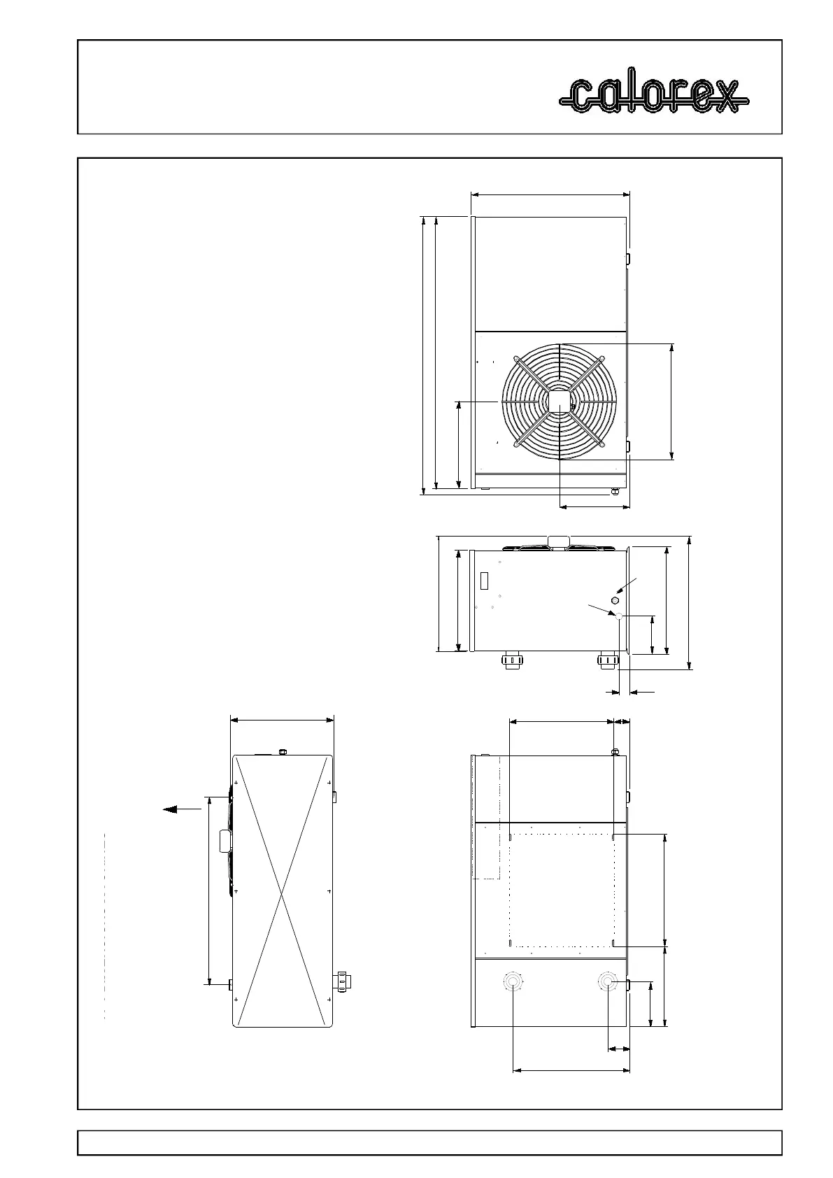
10.0 DIMENSIONS MACHINES
PPT8
ENTREE/ SORTIE EAU 1½ POUCE OU 50mm FEMELLE
CONDENSAT ¾ POUCE
ENTREE EAU
SORTIE EAU
ENTREE D'AIR
SORTIE D'AIR
395
528
320.50
725
1237
1264
204
510.50364.25
70
480
97
532
470
854
POSITION
RACCORDEMENT
ELECTRIQUE
CONDENSAT
165.50
46
457
490
THERMOSTAT
518.50
594

Table of Contents

Other manuals for Calorex PPT12

Related product manuals