EasyManua.ls Logo

Candy CTPS64MCTTWIFI - Πίνακας Ελέγχου

Candy CTPS64MCTTWIFI
258 pages
Print Icon
To Next Page IconTo Next Page
To Next Page IconTo Next Page
To Previous Page IconTo Previous Page
To Previous Page IconTo Previous Page
Loading...
EL-8
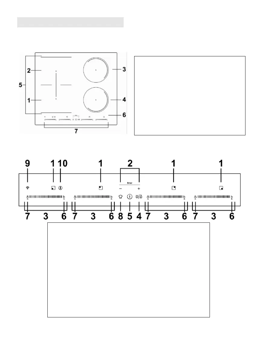
Επισκόπηση προϊόντος
Κάτοψη
1. Ζώνη 2000 W, ενίσχυση σε 2600W
2. Ζώνη 1500 W, ενίσχυση σε 2000W
3. Ζώνη 2000 W, ενίσχυση σε 2600W
4. Ζώνη 1500 W, ενίσχυση σε 2000W
5. Ρυθμιζόμενη (flex) ζώνη, 2800w με
ενίσχυση έως τα 3500w
6. Γυάλινη (εστία) πλάκα
7. Πίνακας ελέγχου
Πίνακας ελέγχου
1. Δείκτης ζώνης θέρμανσης
2. Κλειδί ρύθμισης χρονοδιακόπτη
3. Πλήκτρο ρύθμισης επιπέδου ισχύος
4. κλείδωμα πλήκτρων / παύση λειτουργίας
5. Έλεγχος ON/OFF (Ενεργοποίηση/Απενεργοποίηση)
6. Έλεγχος ενισχυτικής λειτουργίας
7. Έλεγχος της λειτουργίας Διατήρηση Θερμότητας
8. Κουμπί άμεσου μαγειρέματος
9. Κουμπί WiFi
10. Ρυθμιζόμενη (flex) ζώνη

Table of Contents

Related product manuals