EasyManua.ls Logo

Candy DOUBLE DOOR - Przygotowanie Zgodnie Z Wymaganiami; Miejsce Instalacji; Poziomowanie Chłodziarki;Zamrażarki; Czyszczenie Przed Użyciem

Candy DOUBLE DOOR
143 pages
Print Icon
To Next Page IconTo Next Page
To Next Page IconTo Next Page
To Previous Page IconTo Previous Page
To Previous Page IconTo Previous Page
Loading...
122
przewód zasilający. Zawsze chwytać mocno wtyczkę i ciągnąć
prosto, wyjmując ją z gniazdka.
W przypadku tego urządzenia nie należy używać przedłużacza. Jeśli
przewód jest zbyt krótki, należy zwrócić się do wykwalifikowanego
elektryka lub technika serwisanta, aby zainstalował gniazdko w
pobliżu urządzenia. Korzystanie z przedłużacza może negatywnie
wpłynąć na działanie urządzenia.
Przygotowanie zgodnie z wymaganiami
Miejsce instalacji
Wybierając położenie dla posiadanej chłodziarki/zamrażarki, należy
upewnić się, że podłoga jest płaska i mocna, a pomieszczenie jest
dobrze wentylowane. Unikać umieszczania chłodziarki/zamrażarki
w pobliżu źródła ciepła, np. kuchenki, bojlera lub kaloryfera. Należy
również unikać bezpośredniego promieniowania słonecznego w
budynkach zewnętrznych lub w oszklonych werandach. W
przypadku umieszczania posiadanej lodówki/zamrażarki w budynku
zewnętrznym, takim jak garaż lub dobudówka należy się upewnić,
że lodówka/zamrażarka jest umieszczona nad izolacją przeciw
wilgoci, w przeciwnym razie na komorze lodówki/zamrażarki
wystąpi zjawisko kondensacji. Nigdy nie umieszcz
chłodziarki/zamrażarki we wnęce w ścianie lub wbudowanej do
szafek czy mebli. Gdy chłodziarka/zamrażarka pracuje, kratka z tyłu
może być gorąca, a boki ciepłe. Dlatego tylna część
chłodziarki/zamrażarki powinna być instalowana z zachowaniem co
najmniej 50 mm wolnej przestrzeni, a przy każdym boku należy
pozostawić ponad 100 mm miejsca. Nie zakrywać
lodówki/zamrażarki żadnym przykryciem.
E
F
50
100
Rys. 1
Uwaga: na Rysunku 1 i Rysunku 2 przedstawiono jedynie schematy
obrazujące wymaganą wolną przestrzeń dla urządzenia.
Poziomowanie chłodziarki/zamrażarki
Jeśli chłodziarka/ zamrażarka
nie jest wypoziomowana,
trudniej będzie wyrównać
drzwi i uszczelkę magnetyczną
oraz może to spowodować
nieprawidłowe działanie
chłodziarki/zamrażarki. Po
umieszczeniu chłodziarki/
zamrażarki w jej ostatecznym
położeniu należy wyregulować
nóżki poziomujące z przodu,
obracając nimi.
Czyszczenie przed użyciem
Przetrzeć wnętrze komory zamrażarki łagodnym roztworem
wodorowęglanu sodu. Następnie przemciepłą wodą przy użyciu
wilgotnej gąbki lub ściereczki. Umyć kosze i półki w ciepłej wodzie z
mydłem i całkowicie wysuszyć przed umieszczeniem w zamrażarce.
Części zewnętrzne zamrażarki można czyścić woskiem polerującym.
Przed włączeniem!
NIE WŁĄCZAĆ URZĄDZENIA PRZEZ MAKS. CZTERY GODZINY PO
TRANSPORCIE ZAMRAŻARKI.
Czynnik chłodniczy wymaga czasu, aby się ustabilizował. Jeśli
urządzenie zostanie wyłączone w jakimkolwiek momencie, należy
odczek 30 minut przed jego ponownym włączeniem, aby
umożliwić ustabilizowanie się czynnika chłodniczego.
Przed napełnieniem zamrażarki
Przed rozpoczęciem przechowywania żywności w zamrażarce należy
włączyć i poczekać 24 godziny, aby upewnić się, że działa ona
prawidłowo i umożliwić jej schłodzenie się do odpowiedniej
temperatury.
WSTĘP
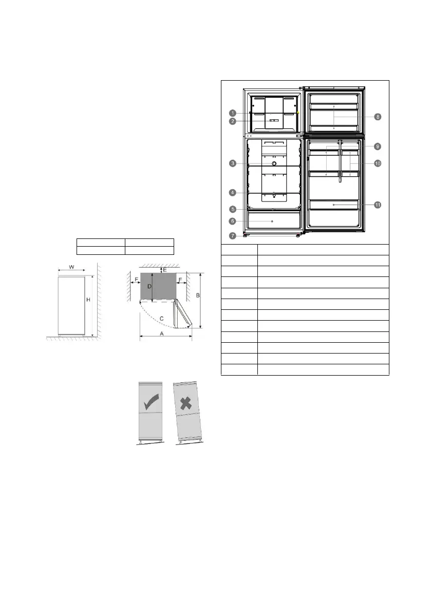
Opis ogólny chłodziarki
Brak
Opis
1
Półka zamrażarki
2
Regulator powietrza
3
Termostat
4
Szklana półka chłodziarki
5
Pokrywa szuflady na owoce i warzywa
6
Szuflada na owoce i warzywa
7
Regulowana nóżka
8
Półka na butelki
9
Górna półka na butelki
10
Półka na małe butelki
11
Dolna półka na butelki

Table of Contents

Related product manuals