EasyManua.ls Logo

Candy DOUBLE DOOR - Obsługa Chłodziarki; Regulacja Temperatury Lodówki; Regulacja Temperatury Zamrażarki; Zalecane Tryby Optymalnej Temperatury

Candy DOUBLE DOOR
143 pages
Print Icon
To Next Page IconTo Next Page
To Next Page IconTo Next Page
To Previous Page IconTo Previous Page
To Previous Page IconTo Previous Page
Loading...
124
Brak
Opis
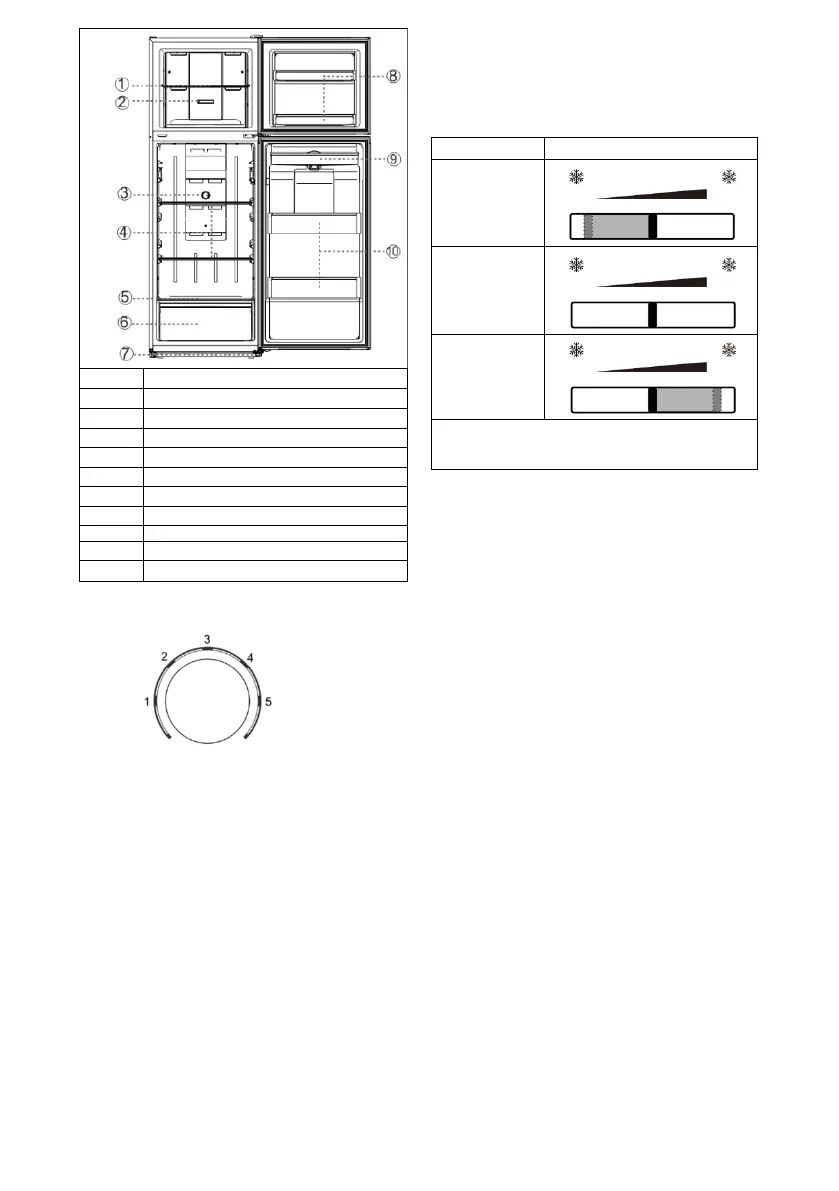
1
Półka zamrażarki
2
Regulator powietrza
3
Termostat
4
Szklana półka lodówki
5
Pokrywa szuflady na owoce i warzywa
6
Szuflada na owoce i warzywa
7
Nóżka poziomująca
8
Półka na butelki
9
Pojemnik na wodę
10
Półka na butelki
Obsługa chłodziarki
Temperatura we wnętrzu chłodziarki jest regulowana przez
potencjometr zainstalowany w komorze na świeżą żywność.
Temperatura wewnętrzna różni się w zależności od częstotliwości
otwierania drzwiczek, temperatury otoczenia i miejsca instalacji
chłodziarki.
Regulacja temperatury lodówki
Temperatura lodówki może być regulowana za pomocą pokrętła do
regulacji temperatury.
1. Temperatura jest stopniowo zmniejszana w miarę obracania
pokrętłem do regulacji temperatury od położenia 1” do
położenia „5”.
2. Ustawienie pokrętła w położeniu „optymalnym powinno
zapewnić odpowiednią temperaturę do normalnego,
codziennego użytkowania.
3. Gdy konieczne jest większe schładzanie komory na świeżą
żywność, należy obrócić pokrętłem do regulacji temperatury w
kierunku najniższej temperatury, aby wydłużyć czas pracy
sprężarki, a tym samym obniżyć temperaturę.
Uwaga: nie zaleca się ustawiania pokrętła do regulacji temperatury
w położeniu najzimniejszym na dłuższy czas.
Regulacja temperatury zamrażarki
Gdy pokrętło do regulacji temperatury w komorze na świeżą
żywność pozostaje w niezmienionym położeniu, temperatura w
zamrażarce stopniowo spada w miarę jak suwak PRZEPŁYWU
POWIETRZA W ZAMRAŻARCE jest przesuwany z położenia „MINdo
położenia „MAX”.
Uwaga: w trakcie normalnego użytkowania wignia do regulacji
powietrza w zamrażarce może zamarznąć z powodu wysokiej wilgoci
lub częstego otwierania drzwiczek. Nie należy wówczas starać się
przesunąć tę dźwignię na siłę. Lepiej użyć ciepłej ściereczki i lokalnie
rozgrzać to miejsce, aby dźwignia do regulacji powietrza mogła
zostać przesunięta bez użycia siły i nie uległa uszkodzeniu.
Zalecane tryby optymalnej temperatury
PORA ROKU
ZALECANE TRYBY
Lato (temperatura
powyżej 35)
Normalne warunki
(wiosna i jesień)
Zima (temperatura
poniżej 13)
Wskazówki Zaleca się nie ustawiać dźwigni regulacyjnej na
dłuższy czas w położeniu MAKS.
PRZESTROGA: unikać ustawiania trybu temperatury w lodówce i
trybu temperatury w zamrażarce równocześnie w położeniu MAKS.,
zwłaszcza latem. Może to doprowadzić do powolnego schładzania
się komory na świeżą żywność, co może być niekorzystne dla
użytkownika.
PODCZAS UŻYCIA
1. Urządzenie może nie działać w prawidłowy sposób (możliwość
rozmrażania zawartości lub generowanie zbyt wysokiej
temperatury w komorze zamrażarki), jeśli zostanie
umieszczone na dłuższy czas w miejscu, w którym panuje
temperatura wykraczająca poza zakres niskich temperatur, dla
którego to urządzenie chłodzące zostało zaprojektowane.
2. Informację o klasie klimatycznej urządzenia zamieszczono na
tabliczce znamionowej.
3. Na temperatury wewnętrzne mogą mieć wpływ takie czynniki,
jak umiejscowienie urządzenia chłodzącego, temperatura
otoczenia oraz częstotliwość otwierania drzwiczek. Może być
też wymagane ustawienie ostrzeżenia, według którego
urządzenie sterujące temperaturą dostosowywałoby do
tego typu zmiennych.
4. W komorach zamrażarki ani w komorach niskiej temperatury
nie należy umieszczać napojów gazowanych, a niektórych
produktów, na przykład kostek lodu, nie należy spożywać, gdy
są zbyt zimne.
5. Nie należy przekracz czasu przechowywania zalecanego
przez producentów żywności, niezależnie od jej rodzaju.
Przechowywanie żywności
1. Ugotowane potrawy można umieszczać w chłodziarce, aby
zapewnić ich świeżość, gdy ich temperatura spadnie do
temperatury pokojowej.
2. Pojemniki na jajka, na butelki, na masło, mleko i napoje
butelkowane itd. Przechowywanie żywności lub pojemników
powinno mieć miejsce z zachowaniem odpowiedniej
odległości, aby nie zakłócić cyklu klimatyzacji powietrza.
3. Przechowywaną żywność należy układać tak, aby uniknąć
zanieczyszczenia krzyżowego, na przykład pakując do
czystych foliowych worków lub papieru do świeżej żywności,
po czym rozmieszcz na różnych łkach, aby uniknąć
skażenia i skapywania wody czy intensywnie pachnących
soków.
4. Owoce i warzywa należy umieszczać w szufladzie na owoce i
warzywa, aby uniknąć nadmiernego odparowywania wody i
utraty świeżości.
PRZEPŁYW POWIETRZA W
ZAMRAŻARCE
MIN.
MAKS.
PRZEPŁYW POWIETRZA W
ZAMRAŻARCE
MIN.
MAKS.
PRZEPŁYW POWIETRZA W
ZAMRAŻARCE
MIN.
MAKS.
Optymalna temperatura
Tryb urlopowy
Najniższa
temperatura

Table of Contents

Related product manuals