EasyManua.ls Logo

Canon BLM 550+ - Page 14

Canon BLM 550+
30 pages
Print Icon
To Next Page IconTo Next Page
To Next Page IconTo Next Page
To Previous Page IconTo Previous Page
To Previous Page IconTo Previous Page
Loading...
Canon
BLM550+ Booklet Maker Service Support Guide
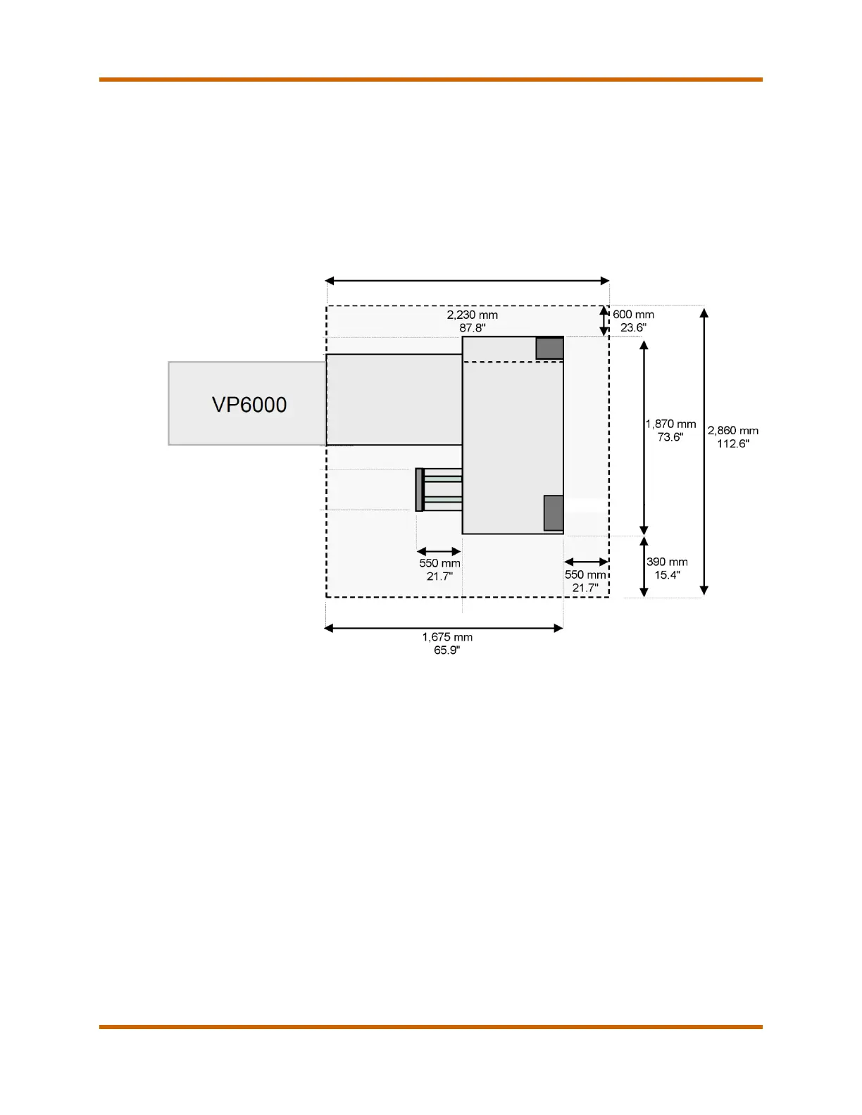
The machine should not be moved once it is in place.
The floor must be level (with no bows) and flat for the stabilization and
support of the machine.
Do not place anything around the machine. Especially, do not place
anything around the breaker, as doing so may prevent access to the
breaker in an emergency, possibly resulting in personal injury.
Figure 1 – Installation SpaceBLM550+ Booklet Maker
BLM550+ Booklet Maker Service Support Guide March 2015
Revision 1 Page 10

Related product manuals