EasyManua.ls Logo

Carel ?C2SE - 3.11 Reverse-Cycle Water-Cooled Condensing Unit

Carel ?C2SE
76 pages
Print Icon
To Next Page IconTo Next Page
To Next Page IconTo Next Page
To Previous Page IconTo Previous Page
To Previous Page IconTo Previous Page
Loading...
20
2
1
2
1
111
1
1
1
2
2
2
222
3
3
4
5
6
16
17
17
18
19
7
7
8
8
9
9
11
12
10
13
13
14
14
15
15
2
1
3
4
5
6
7
8
ENGLISH
µC
2
SE - +030220426 - rel. 2.1 - 09.06.2010
Fig. 3.g.c
Fig. 3.h.a
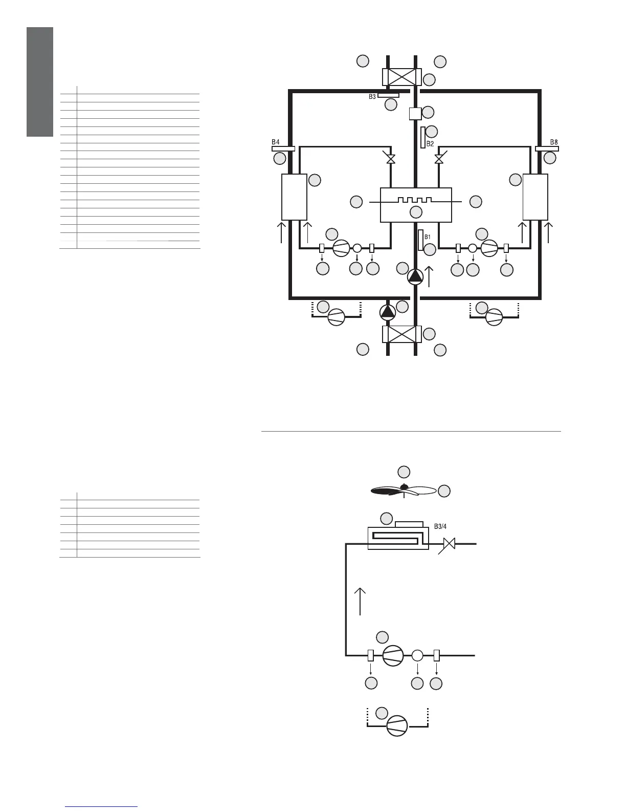
3.7.3 Two circuits, 1 evaporator H02= 1 e H21= 4
3.8 Air-cooled condensing unit without reverse cycle
3.8.1 Single circuit
Key:
1 external
2 internal
3 reversing valve 1 and 2
4 condenser probe
5 ow switch
6 outlet evaporator probe
7 condenser probe 1 and 2
8 condenser 1 and 2
9 outlet evaporator probe 1 and 2
10 antifreeze heater 1 and 2
11 evaporator 1 and 2
12 compressor 1
13 high pressure 1 and 2
14 compressor overload 1 and 2
15 low pressure 1 and 2
16 compressor 3
17 inlet evaporator probe
18 water pump
19 compressor 2
20 compressor 4
Key:
1 condenser fan overload
2 fan
3 condenser probe
4 compressor 1
5 high pressure
6 compressor overload
7 low pressure
8 compressor 2

Related product manuals