EasyManua.ls Logo

Carel pGD0/pGD1 - 6. OPTIONS AND EXTERNAL MODULES; 6.2 Optional pCO sistema boards

Carel pGD0/pGD1
84 pages
Print Icon
To Next Page IconTo Next Page
To Next Page IconTo Next Page
To Previous Page IconTo Previous Page
To Previous Page IconTo Previous Page
Loading...
pCO Sistema
Code: +030220336 - rel. 1.5 - 22/12/10
49
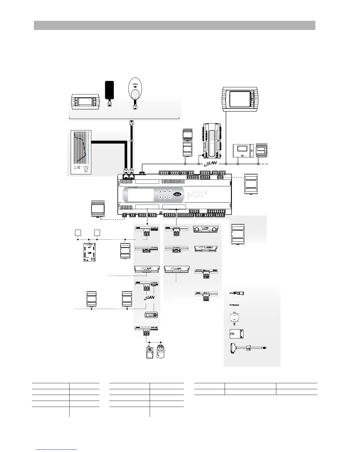
6. OPTIONS AND EXTERNAL MODULES
CAREL has always offered its customers different to interface the pCO sistema controllers with the more commonly-used BMS (Building Management Systems)..
Today in fact, with the expansion of BMS, the issue of communication between controllers made by different companies is increasingly important. CAREL has
consequently developed compatibility with all the protocols that are emerging as the standards in HVAC/R and intelligent management systems, such as Modbus®,
LonWorks®, BACnet™, SNMP.
As regards communication between controllers made by different companies, CAREL offers an excellent variety of solutions that allow the pCO family controllers to
interface with controlled field devices, such as valves, VFD, serial sensors, Belimo actuators etc. In this way, the pCO controller does not just manage the single unit, but
the entire air-conditioning / refrigeration system.
pAD
e-dronic
BELIMO
BELIMO
Sonde utilizzabili
PCOS004850:
scheda se riale RS485
PCO20DCDC0:
modulo
alime ntatore
DC/DC
dispositivi
terze parti
controllori
CAREL (ir33,
µC
2
, ecc...)
PCO100MDM0:
scheda modem
PCO10000F0:
schede LON
S90CONN*:
cavo di collegamento
CVSTDUTLF0:
convertitore
USB/RS485
Sinottico
ASP*: sonde di
temperatura e umidità
per ambiente indust riale
ASD*: sonde di temperatura e
umidità per condotta
ASW*: sonde di
temperatura e umidità
per ambie nte
SPKT: sonde di p ressione
4...20 mA - sonde
raziomet riche 0...5 V
NTC/PT1000: sonde
di temperatura
PCOUMI2000:
interfaccia
umidific atore
per kit OEM
PCOE004850:
scheda espansione
pCO I/O RS485
EVD*2*
EVD*4*
driver per E EV
BMS
Field-Bus
FCM*
modulo di
comando
elettronico
PCO*: controlli
programmabili
PCO1000BA0: scheda interfaccia
BACnet™ RS485
PCOS00HBB0:
schede CANbus
PCO1000WB0: 
pCO Web - sch. interfaccia
Ethe rnet™/B ACnet™
PGD0-1*:
display grafico
PGD2-3*: displ ay grafico
touch sc reen per mo ntaggio
ad incasso e pa rete
e-dronic
RS485
M odbus
®
master/
CAREL master
Servocontrollo
della se
rranda
Valvola di
servocontrollo
MP-BUS
PCOS00FD20:
scheda modem
PCO100MPB0:
scheda M P-BUS
PCOS00HBF0:
scheda CANbus
PCO100FD10:
scheda se riale FieldBus
PLD*: terminale utente
PCOE004850:
scheda espansione
pCO I/O RS485
PCOE00TLN0:
scheda espansione
pCO I/O tLAN
EVD00004*
driver per EEV
PCO100TLN0:
scheda se riale tLAN
(*):Alla tLAN NON possono essere collegati
contemporaneamente PCOE00TLN0 eterminali PLD*!
CP*: schede
controllo
umidificatori
KUE*
GND H+ H–
CANbus
GND H+ H–
CANbus
status RS485
GNX RS485+
P1 P2 P3
BACnet MS/TP
ADP*:
terminale
TAT*:
terminale
PCO100CLP0: 
scheda TREND
sta rt
m ode
PCOS00AKY0: smart key
chiave di programmazione
Fig. 6.a
Fig. 6.aFig. 6.a
Fig. 6.a
Field Bus options
Field Bus optionsField Bus options
Field Bus options
BMS options
BMS optionsBMS options
BMS options
LonWorks
LonWorksLonWorks
LonWorks
Opti
cally isolated 485
PCO100FD10
CANbus
PCOS00HBB0
LonWorks
FTT10
PCO10000F0
tLAN
PCO100TLN0
485/Modbus
PCOS004850
LonWorks
FTT10 standard chiller profile
PCO10001F0
Belimo MPbus
PCO100MPB0
modem
PCO100MDM0
modem
PCOS00FD20
Trend board
PCO1
00CLP0
CAN hydronic
PCOS00HBF0
Ethernet board
PCO1000WB0
PCO1000BA0

Table of Contents

Related product manuals