EasyManua.ls Logo

Carlyle 06DR337 - Outline Drawings

Default Icon
72 pages
Print Icon
To Next Page IconTo Next Page
To Next Page IconTo Next Page
To Previous Page IconTo Previous Page
To Previous Page IconTo Previous Page
Loading...
40
7/8
ODS
14.86
14.97
3.75
45°
2.192.19
8.87
10.00
2.01
17.93
3.69
5.52
12.88
6.00
2.91
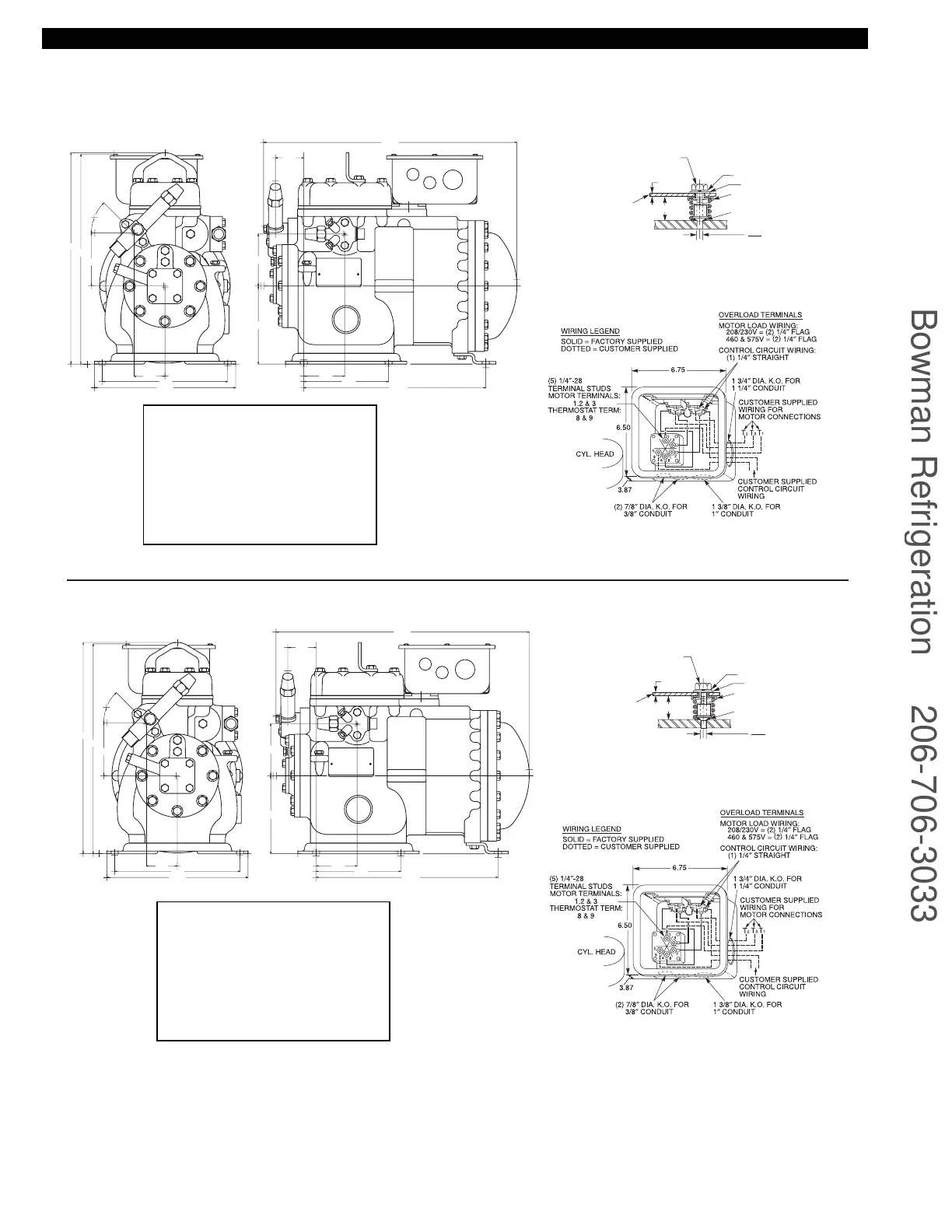
SPRING MOUNTING ARRANGEMENT
TERMINAL BOX DATA
CYLINDERS: 2
CFM: 9
MODELS: 06DR109
UNLOADING AVAIL: NO
STEPS: 0
7/8
ODS
14.86
14.97
3.75
45°
2.19
8.87
10.00
2.01
17.93
3.69
5.52
12.88
6.00
2.91
COMPRESSOR FOOT
MOTOR END AND
PUMP END (TYP.)
= CUSTOMER
SUPPLIED
1.25
.19
3/8-16 x 7/8 LG
CAPSCREW
LOCKWASHER
PLATEWASHER
SPRING CUP
WELD
(TYP.)
.623
DIA. (TYP.)
.627
*
*
*
*
SPRING MOUNTING ARRANGEMENT
TERMINAL BOX DATA
CYLINDERS: 2
CFM: 8
MODELS: 06DA808
06DM808
UNLOADING AVAIL: NO
STEPS: 0
COMPRESSOR FOOT
MOTOR END AND
PUMP END (TYP.)
= CUSTOMER
SUPPLIED
1.25
.19
3/8-16 x 7/8 LG
CAPSCREW
LOCKWASHER
PLATEWASHER
SPRING CUP
WELD
(TYP.)
.623
DIA. (TYP.)
.627
*
*
*
*
NOTE: ALL DIMENSIONS ARE IN INCHES
Multiple service valve orientations are possible
06D Low Temperature Compressors
06D Medium/High Temperature Compressors
Bowman Refrigeration 206-706-3033

Table of Contents

Related product manuals