EasyManua.ls Logo

Carrier 40JX - Unit Dimensions

Carrier 40JX
36 pages
Print Icon
To Next Page IconTo Next Page
To Next Page IconTo Next Page
To Previous Page IconTo Previous Page
To Previous Page IconTo Previous Page
Loading...
14
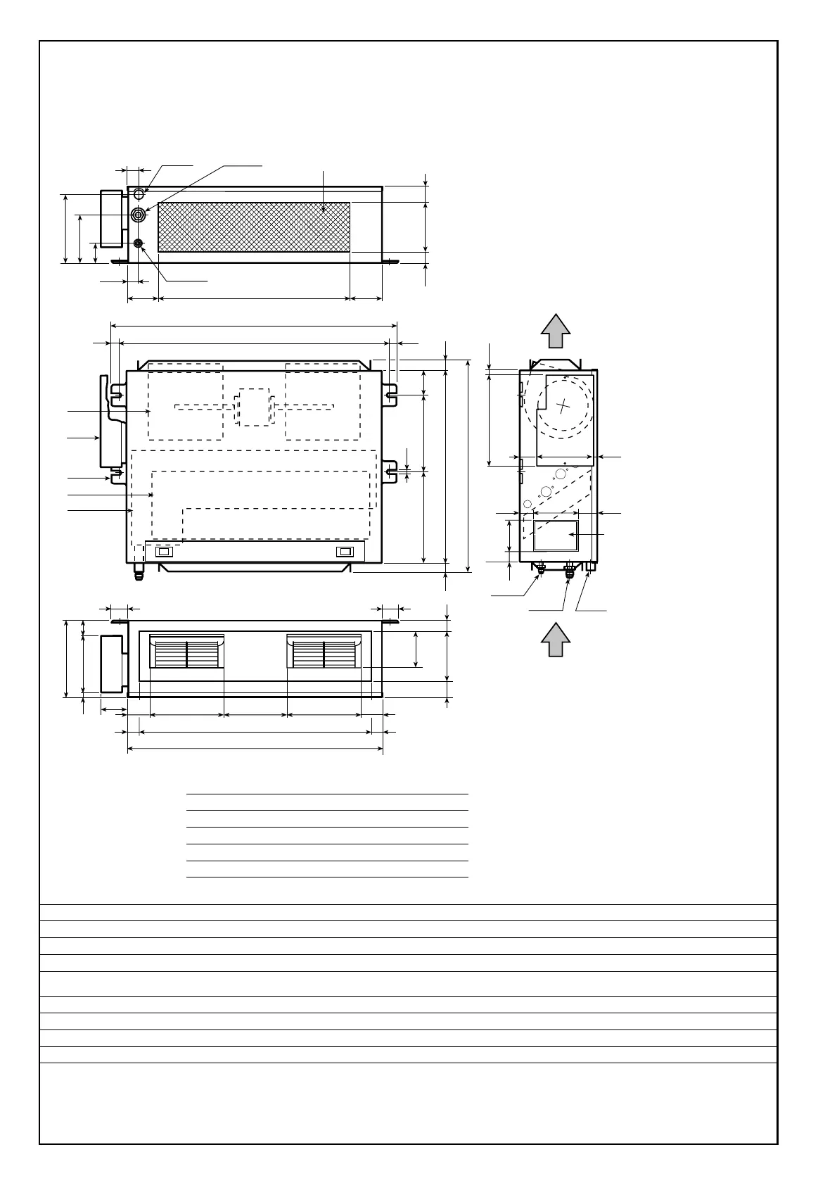
Dimensions /
Dimensioni
/ Dimensions /
Abmessungen
/ Dimensiones
(mm)
40JX
When designin an installation ensure the use of up-to-date drawings available from your local Carrier office.
Per la progettazione dell’installazione, assicurarsi di utilizzare disegni aggiornati, disponibili presso l’ufficio Carrier locale.
Pour la conception de l’installation, vérifier que l’on utilise toujours des dessins au schémas mis au jour, disponibles auprès du bureau Carrier local.
Für die Installationsplanung nur neubearbeitete Zeichnungen, die in der örtlichen Carrier Dienststelle zur Verfügung stehen, anwenden.
Para el disenõ de instalaciones utilizar los dibujos actualizados disponibles en la oficina local de Carrier.
40JX A B C D E F G H I J K L M N P Q R S
009 - 012 - 018 725 555 220 743 781 262 222 71 23 607 31.5 59 140 200 35 33 659 45
024 - 028 - 036 925 660 285 943 981 241.5 321 97.5 23 712 33.5 118.5 199.5 264.5 35 37.5 850 87.5
048 - 060 1250 750 310 1268 1306 261 321 168 22 801 43 143 224 289 43 110 1030 103
40JX T U V W X Y Z AB AC AD AE AF AG AH AJ AK AL
009 - 012 - 018 143 62 211 179 103 13 27 3,5 89 545 33 142 31 90 128 54 38
024 - 028 - 036 165.5 90 276 193 125 23 82 31 99 725 33 207 31 110 160 50 75
048 - 060 175 203 290 264 116 23 107 31 109 1030 32 233 32 140 185 50 75
40JX Ø AM Ø AN Ø AP
009 1/4” 3/8” 20
012 - 018 1/4” 1/2” 20
024 - 028 1/4” 5/8” 25
036 - 048 - 060 3/8” 3/4” 25
Indoor coil
Fan
Drain pan
Drain connection Ø AP
Outside air intake
Electrical box
Unit support
Air filter
Liquid Ø AM
Gas Ø AN
Batteria interna
Ventilatore
Bacinella di raccolta
condensa
Connessione denaggio
Ø AP
Ingresso aria esterna
Quadro elettrico
Supporto unità
Filtro aria
Liquido Ø AM
Gas Ø AN
Batterie interne
Ventilateur
Bac à condensat
Connection de drenage
Ø AP
Prise d’air extérieur
Boîter électrique
Support unité
Filtre à air
Liquide Ø AM
Gas Ø AN
Innen-Wärmetauscher
Ventilator
Kondensatwanne
Kondensatablauf-
anschluss Ø AP
Aussenlufteintritt
Schaltkasten
Gerätehalterung
Luftfilter
Flüssigkeit Ø AM
Gas Ø AN
Batería de agua
Ventilador
Bandeja de drenaje
Connexión de drenaje
Ø AP
Toma de aire exterior
Caja eléctrica
Soporte unidad
Filtro de aire
Liquido Ø AM
Gas Ø AN
9
B
C
32
2828
1919
29
45
180
YZ
W
R
VU
Q
VU
Q
TS
X
I
GH
J
F
D
E
AF
AD AC
K
P
AE
L
AC
M
N
87
Ø AM
A
Ø AN
Ø AP
260
AB
AG AH
AKAJ
AL
Ø AM
Ø AN
Ø AP
Y
180
Z

Other manuals for Carrier 40JX

Related product manuals