EasyManua.ls Logo

Carrier 40QA024-060 - Page 17

Carrier 40QA024-060
24 pages
Print Icon
To Next Page IconTo Next Page
To Next Page IconTo Next Page
To Previous Page IconTo Previous Page
To Previous Page IconTo Previous Page
Loading...
17
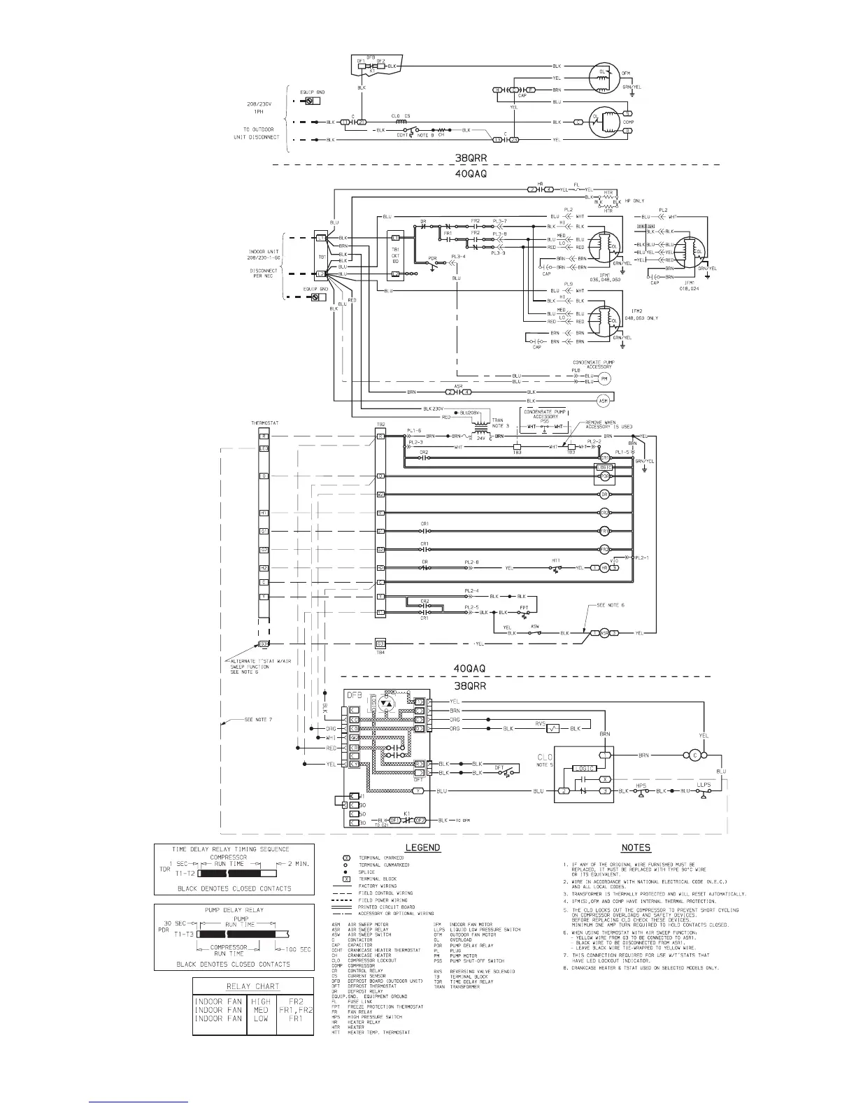
Fig. 21 — Heat Pump Wiring Diagram

Related product manuals