EasyManua.ls Logo

Carrier 40QA024-060 - Page 5

Carrier 40QA024-060
24 pages
Print Icon
To Next Page IconTo Next Page
To Next Page IconTo Next Page
To Previous Page IconTo Previous Page
To Previous Page IconTo Previous Page
Loading...
5
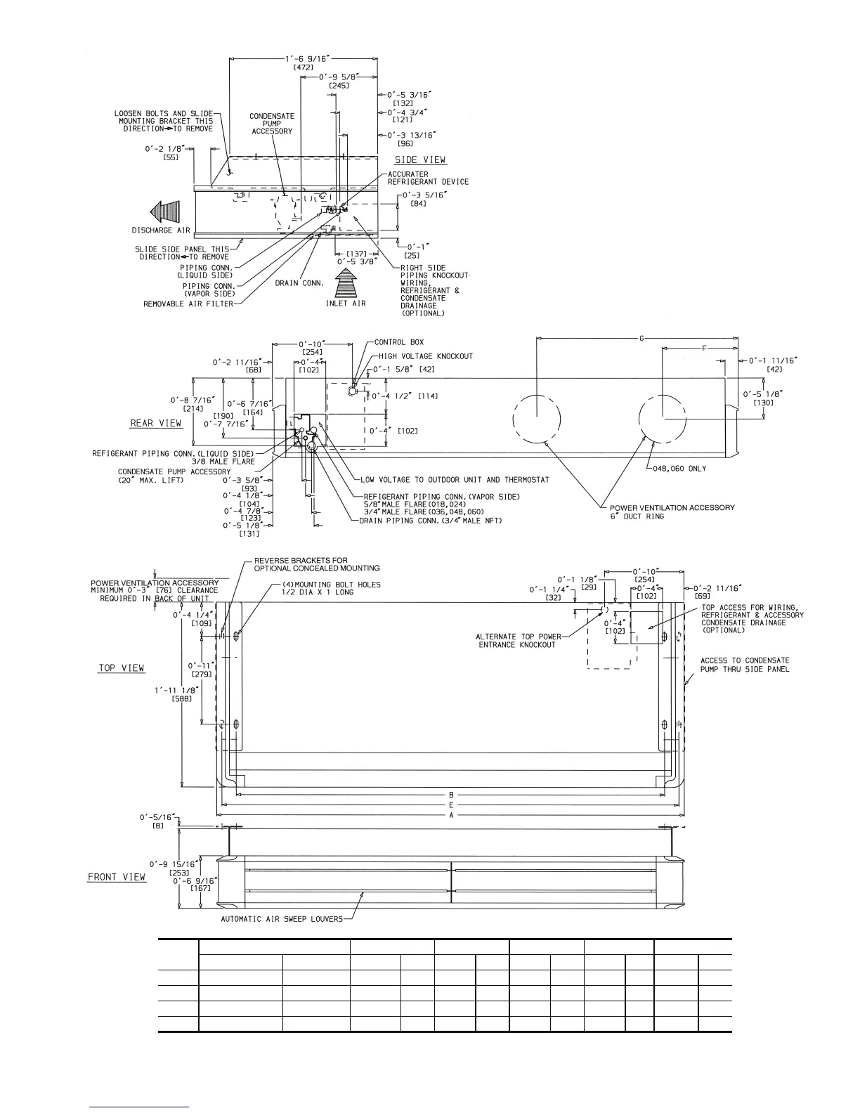
Fig. 3 — Base Unit Dimensions
UNIT
SIZE
WEIGHT (lb) A B E F G
Cooling Only Heat Pump ft-in. mm ft-in. mm ft-in. mm ft-in. mm ft-in. mm
024 108 110 4- 2
15
/
16
1294 3-10 1169 4- 1
5
/
8
1260 1- 9
5
/
8
549
036 117 119 4-10
13
/
16
1493 4- 5
7
/
8
1368 4- 9
1
/
2
1459 2- 1
1
/
2
648
048 149 151 5-11
9
/
16
1817 5- 6
5
/
8
1692 5-10
1
/
4
1783 1- 9
7
/
8
555 3- 3
1
/
16
992
060 179 181 7- 8 2336 7- 3 2211 7- 6
5
/
8
2302 1-11
5
/
8
601 4-11
9
/
16
1512
NOTES:
1. Dimensions in [ ] are in millimeters.
2. Direction of airflow.
3. Standard unit clearances are as follows:
•0 on top and rear
•3 on left side
•12 on right side
•36 on bottom
(When facing unit discharge.)

Related product manuals