EasyManua.ls Logo

Carrier 42WHC016 - Electrical connections; Printed circuit for electrical connections

Carrier 42WHC016
18 pages
Print Icon
To Next Page IconTo Next Page
To Next Page IconTo Next Page
To Previous Page IconTo Previous Page
To Previous Page IconTo Previous Page
Loading...
42 WHC/WHE
GB - 8
For installation of hanging panel without water valve, use H07V-K
type single pole cables with the following sections:
a) electrical power supply : 1.5 mm
2
;
b) control; : 1 mm
2
;
c) The power supply connection cable must be carried out as per
side figure, preparing the cable as shown.
d) ensure that the connection to the electrical supply is made
through a single pole switch with minimum contact opening of at
least 3 mm;
e) fit the gL type delayed fuses to the power supply line as shown
in the following table:
Model
Fuse gL type
A
016 2
42WHC 020 2
028 2
016 6
42WHE 020 6
028 6
Electrical connections
For installation of hanging panel with water valve, use H07V-K type
single pole cables with the following sections:
a) electrical power supply : 1.5 mm
2
;
b) control; : 1 mm
2
;
To facilitate the cable connection operations, follow the connection
sequence in tabes IV and V.
When removing the unit, proceed in the opposite way.
The electrical connections to the mains power supply and control
are made on the printed circuit housed inside the panels.
The connections between the printed circuit and the unit are made
using polarised connectors that facilitate installation and any possible
unit removal operations: they also prevent connection errors.
Inside the unit there are the following thermostats:
a) cold draft prevention thermostat (cooling only models);
b)
only for unit with electric heater: 2 electric heater safety
thermostats (the first with automatic reset, the second with
manual reset, both factory fitted);
c) high water temperature protection thermostat (accessory only for units
with an electric heater in combined operation - heater + hot water).
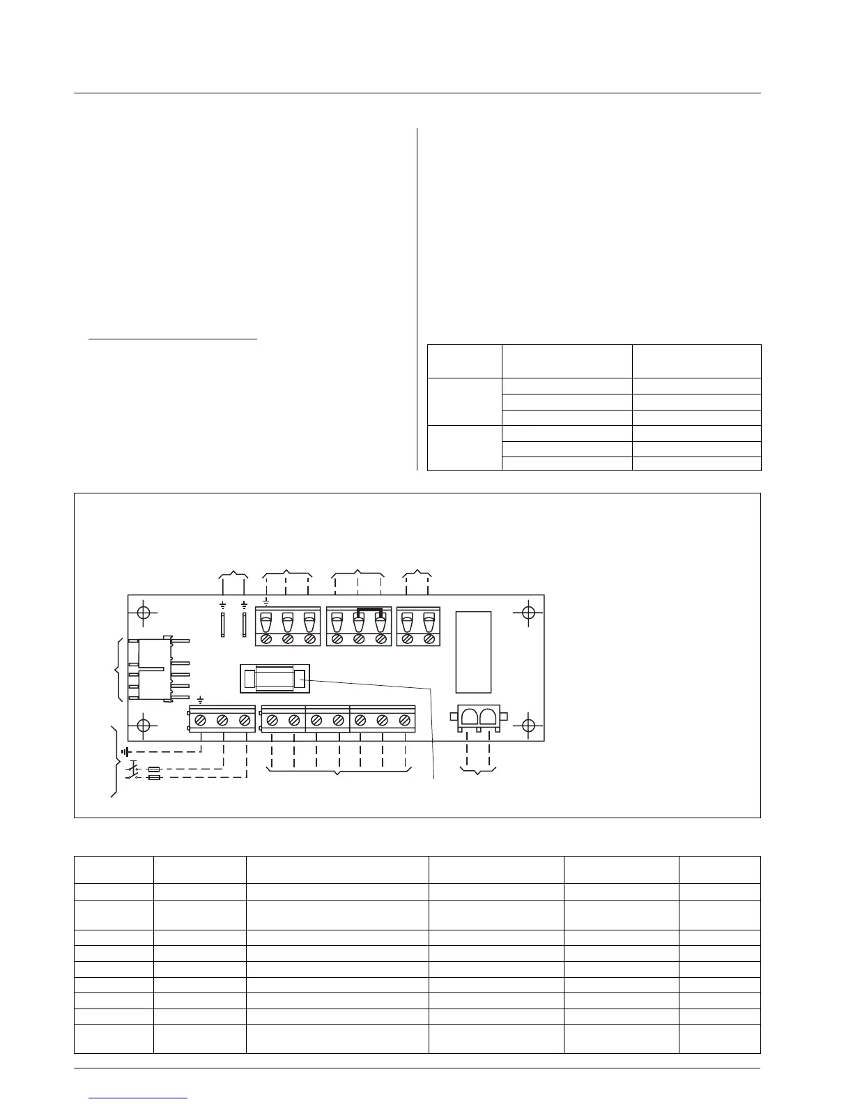
Printed circuit for electrical connections
Printed circuit types:
printed circuit for unit without electric heater;
printed circuit for unit with electric heater.
Table IV: Printed circuit for unit without electric heaters
Connection Reference
Connection
Connection Number of Installer
sequence figure device poles connection
1 M1 Water valve Screw terminal block 2 X
2
M5
Wall control with
Screw terminal block 7 X
room thermostat
3 M3 Condensate drain pump Screw terminal block 3 X
4 (accessory) M2 Season change-over thermostat Screw terminal block 3 X
5 GND Ground Ground 2 male faston connectors X
6 CN1 Fan motor Polarised connector 6 X
7 CN2 Cold draft protection thermostat Polarised connector 2 X
8 M4 Power supply Screw terminal block 3 X
===
RL1 Cold draft protection relay
Connections only
===
on printed circuit
Mod. 42WHC connections
To unit motor
Ground
Condensate drain pump
Season change-over thermostat
(accessory)
Valve
CDP thermostat
Fuse
To control
FAN MOTOR
M4
CN1
LNHTCCLV1V2
RL1
LN 1234567
M5
CDP
230V ~ 50/60Hz
GND
M3 PUMP M2 C/OVER M1 VALVE
햳햴
F1
CN2
Pass the power supply and control cables in a plastic conduit.

Related product manuals