EasyManua.ls Logo

Carrier 50FC Series - Free Cooling; Dry Bulb Lockout; Enthalpy Lockout; Unoccupied Free Cooling Lockout

Carrier 50FC Series
112 pages
To Next Page IconTo Next Page
To Next Page IconTo Next Page
To Previous Page IconTo Previous Page
To Previous Page IconTo Previous Page
Loading...
24
3. Rotate the detector plate so the sensor is facing outwards
and the sampling tube connection is on the bottom. See
Fig. 46.
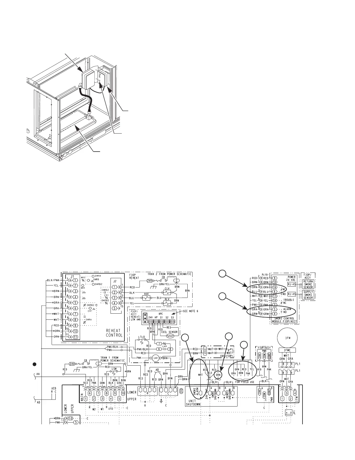
Fig. 46 — Return Air Smoke Detector
Operating Position
4. Screw the sensor and detector plate into its operating posi-
tion using screws from Step 1. Ensure the sampling tube
connection is on the bottom and the exhaust tube is on the
top.
5. Connect the flexible tube on the sampling inlet to the sam-
pling tube on the basepan.
6. For units with an economizer, the sampling tube is inte-
grated into the economizer housing but connecting the
flexible tubing to the sampling tube is the same.
FIOP Smoke Detector Wiring and Response
ALL UNITS
The FIOP smoke detector is configured to automatically shut
down all unit operations when a smoke condition is detected.
See Fig. 47, Smoke Detector Wiring.
HIGHLIGHT A
Smoke detector NC contact set will open on smoke alarm con-
dition, de-energizing the ORN conductor.
HIGHLIGHT B
24-v power signal using the ORN lead is removed at the smoke
detector input on UCB; all unit operations cease immediately.
RTU OPEN CONTROLS
Unit operating functions (fan, cooling and heating) are termi-
nated as described above. In addition:
HIGHLIGHT C
On smoke alarm condition, the smoke detector NO Alarm con-
tact will close, supplying 24-v power to GRA conductor.
HIGHLIGHT D
WHT lead at Smoke Alarm input on UCB provides 24-v signal
to FIOP DDC control.
RTU OPEN
The 24-v signal is conveyed to RTU Open-J1-10 input termi-
nal. This signal initiates the FSD sequence by the RTU Open
control. FSD status is reported to connected BAS network.
USING REMOTE LOGIC
Six conductors are provided for field use (see Highlight E) for
additional annunciation functions.
ADDITIONAL APPLICATION DATA
Refer to the application data document “Factory Installed
Smoke Detectors for Small and Medium Rooftop Units 2 to 25
Tons” for discussions on additional control features of these
smoke detectors including multiple unit coordination.
Fig. 47 — Typical Smoke Detector System Wiring
RETURN AIR SMOKE DETECTOR
(Operating Position Shown)
SCREWS (2)
SAMPLE TUBE
CONTROLLER
MODULE
A
C
B
D
E

Table of Contents

Other manuals for Carrier 50FC Series

Related product manuals