EasyManua.ls Logo

Carrier 50TC Series - Installation; Jobsite Survey; Step 1 - Plan for Unit Location; Step 2 - Plan for Sequence of Unit Installation

Carrier 50TC Series
40 pages
To Next Page IconTo Next Page
To Next Page IconTo Next Page
To Previous Page IconTo Previous Page
To Previous Page IconTo Previous Page
Loading...
8
CONNECTOR
PKG. ACCY.
BC
D ALT
DRAIN
HOLE
POWER CONTROL
ACCESSORY
POWER
CRBTMPWR003A01
1’-9
11
/
16
[551]
1
3
/
4
[44.5]
1’-4”
[406]
CRBTMPWR004A01
3
/
4
” [19] NPT
1
1
/
4
” [31.7]
1
/
2
” [12.7]
NPT
1
/
2
” [12.7]
NPT
ROOFCURB
ACCESSORY
A UNIT SIZE
CRRFCURB002A01
CRRFCURB001A01
1’-2”
[356]
2’-0”
[610]
50TC-A07
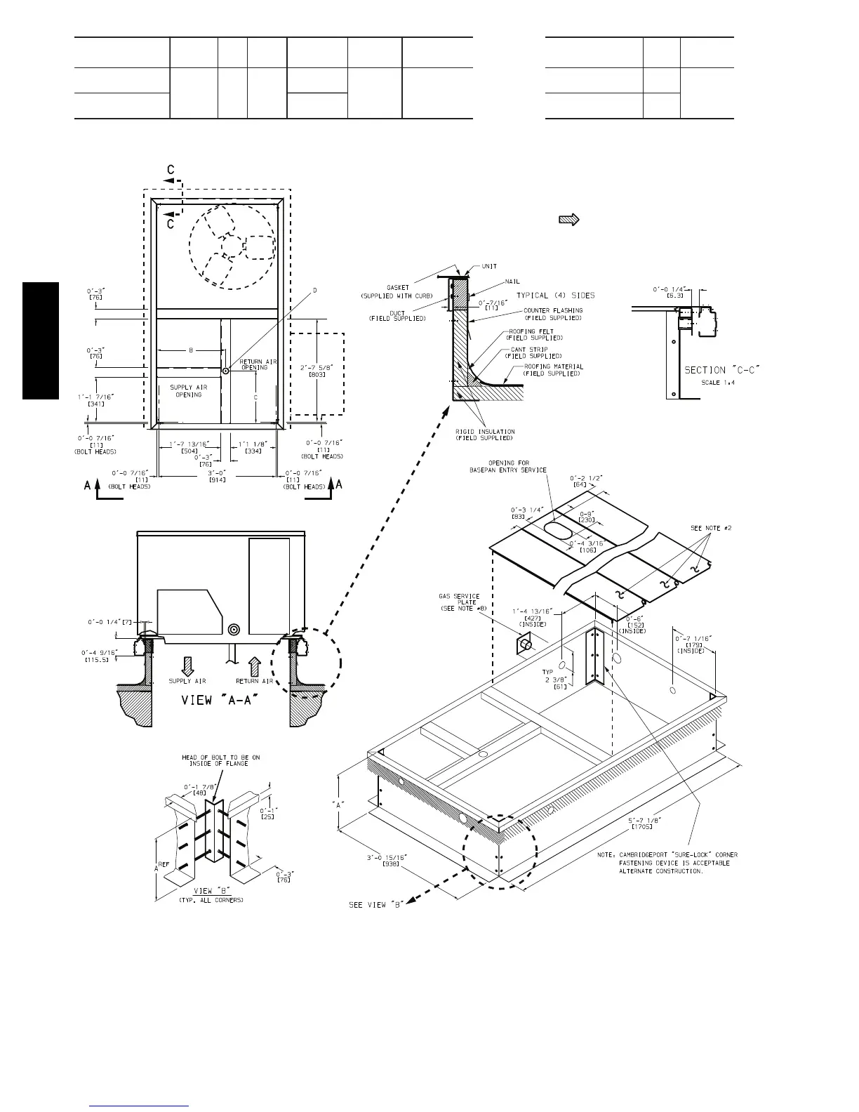
NOTES:
1. Roof curb accessory is shipped disassembled.
2. Insulated panels.
3. Dimensions in [ ] are in millimeters.
4. Roof curb: galvanized steel.
5. Attach ductwork to curb (flanges of duct rest on curb).
6. Service clearance: 4 ft on each side.
7. Direction of airflow.
C09452
Fig. 4 -- Roof Curb Details 07 Size Units
50TC

Table of Contents

Other manuals for Carrier 50TC Series

Related product manuals