EasyManua.ls Logo

Carrier 58CMA - Page 8

Carrier 58CMA
12 pages
Print Icon
To Next Page IconTo Next Page
To Next Page IconTo Next Page
To Previous Page IconTo Previous Page
To Previous Page IconTo Previous Page
Loading...
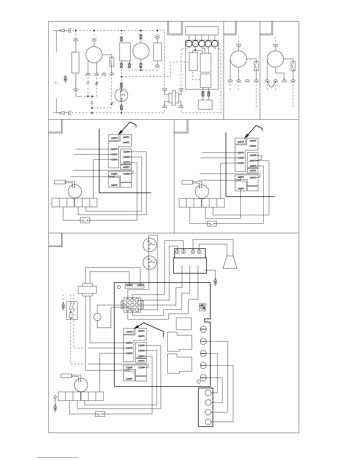
Fig. 4—Wiring Diagram (120-20)
A98061
UNUSED
LO
ML
MH
HI
C
STANDARD HEAT / COOL WIRING DIAGRAM
WITH ST9103 ELECTRONIC FAN TIMER
1
OIL INPUT : 0.85 USGPH
COOLING CAPACITY; 4 TONS MAX.
*
JUMPER: USE JUMPER ONLY WHEN THE COOLING
AND HEATING SPEEDS ARE SAME
OIL INPUT : 1.10 USGPH
COOLING CAPACITY : 5 TONS
OIL INPUT : 1.00 USGPH
COOLING CAPACITY : 4 TO 5
TONS MAX.
LEADS
1233
H
U
M
45
6
N
7
2
S
E
A
C
C
O
N
T
C
O
O
L
H
E
A
T
C
X
WY R
GWRYC
G
L1
T
L2
O
T
F
F
FUSE
CAPACITOR
WHITE
BLACK
BLACK
BLACK
WHITE
LIMIT
CONTROL
RED
RED
YELLOW
BLUE
OIL PRIMARY
CONTROL
CAD CELL
BLACK
WHITE
ORANGE
THERMOSTAT
RED
BLUE
BLACK
BURNER
MOTOR/
TRANSFORMER
R99G001
ST9103
120 VAC 24 VAC
L1 (H)
L2 (N)
120 VAC POWER SUPPLY
CONSTANT LOW SPEED SWITCH
CIRCULATING
FAN
BLACK
TRANS
WHITE
VIOLET
ON
12
UNUSED
LO
ML
MH
HI
C
LEADS
1233
H
U
M
45
6
N
7
2
S
E
A
C
C
O
N
T
C
O
O
L
H
E
A
T
CAPACITOR
WHITE
RED
BLUE
BLACK
R99G001
ST9103
CONSTANT LOW SPEED SWITCH
CIRCULATING
FAN
BLACK
WHITE
UNUSED
LO
ML
MH
HI
C
LEADS
1233
H
U
M
45
6
N
7
2
S
E
A
C
C
O
N
T
C
O
O
L
H
E
A
T
CAPACITOR
WHITE
RED
BLUE
BLACK
R99G001
ST9103
CONSTANT LOW SPEED SWITCH
CIRCULATING
FAN
BLACK
WHITE
1
2
3
115 VAC 10 60Hz POWER SUPPLY
(FUSED DISCONNECT ON HOT LEG)
ELECTRONIC
AIR CLEANER
L1(H)
S2
EAC
K2
K2
K1
K1
COOL
CIRCULATION
BLOWER
HEAT
CN6-9
LIMIT(S)
CN6-1 CN6-2 CN6-4
CONT
L1 L2
UNUSED MOT. LEAD
HI
LO
C
MH
ML
N6
N3
L2(N)
OIL PRIM
CONTROL
HUMIDIFIER
LIMIT SENSE
R
W
Y
C
PRIM
CONTROL
ST9103A ELECTR. FAN TIMER
K3
120VAC
24VAC
BURNER
MOTOR &
TRANSFO.
CN6-7
CN6-8
CN6-6
T1
T2
PRIMARY
THERMOSTAT
CN6-3
S3 N4
CX
CN6-4
HUM N7
TRANS
COOL
CONT
HEAT
CIRCULATION
BLOWER
UNUSED MOT. LEAD
HI
LO
CMH
ML
COOL
CONT
HEAT
CIRCULATION
BLOWER
UNUSED MOT. LEAD
MH
LO
C
ML
HI
2
3
* JUMPER
* JUMPER
GND
GND
G
CIRCULATION
BLOWER
K1 K2
HUM TERMINAL IS 115V
HUM
TERMINAL
IS 115V
HUM
TERMINAL
IS 115V
8

Related product manuals