EasyManua.ls Logo

Carrier 58CVA - Page 15

Carrier 58CVA
60 pages
To Next Page IconTo Next Page
To Next Page IconTo Next Page
To Previous Page IconTo Previous Page
To Previous Page IconTo Previous Page
Loading...
15
1
/
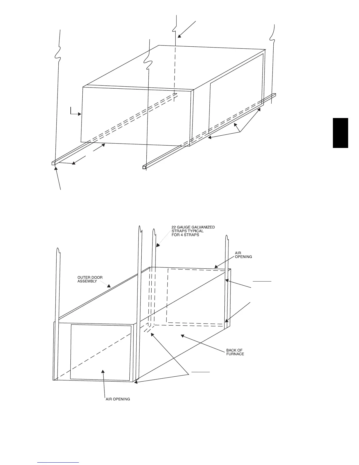
4 " (6mm) THREADED ROD
4 REQ.
SECURE ANGLE
IRON TO BOTTOM
OF FURNACE WITH
3 #8 x
3
/
4
" (19mm) SCREWS
TYPICAL FOR 2 SUPPORTS
1” (25mm) SQUARE, 1-1/4”x1-1/4”x1/8” (32x32x3mm)
ANGLE IRON OR UNI-STRUT MAY BE USED
(2) HEX NUTS, (2) WASHERS & (2) LOCK WASHERS
REQ. PER ROD
8" (203mm)
MIN
FOR DOOR REMOVAL
OUTER DOOR
A S SEMBLY
A10130
Fig. 15 -- Horizontal Unit Suspension
METHOD 2
USE (4) #8 x 3/4 (19 mm) SHEET
METAL SCREWS FOR EACH
STRAP. THE STRAPS
SHOULD BE VERTICAL
AGAINST THE FURNACE
SIDES AND NOT PULL AWAY
FROM THE FURNACE
SIDES.
METHOD 1
FOLD ALL STRAPS UNDER
FURNACE AND SECURE WTH
(4) #8 x 3/4 (19 mm) SHEET METAL SCREWS
(2 SCREWS IN SIDE AND 2 SCREWS
IN BOTTOM).
A10131
Fig. 16 -- Horizontal Suspension with Straps
58CV

Related product manuals