EasyManua.ls Logo

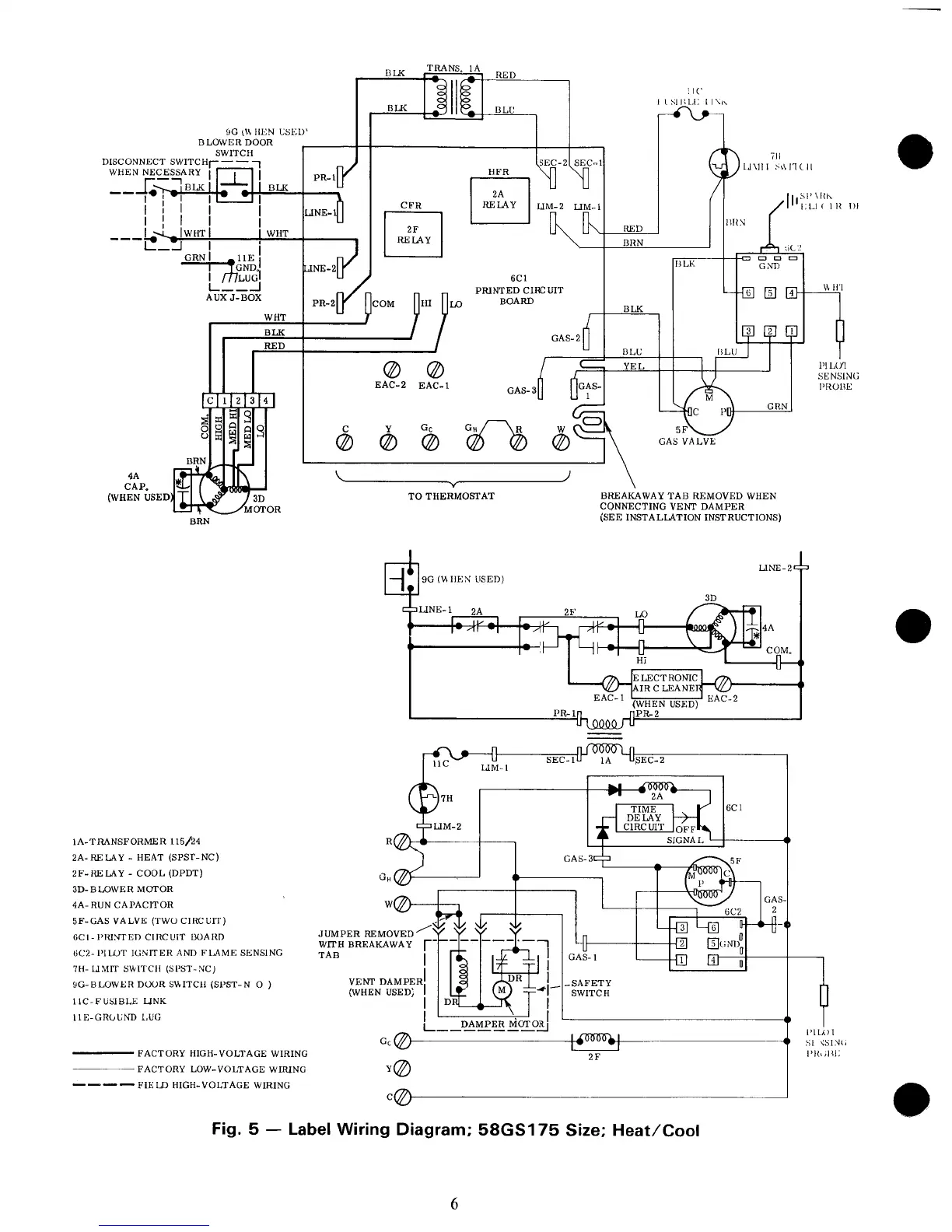
Carrier 58GS Series - Label Wiring Diagram (58 GS175 Heat;Cool); Specific Wiring for 58 GS175

Carrier 58GS Series
15 pages
To Next Page IconTo Next Page
To Next Page IconTo Next Page
To Previous Page IconTo Previous Page
To Previous Page IconTo Previous Page
Loading...

Related product manuals