EasyManua.ls Logo

Carrier 58MTA - Page 24

Carrier 58MTA
52 pages
Print Icon
To Next Page IconTo Next Page
To Next Page IconTo Next Page
To Previous Page IconTo Previous Page
To Previous Page IconTo Previous Page
Loading...
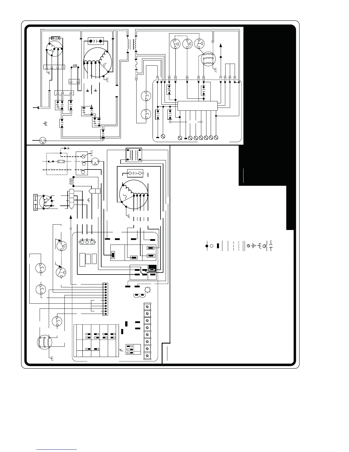
Fig. 31—Wiring Diagram
A02176
GV
HI
M
GRN/YEL
C
NOTE #3
BRN
BLU
BRN
GRN/YEL
RED
RED
FRS
LS
NOTE #11
ORN
YEL
HSI
L1
NOTE #2
GND
NEUTRAL
FU2
FUSE OR CIRCUIT
BREAKER & DISCONNECT
SWITCH (WHEN REQ’D)
BLK
ILK
PL5
JB
1
2
SEC-1
LED
SEC-2
FUSE 3-AMP
PLT
ACRDJ
0.5 AMP
@ 24 VAC
HUM
TEST/TWIN
ON
OFF
321
DLY
OFF
LHT
W/W1DHUM G
24V
om
C
W2 Y/Y2 RY1
TRAN
L1
PR-1
EAC-1
OL
SPARE - 1
BLWR
BHT/CLR
BHI/LOR
COOL
LO-HEAT
HI-HEAT
START
GRN/YEL
BLWM
NEUTRAL - L2
EAC-2
RED
BLU
ORN
YEL
BLK
LO
MED LO
MED
HI
MED HI
RED
BLU
WHT
WHT
BRN
BRN
BLK
WHT
BLK
WHT
IHI/LOR
HSIR
IDR
LO
HI
HSI
GRY
CONNECTION DIAGRAM
BLK
1
HSI
2
IDM
1
2
3
HI
COM
LO
SCHEMATIC DIAGRAM
(NATURAL GAS & PROPANE)
IDR
TO 115VAC FIELD-DISCONNECT SWITCH
ILK
EQUIPMENT
GROUND
1
2
3
HSIR
IHI/LOR
PL2
L2
L2
CAP-1
OL
START
BLWM
COM
LO
MED LO
MED
HI
MED HI
LO HEAT
SPARE-2
COOLING
SPARE-1
BHI/LOR
BHT/CLR
BLWR
EAC-2
EAC-1
TRAN
L2
L2
115VAC
24VAC
SEC 2
SEC 1
PR1
FU1
NOTE #6
PL1-8
GVR-2
HUM
R
ACR
PL1-12
HPSR
GV
LPS
NOTE #11
LGPS
(WHEN USED)
HPS
HI
PL1-2
PL1-4
PL1-3
PL1-10
PL1-5
W/W1
CPU
GVR-1
TEST/TWIN
DHUM
W2
Y/Y2
G
Y1
C
OM 24V
NOTE #3
C
M
PL1-1
LPS
(WHEN USED)
LGPS
WHT
FSE
PL1-9
PL1-11
PL1-7
LEGEND
ACR AIR CONDITIONING RELAY, SPST (N.O.)
ACRDJ AIR CONDITIONING RELAY DISABLE JUMPER
BHI/LOR BLOWER MOTOR SPEED CHANGE RELAY, SPDT
BHT/CLR BLOWER MOTOR SPEED CHANGE RELAY, SPDT
BLWR BLOWER MOTOR RELAY, SPST-(N.O.)
BLWM BLOWER MOTOR, PERMANENT-SPLIT-CAPACITOR
CAP 1, 2 CAPACITOR
CPU MICROPROCESSOR AND CIRCUITRY
DHUM DHUM CONNECTION
EAC-1 ELECTRONIC AIR CLEANER CONNECTION (115 VAC 1.0 AMP MAX.)
EAC-2 ELECTRONIC AIR CLEANER CONNECTION (COMMON)
FRS FLAME ROLLOUT SW. -MANUAL RESET, SPST-(N.C.)
FSE FLAME-PROVING ELECTRODE
FU1 FUSE, 3 AMP, AUTOMOTIVE BLADE TYPE, FACTORY INSTALLED
FU2 FUSE OR CIRCUIT BREAKER CURRENT INTERRUPT DEVICE
(FIELD SUPPLIED AND INSTALLED)
GND EQUIPMENT GROUND
GV GAS VALVE-REDUNDANT
GVR 1, 2 GAS VALVE RELAY, DPST-(N.O.)
HPS HIGH-HEAT PRESSURE SWITCH, SPST (N.O.)
HPSR HIGH-HEAT PRESSURE SWITCH RELAY, SPST (N.C.)
HSI HOT SURFACE IGNITER (115VAC)
HSIR HOT SURFACE IGNITER RELAY, SPST (N.O.)
HUM 24VAC HUMIDIFIER CONNECTION (0.5 AMP. MAX.)
IDM INDUCED DRAFT MOTOR, 2-SPEED, SHADED POLE
IDR INDUCED DRAFT MOTOR RELAY, SPST-(N.O.)
IHI/LOR INDUCER MOTOR SPEED CHANGE RELAY, SPDT
ILK BLOWER ACCESS PANEL INTERLOCK SWITCH, SPST-(N.O.)
JB JUNCTION BOX
LED LIGHT-EMITTING DIODE FOR STATUS CODES - AMBER
LGPS LOW GAS PRESSURE SWITCH, SPST-(N.O.)
LPS LOW-HEAT PRESSURE SWITCH, SPST (N.O.)
LS LIMIT SWITCH, AUTO-RESET, SPST (N.C.)
OL AUTO-RESET INTERNAL MOTOR OVERLOAD TEMPERATURE SWITCH (N.C.)
PCB PRINTED CIRCUIT BOARD CONTROL
PL1 12-CIRCUIT PCB CONNECTOR
PL2 3-CIRCUIT PCB HSI & IDM CONNECTOR
PL3 6-CIRCUIT ICM MOTOR CONNECTOR (NOT SHOWN)
PL4 4-CIRCUIT IDM CONNECTOR
PL5 2-CIRCUIT HSI CONNECTOR
PLT 3-CIRCUIT FACTORY TEST CONNECTOR
TRAN TRANSFORMER, 115VAC/24VAC
TEST/TWIN COMPONENT TEST & TWINNING TERMINAL
JUNCTION
TERMINAL
CONTROL PCB TERMINAL
FACTORY POWER WIRING (115VAC)
FACTORY CONTROL WIRING (24VAC)
FIELD CONTROL WIRING (115VAC)
FIELD CONTROL WIRING (24VAC)
CONDUCTOR ON CONTROL PCB
FIELD WIRING SCREW TERMINAL
FIELD EARTH GROUND
EQUIPMENT GROUND
FIELD SPLICE
PLUG RECEPTACLE
PCB
PL1-6
L1
NOTE #10
L2
PL4
PL5
WHT
WHT
RED
BLK
PL2
IDM
NOTE #8
1 AMP
@ 115 VAC
STATUS CODE
FU1
NOTE #6
PL1
1
SELECT CHART
SW
LO-HT
ONLY
BLOWER
OFF-DELAY
ON
OFF
1
ONLY
HEAT
LO
HEAT
NORM
2 3
90
SEC.
ON
OFF
1
2
3
120
SEC.
ON
OFF
2 3
150
SEC.
ON
OFF
2
3
180
SEC.
HPS
FACTORY SETTINGS
BLW
HI HEAT
NOTE #5
*
*
*
SPARE-2
FSE
RED
ACRDJ
326797-101 REV. A
1. If any of the original equipment wire is replaced use wire rated for 105°C.
2. Use only copper wire between the disconnect switch and the furnace junction box (JB).
3. This wire must be connected to furnace sheet metal for control to prove flame.
4. Symbols are electrical representation only.
5. Solid lines inside PCB are printed circuit board conductors and are not included in the legend.
6. Replace only with a 3 amp fuse.
7. Blower motor (BLWM) and inducer motor (IDM) contain internal auto-reset thermal overload switches (OL).
8. Neutral connections are interchangeable within the NEUTRAL connector block.
9. Blower motor speed selections are for average conditions, see installation instructions for optimum selection.
10. MED not available on some models.
11. Factory connected when LGPS is not used.
12. Ignition lockout will occur after four consecutive unsuccessful trials-for-ignition. Control will auto-reset after
three hours.
13. Blower-on delay: gas high-heat 60 seconds, gas low-heat 45 seconds, cooling or heat pump 2 seconds.
14. Blower off-delay: gas heating selections are 90, 120, 150, 180 seconds, cooling or heat pump 90 seconds or
5 seconds when dehumidify call is active.
NOTES:
PRINTED CIRCIUT BOARD
PRINTED CIRCIUT BOARD
FRS
LS
WHT
WHT
PL3
IDM
123
BLK
4
GRN/YEL
CAP-2
BRN
BRN
GRN
RED
WHT
OL
/YEL
CAP-1
NOTE #2
OL
4
CAP-2
NOTE #9
24

Table of Contents

Other manuals for Carrier 58MTA

Related product manuals