EasyManua.ls Logo

Case 668T/M2 - TIMING SYSTEM

Case 668T/M2
178 pages
Print Icon
To Next Page IconTo Next Page
To Next Page IconTo Next Page
To Previous Page IconTo Previous Page
To Previous Page IconTo Previous Page
Loading...
70168
70169
Figure 11
Figure 12
When finding the distortion areas, replace the cylinder unit.
Planarity error shall not exceed 0.075 mm.
Check cylinder unit operating plug conditions, replace them
in case of uncertain seal or if rusted.
!
In case of regrinding, all barrels shall have the same
oversize (0.5 mm).
Checking head supporting surface on cylinder
unit
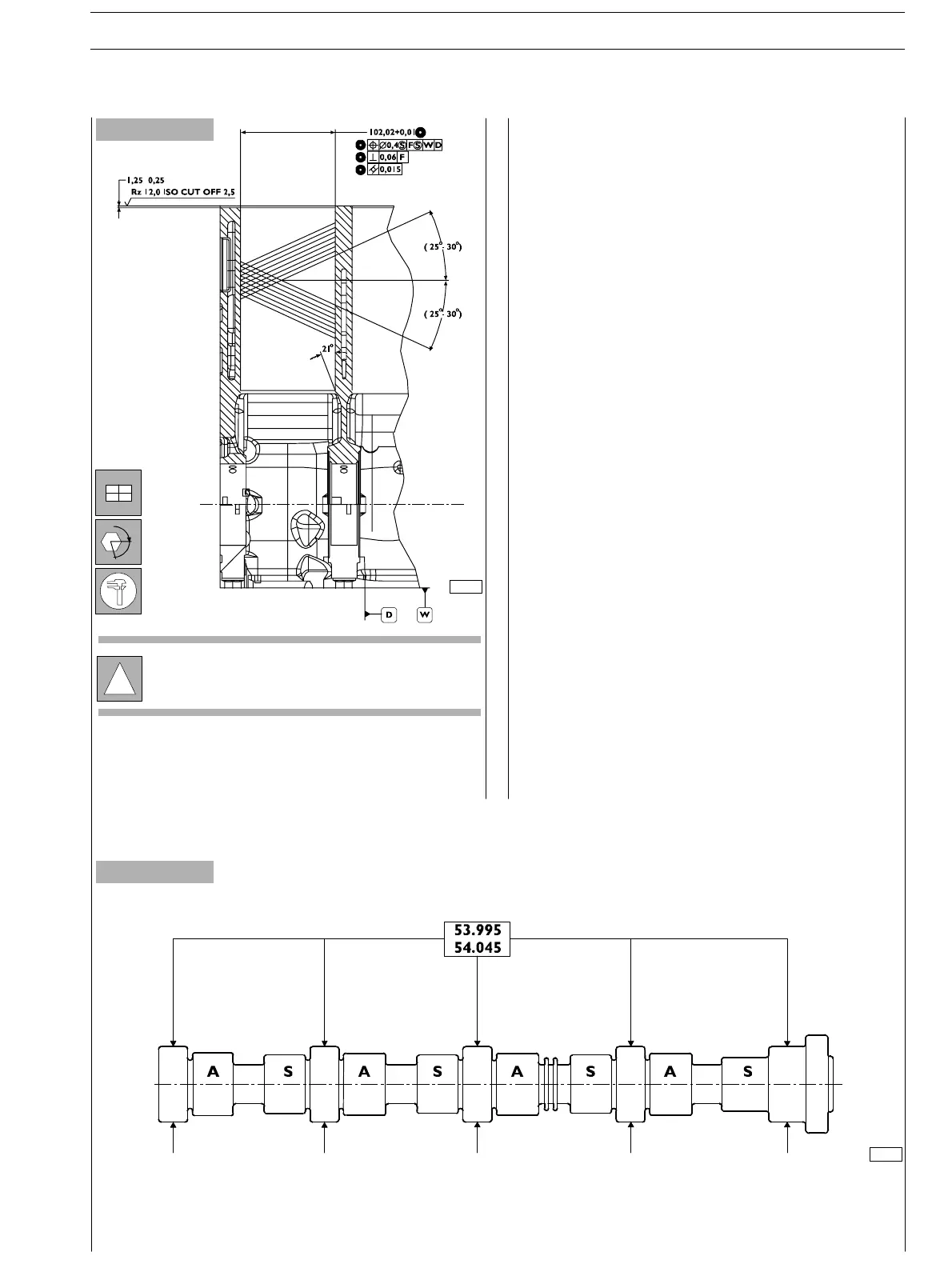
TIMING SYSTEM
Camshaft
CAMSHAFT MAIN DATA (4 CYL.)
Specified data refer to pin standard diameter
α
±
±±
±
Check main bearing housings as follows:
- fit the main bearings caps on the supports without
bearings;
- tighten the fastening screws to the specified torque;
- use the proper internal gauge to check whether the
housing diameter is falling within the specified value.
Replace if higher value is found.
SECTION 4 OVERHAUL AND TECHNICAL SPECIFICATIONS E NG I NE S
13
ED. FEBUARY 2003

Table of Contents

Related product manuals