EasyManua.ls Logo

Case CX130 - Page 221

Case CX130
262 pages
Print Icon
To Next Page IconTo Next Page
To Next Page IconTo Next Page
To Previous Page IconTo Previous Page
To Previous Page IconTo Previous Page
Loading...
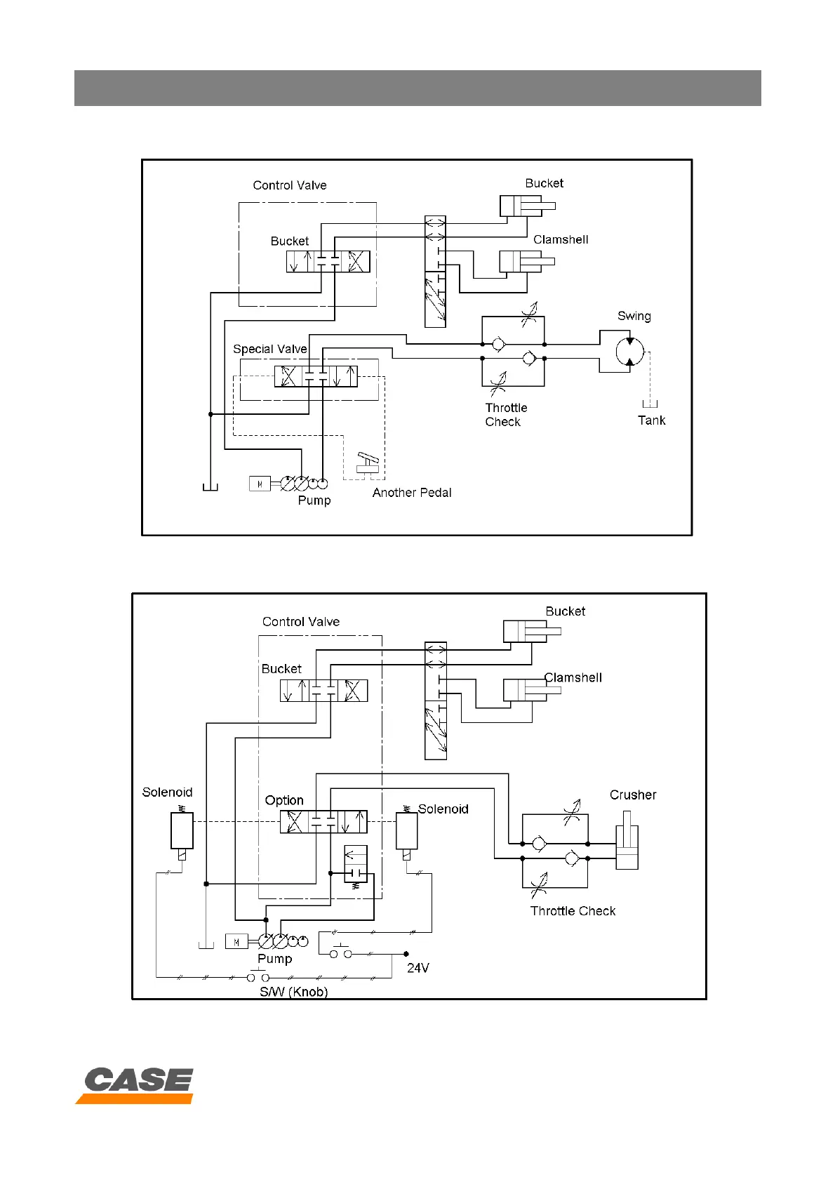
HYDRAULIC CIRCUIT
6 - 28
CASE TRAINING CENTER
AUGUST 2000
Clamshell and 2nd auxiliary option
Clamshell and double acting option

Related product manuals