EasyManua.ls Logo

Case CX210C - Page 39

Case CX210C
81 pages
Print Icon
To Next Page IconTo Next Page
To Next Page IconTo Next Page
To Previous Page IconTo Previous Page
To Previous Page IconTo Previous Page
Loading...
INTRODUCTION
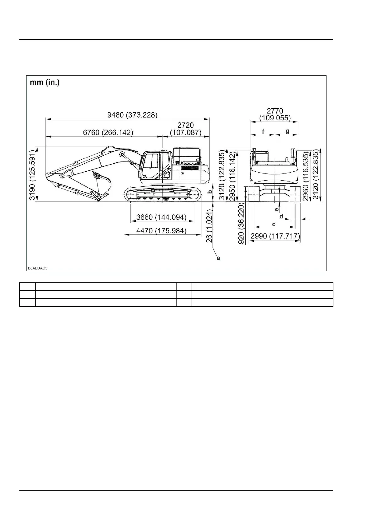
Shortarm[2.40m(7.8740ft)]
NOTE:Numbersaresubjecttochangewithoutnoticeduetodesignchangeorotherreason.
Thediagramsgivevaluesthatincludetheshoelugheight“a”[26mm(1.024in)].
B8AEDAD52
b
1040mm(40.945in)
e
440mm(17.323in)
c
2390mm(94.094in)
f
1430mm(56.299in)
d
600mm(23.622in)
g
1340mm(52.756in)
4806312827/10/2016
32

Related product manuals