EasyManua.ls Logo

Case WX165 - Page 147

Case WX165
375 pages
Print Icon
To Next Page IconTo Next Page
To Next Page IconTo Next Page
To Previous Page IconTo Previous Page
To Previous Page IconTo Previous Page
Loading...
SECTION 3
3-36
The standard values may vary with the type of
machine.
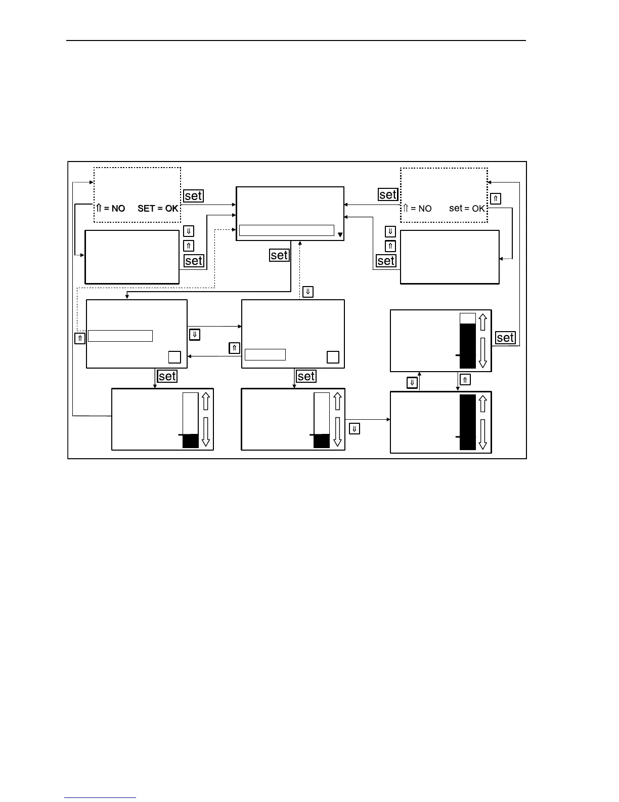
When the slewing power limitation is on and active,
the slewing power symbol is displayed in the lower
left corner of the screen.
In this case, observe the priority of the temporary
symbols displayed.
F34459
3-max
1-min
3-max
1-min
3-max
1-min
3-max
1-min
Save
changes?
SLEWING POWER
LIMITATION
PARAMETERS NOT UPDATED.
RE-TEST.
PRESS ANY KEY
Slewing
speed
DEFAULT
DEFAULT
DEFAULT
SWING SPEED
LIMITATION
Save
changes?
MACHINE
PARAMETERS NOT UPDATED.
RE-TEST.
PRESS ANY KEY
SWING SPEED
LIMITATION
SWING SPEED LIMITATION
Slewing speed Slewing
speed
DAMPING
AUTO POWER BOOST
DEFAULT
ADJUSTMENT
ADJUSTMENT
DEFAULT
SWING POWER
DEFAULT
Slewing
speed
53

Table of Contents

Related product manuals