EasyManua.ls Logo

Cattron CT24 Series - Page 24

Default Icon
56 pages
Print Icon
To Next Page IconTo Next Page
To Next Page IconTo Next Page
To Previous Page IconTo Previous Page
To Previous Page IconTo Previous Page
Loading...
CT24 MCU
User Manual
24
9M02-7608-A001-EN
Version 2.0
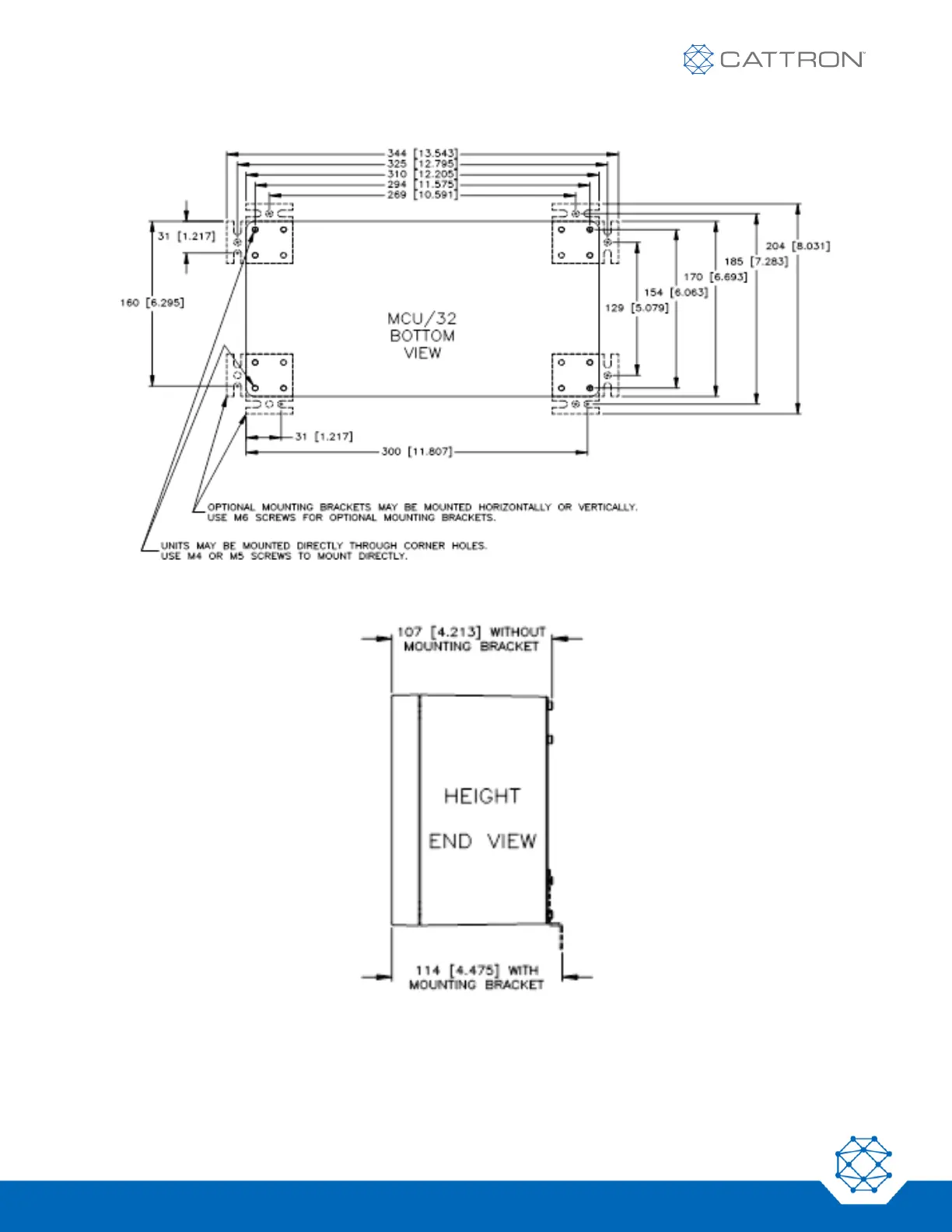
Figure 10: CT24-32 MCU Enclosure Mounting Drilling Drawings

Table of Contents

Related product manuals